[转载]日本国宝级茶室
标签:
转载 |
分类: 以泉水泡茶 |
日本国宝级茶室
著名な茶室
下記のうち、国宝に指定されている待庵?如庵?密庵の三棟が特に著名である。
-
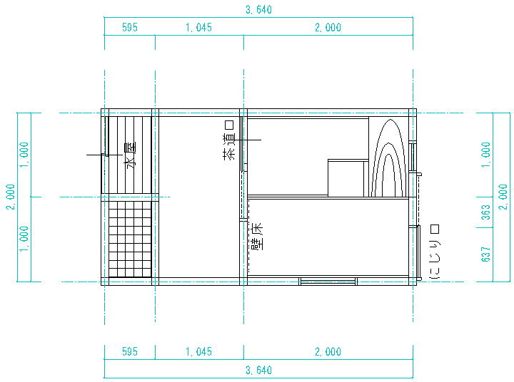
待庵
(妙喜庵、京都府大山崎町) 伝千利休作(国宝) -
地点:日本京都市乙训郡大山崎町
建造(或竣工)年代:公元1582年
设计者:千利休
结构及主要材料:木结构
风格:日本茶室
主要特征:妙喜庵茶室又称作“代庵”,是日本茶道宗师千利休所创建的草庵风格的茶室。妙喜庵墙壁用草筋抹灰,顶棚用杆缘顶棚(一种板上加带皮圆木杆的日本式顶棚),房屋的骨架用自然形状的木材及竹子搭建,充分体现了千利休草庵风格茶室自然至上的建筑理念。(日本的茶室是日本传统建筑中一个独特的范畴,包含许多不同的流派和风格,内容相当复杂。所以,无法以简述形式进行概括的介绍,有兴趣的读者可阅读有关专著。)
-
http://mmsns.qpic.cn/mmsns/LEgB9M5fvBnLy2yheYQP5W7rcDXPg66B2rNxWbNNiaW0iam3ibMdKV5MA/0
-
http://mmsns.qpic.cn/mmsns/LEgB9M5fvBnLy2yheYQP5W7rcDXPg66BbmbSQMrjTkhLbzhd223YeQ/0
-
http://mmsns.qpic.cn/mmsns/LEgB9M5fvBnLy2yheYQP5W7rcDXPg66BBpc5VqDjJGibyvoZkX9ySNA/0
-
http://mmsns.qpic.cn/mmsns/LEgB9M5fvBnLy2yheYQP5W7rcDXPg66BDW5ek0mJJWibSLm4uBHPcfQ/0
-
http://mmsns.qpic.cn/mmsns/LEgB9M5fvBnLy2yheYQP5W7rcDXPg66BGdJvicicicicq7DxmRw4UGOw4w/0
-
http://mmsns.qpic.cn/mmsns/LEgB9M5fvBnLy2yheYQP5W7rcDXPg66Bhy4SEicGpERUsTOZ44cmysA/0
-
http://mmsns.qpic.cn/mmsns/LEgB9M5fvBnLy2yheYQP5W7rcDXPg66BgLl9ukDVvjHY2lXNS0BPWQ/0
-
http://mmsns.qpic.cn/mmsns/LEgB9M5fvBnLy2yheYQP5W7rcDXPg66B3ic9gJ2nX41icPxFPfPU5TOw/0
-
http://mmsns.qpic.cn/mmsns/LEgB9M5fvBnLy2yheYQP5W7rcDXPg66B0RIhqwDkZQrmhciaAhw9F2A/0
-
http://mmsns.qpic.cn/mmsns/LEgB9M5fvBnLy2yheYQP5W7rcDXPg66BIaDrYr7mC0ib5FGiclNJibXVA/0
-
http://mmsns.qpic.cn/mmsns/LEgB9M5fvBnLy2yheYQP5W7rcDXPg66BWOQ0TJm63PwhPicticUDIFTQ/0
-
http://mmsns.qpic.cn/mmsns/LEgB9M5fvBnLy2yheYQP5W7rcDXPg66BMXrNdEQx2dRbvh4jvZFLNQ/0
-
http://mmsns.qpic.cn/mmsns/LEgB9M5fvBnLy2yheYQP5W7rcDXPg66BY5n6Oc2bI1icMLS2NDeXjZA/0
-
如庵
(愛知県犬山市、名鉄有楽苑)旧?建仁寺正伝院茶室 織田有楽斎好み(国宝) -
茶室如庵
-
名称:茶室如庵
-
日语:Chashitsu Joan
-
地址:爱知县犬山市御门先1
-
交通手段:从名铁犬山线的犬山游园站步行8分钟
-
门票:有乐苑门票1,000日元
-
如庵是织田信长的亲生弟弟、知名大茶匠织田有乐斋创建的茶室。精美的设计和独特的世界观被盛赞为名席,1936年被指定为了国宝。1972年移建至现在的地方,周围有有乐斋建造的被指定为重要文化遗产的旧正传院书院、根据古图复原的元庵等,形成了名为“有乐苑”的庭园。有乐苑是春天的樱花和秋天的红叶都极美的名园。茶室如庵内部在春季和秋季对外开放。
-
http://mmsns.qpic.cn/mmsns/LEgB9M5fvBnLy2yheYQP5W7rcDXPg66BPvhsx8LZtUjeYmnrqDTSZg/0
-
密庵 (京都市、大徳寺龍光院)(国宝) 伝小堀遠州好
-
所在地 京都府京都市北区紫野大徳寺町53 位置 北緯35度2分38.10秒
東経135度44分45.89秒山号 龍寶山 宗派 臨済宗大徳寺派 寺格 大本山 本尊 釈迦如来 創建年 正中2年(1325年) 開基 宗峰妙超 正式名 龍寶山 大徳禅寺 文化財 方丈、唐門、絹本墨画淡彩観音猿鶴図ほか(国宝)
勅使門、三門、仏殿、法堂、木造大燈国師坐像ほか(重要文化財)
方丈庭園(非公開)(史跡?特別名勝) -
http://mmsns.qpic.cn/mmsns/LEgB9M5fvBnLy2yheYQP5W7rcDXPg66BV4xZSxiaiaolM090r5ibUEoHg/0
-
http://mmsns.qpic.cn/mmsns/LEgB9M5fvBnLy2yheYQP5W7rcDXPg66BEB5DAbcWWAiabComVTREU4Q/0
-
http://mmsns.qpic.cn/mmsns/LEgB9M5fvBnLy2yheYQP5W7rcDXPg66Bj9yn01HaXkDEianC1lPy6Ug/0
-
http://mmsns.qpic.cn/mmsns/LEgB9M5fvBnLy2yheYQP5W7rcDXPg66B4ZdehJD7icp0Ciaj3NsxRlZQ/0
-
-
忘筌(京都市、大徳寺孤篷庵)(重要文化財) 小堀遠州の作
http://mmsns.qpic.cn/mmsns/LEgB9M5fvBnLy2yheYQP5W7rcDXPg66BVfTwM42ia6IbwSCkibdibmqjA/0
-
在地 京都府京都市北区紫野大徳寺町53 位置 北緯35度2分38.10秒
東経135度44分45.89秒山号 龍寶山 宗派 臨済宗大徳寺派 寺格 大本山 本尊 釈迦如来 創建年 正中2年(1325年) 開基 宗峰妙超 正式名 龍寶山 大徳禅寺 文化財 方丈、唐門、絹本墨画淡彩観音猿鶴図ほか(国宝)
勅使門、三門、仏殿、法堂、木造大燈国師坐像ほか(重要文化財)
方丈庭園(非公開)(史跡?特別名勝) -
-
http://mmsns.qpic.cn/mmsns/LEgB9M5fvBnLy2yheYQP5W7rcDXPg66BVMtyoXOMaK7MwpgicDzlv2A/0
-
http://mmsns.qpic.cn/mmsns/LEgB9M5fvBnLy2yheYQP5W7rcDXPg66BslXf6zfibUPfwLp1pZJiamFg/0
-
http://mmsns.qpic.cn/mmsns/LEgB9M5fvBnLy2yheYQP5W7rcDXPg66BB4VVFicVC72WD2LxXgm1Tzg/0
-
http://mmsns.qpic.cn/mmsns/LEgB9M5fvBnLy2yheYQP5W7rcDXPg66BXicTMNm7n0iaVOcG7ruibBEFA/0
-
閑隠席?枡床席(京都市、大徳寺聚光院)(重要文化財)
-
所在地 京都府京都市北区紫野大徳寺町58 位置 北緯35度2分38.44秒
東経135度44分43.21秒宗派 臨済宗大徳寺派 寺格 大徳寺塔頭 創建年 永禄9年(1566年) 開基 三好義継 文化財 方丈障壁画38面(国宝)
方丈(本堂)、茶室、絹本著色三好長慶像(重要文化財)
百積の庭(名勝) -
http://mmsns.qpic.cn/mmsns/LEgB9M5fvBnLy2yheYQP5W7rcDXPg66Bvm55xElTNItq8qgGoRRINg/0
-
http://mmsns.qpic.cn/mmsns/LEgB9M5fvBnLy2yheYQP5W7rcDXPg66BcEzHWEhu7nJB2qaVOBibADg/0
-
http://mmsns.qpic.cn/mmsns/LEgB9M5fvBnLy2yheYQP5W7rcDXPg66BTkjtRIFkgOaC6HrbhyVDQA/0
-
http://mmsns.qpic.cn/mmsns/LEgB9M5fvBnLy2yheYQP5W7rcDXPg66BnhLymD9z2SCZFX8HcV1krA/0
-
http://mmsns.qpic.cn/mmsns/LEgB9M5fvBnLy2yheYQP5W7rcDXPg66BUVfCBZ2oibpuPCRBNicHcvRw/0
-
http://mmsns.qpic.cn/mmsns/LEgB9M5fvBnLy2yheYQP5W7rcDXPg66BRyIFwLw1iauJj4mBru9mTdg/0
http://mmsns.qpic.cn/mmsns/LEgB9M5fvBnLy2yheYQP5W7rcDXPg66BxgwpADLicueoWiby2vfx8nag/0
-
-
今日庵?又隠(京都市、裏千家)(重要文化財)
-
-
http://mmsns.qpic.cn/mmsns/LEgB9M5fvBnLy2yheYQP5W7rcDXPg66BSw5fuRic90Oh6luLFLRib9LQ/0
-
http://mmsns.qpic.cn/mmsns/LEgB9M5fvBnLy2yheYQP5W7rcDXPg66BdPzrIYQVVrm3nZpeS0P8gA/0
-
http://mmsns.qpic.cn/mmsns/LEgB9M5fvBnLy2yheYQP5W7rcDXPg66BVxibXjrJ5urx0xZLaPn7OwA/0
-
http://mmsns.qpic.cn/mmsns/LEgB9M5fvBnLy2yheYQP5W7rcDXPg66BTTiaNGMv2x4lCWY9XBuw7zw/0
-
http://mmsns.qpic.cn/mmsns/LEgB9M5fvBnLy2yheYQP5W7rcDXPg66B0DTicmAHhbfcbSBrTwDp9yA/0
-
http://mmsns.qpic.cn/mmsns/LEgB9M5fvBnLy2yheYQP5W7rcDXPg66Bua5ZPrW3ic9gJUPb7QP778Q/0
-
http://mmsns.qpic.cn/mmsns/LEgB9M5fvBnLy2yheYQP5W7rcDXPg66BtYI5np569cbiaTAptwQiaiaqg/0
-
http://mmsns.qpic.cn/mmsns/LEgB9M5fvBnLy2yheYQP5W7rcDXPg66BQ93aibQLdYPOw8PQlFTBbDg/0
-
http://mmsns.qpic.cn/mmsns/LEgB9M5fvBnLy2yheYQP5W7rcDXPg66BK01rfrSWJicPzKRveLeVPxQ/0
-
http://mmsns.qpic.cn/mmsns/LEgB9M5fvBnLy2yheYQP5W7rcDXPg66B02Jjc4ew4tibeKxTvKkmvSQ/0
-
http://mmsns.qpic.cn/mmsns/LEgB9M5fvBnLy2yheYQP5W7rcDXPg66BkCgb2xBtDSzW4Fgaoicp6Ig/0
-
http://mmsns.qpic.cn/mmsns/LEgB9M5fvBnLy2yheYQP5W7rcDXPg66BeiavYiboLTFKAF5d9icYbvwYQ/0
-
http://mmsns.qpic.cn/mmsns/LEgB9M5fvBnLy2yheYQP5W7rcDXPg66Besy46Rkg4n3J4onibB8Z8cw/0
-
http://mmsns.qpic.cn/mmsns/LEgB9M5fvBnLy2yheYQP5W7rcDXPg66BYGNuVxYrcH7QKueguCXwQA/0
-
http://mmsns.qpic.cn/mmsns/LEgB9M5fvBnLy2yheYQP5W7rcDXPg66BQJvY06nu9ia3iaOqXKwJ7ia8w/0
-
http://mmsns.qpic.cn/mmsns/LEgB9M5fvBnLy2yheYQP5W7rcDXPg66BEcahTUjoK8ick3XRYoBXib3w/0
不審庵?残月亭(京都市、表千家)(重要文化財)
-
-
http://mmsns.qpic.cn/mmsns/LEgB9M5fvBnLy2yheYQP5W7rcDXPg66B1AgibPpFn5nRjy2dtGOmKtA/0
-
http://mmsns.qpic.cn/mmsns/LEgB9M5fvBnLy2yheYQP5W7rcDXPg66BICw5Ye940s3fXbIszaPibIQ/0
-
http://mmsns.qpic.cn/mmsns/LEgB9M5fvBnLy2yheYQP5W7rcDXPg66BticrkibF8zd93aLvutSGC7oQ/0
-
http://mmsns.qpic.cn/mmsns/LEgB9M5fvBnLy2yheYQP5W7rcDXPg66BXU1nr8PULwxKdMzPUSCOKQ/0
-
http://mmsns.qpic.cn/mmsns/LEgB9M5fvBnLy2yheYQP5W7rcDXPg66BzXXqg8gKVYtATap4kbMXlA/0
-
http://mmsns.qpic.cn/mmsns/LEgB9M5fvBnLy2yheYQP5W7rcDXPg66BJbQ5p2IkztBicuqo4JRh3lA/0
-
http://mmsns.qpic.cn/mmsns/LEgB9M5fvBnLy2yheYQP5W7rcDXPg66BD8RwjEcQzjpxn9AVrlSrLg/0
-
http://mmsns.qpic.cn/mmsns/LEgB9M5fvBnLy2yheYQP5W7rcDXPg66Bldnvjacf3H1o1kt1aew3PA/0
-
http://mmsns.qpic.cn/mmsns/LEgB9M5fvBnLy2yheYQP5W7rcDXPg66BDr1OpeNETBhCFEm5L1L3ew/0
-
http://mmsns.qpic.cn/mmsns/LEgB9M5fvBnLy2yheYQP5W7rcDXPg66B2iad5GxjsURekPjUoU7SQoQ/0
-
http://mmsns.qpic.cn/mmsns/LEgB9M5fvBnLy2yheYQP5W7rcDXPg66B9ViaVG1r7iaZ2V9l4zFAFOxw/0
-
http://mmsns.qpic.cn/mmsns/LEgB9M5fvBnLy2yheYQP5W7rcDXPg66BRiaXHO22oBLS9pfK1icRplZQ/0
-
-
-
-
官休庵(京都市、武者小路千家)
-
http://mmsns.qpic.cn/mmsns/LEgB9M5fvBnLy2yheYQP5W7rcDXPg66BYYpZuue379kOXe4Bdw71Xg/0
http://mmsns.qpic.cn/mmsns/LEgB9M5fvBnLy2yheYQP5W7rcDXPg66BiaFFMCefUia0HAicgnYLL9mUw/0 -
http://mmsns.qpic.cn/mmsns/LEgB9M5fvBnLy2yheYQP5W7rcDXPg66BoOQqJ6moKxZkCmMibJSknGQ/0
-
http://mmsns.qpic.cn/mmsns/LEgB9M5fvBnLy2yheYQP5W7rcDXPg66BtHmSDpo04PbgA5dCIVWBgw/0
-
http://mmsns.qpic.cn/mmsns/LEgB9M5fvBnLy2yheYQP5W7rcDXPg66BbHdddov3RuiageL1PzNO0rA/0
-
http://mmsns.qpic.cn/mmsns/LEgB9M5fvBnLy2yheYQP5W7rcDXPg66BHRM9MRA8Hq0ogd4gcSSW2w/0
-
http://mmsns.qpic.cn/mmsns/LEgB9M5fvBnLy2yheYQP5W7rcDXPg66BPibPwGIFy3Oywiac2icDibOatw/0
-
http://mmsns.qpic.cn/mmsns/LEgB9M5fvBnLy2yheYQP5W7rcDXPg66BZ02Lvc8mzGibSickb62Vamvw/0
-
http://mmsns.qpic.cn/mmsns/LEgB9M5fvBnLy2yheYQP5W7rcDXPg66B38zibuf2DtonCX35sug3CvA/0
-
http://mmsns.qpic.cn/mmsns/LEgB9M5fvBnLy2yheYQP5W7rcDXPg66BmFaPCE1J0BqKlmWJ3IsqNw/0
-
http://mmsns.qpic.cn/mmsns/LEgB9M5fvBnLy2yheYQP5W7rcDXPg66Bz5XGXR4AbHFGQhMQxIGO1g/0
-
http://mmsns.qpic.cn/mmsns/LEgB9M5fvBnLy2yheYQP5W7rcDXPg66BUd9PvXX5r6Aca18rQysM3w/0
-
-
-
燕庵
(京都市、藪内家)(重要文化財) -
http://mmsns.qpic.cn/mmsns/LEgB9M5fvBnLy2yheYQP5W7rcDXPg66BJiagiaVabp48KMxnohbVhlGw/0
-
http://mmsns.qpic.cn/mmsns/LEgB9M5fvBnLy2yheYQP5W7rcDXPg66BegibeOw5KlES0pMKfqiaicUIg/0
-
http://mmsns.qpic.cn/mmsns/LEgB9M5fvBnLy2yheYQP5W7rcDXPg66Bnoyr0LLSGD5N4GDTJ2cEnQ/0
-
http://mmsns.qpic.cn/mmsns/LEgB9M5fvBnLy2yheYQP5W7rcDXPg66B4MFgeF3iaOxpkYDoX2FMqSg/0
-
湘南亭(京都市、西芳寺)(重要文化財)
-
http://mmsns.qpic.cn/mmsns/LEgB9M5fvBnLy2yheYQP5W7rcDXPg66B1qXd1E3yTVBvicjfUeAtxdA/0
-
http://mmsns.qpic.cn/mmsns/LEgB9M5fvBnLy2yheYQP5W7rcDXPg66BH2cHTJI2GGLmfMFwqick61Q/0
-
http://mmsns.qpic.cn/mmsns/LEgB9M5fvBnLy2yheYQP5W7rcDXPg66Bg1towseBqezXs1SicjtwMdA/0
-
http://mmsns.qpic.cn/mmsns/LEgB9M5fvBnLy2yheYQP5W7rcDXPg66BiaUQib8A14YLBRKt6voBLaEw/0
-
遼廓亭?飛濤亭(京都市、仁和寺)(重要文化財)
-
http://mmsns.qpic.cn/mmsns/LEgB9M5fvBnLy2yheYQP5W7rcDXPg66Bibc0wZaZRib3QhuIKLZhj8aQ/0
-
http://mmsns.qpic.cn/mmsns/LEgB9M5fvBnLy2yheYQP5W7rcDXPg66BesET84V4hNjCRsXM2SgBxA/0
-
http://mmsns.qpic.cn/mmsns/LEgB9M5fvBnLy2yheYQP5W7rcDXPg66BnywbRVW9icKWz4nfN1ib5F4Q/0
-
http://mmsns.qpic.cn/mmsns/LEgB9M5fvBnLy2yheYQP5W7rcDXPg66BTaicLcUZRcicnpIl59ZvLmsA/0
-
http://mmsns.qpic.cn/mmsns/LEgB9M5fvBnLy2yheYQP5W7rcDXPg66BYgNs0lWLq3mKqpfAoMg9mA/0
-
http://mmsns.qpic.cn/mmsns/LEgB9M5fvBnLy2yheYQP5W7rcDXPg66BB334IkOfVz93KxbibOEEPicg/0
-
http://mmsns.qpic.cn/mmsns/LEgB9M5fvBnLy2yheYQP5W7rcDXPg66BcrPkrJqDiahCAT3yK5ibiaricA/0
-
傘亭?時雨亭(京都市、高台寺)(重要文化財)
-
http://mmsns.qpic.cn/mmsns/LEgB9M5fvBnLy2yheYQP5W7rcDXPg66B51Jkw6GTicYCtVUC6KCcmIg/0
-
http://mmsns.qpic.cn/mmsns/LEgB9M5fvBnLy2yheYQP5W7rcDXPg66BmnwrdsB61W9zOYZibLg7C2Q/0
-
http://mmsns.qpic.cn/mmsns/LEgB9M5fvBnLy2yheYQP5W7rcDXPg66BDyUSm9afHNqZhtWH0ePVJA/0
-
http://mmsns.qpic.cn/mmsns/LEgB9M5fvBnLy2yheYQP5W7rcDXPg66Biaw4EKVLpQupzI9nFQsxC7Q/0
-
http://mmsns.qpic.cn/mmsns/LEgB9M5fvBnLy2yheYQP5W7rcDXPg66BZ7Q5lk0eyReSrNEMHibKavw/0
-
http://mmsns.qpic.cn/mmsns/LEgB9M5fvBnLy2yheYQP5W7rcDXPg66BtqpZu8mNOUiaaGeVciaDTFcg/0
-
http://mmsns.qpic.cn/mmsns/LEgB9M5fvBnLy2yheYQP5W7rcDXPg66BdHPmcMyXTnhFB5Utj2Mzag/0
-
http://mmsns.qpic.cn/mmsns/LEgB9M5fvBnLy2yheYQP5W7rcDXPg66BpzbQF4uLLeDlPZYxTzH7tw/0
-
http://mmsns.qpic.cn/mmsns/LEgB9M5fvBnLy2yheYQP5W7rcDXPg66BMRPrhfBVzvHPe6Jh2VfIsQ/0
-
八窓席(京都市、金地院)(重要文化財)
-
http://mmsns.qpic.cn/mmsns/LEgB9M5fvBnLy2yheYQP5W7rcDXPg66B6Yz8HPETWu41ib3pZ6QVCbQ/0
-
http://mmsns.qpic.cn/mmsns/LEgB9M5fvBnLy2yheYQP5W7rcDXPg66BicuQgz4J0EcLygZCg3BiaUPA/0
-
http://mmsns.qpic.cn/mmsns/LEgB9M5fvBnLy2yheYQP5W7rcDXPg66BXfBOC0RO6bk746psoyo5KA/0
-
http://mmsns.qpic.cn/mmsns/LEgB9M5fvBnLy2yheYQP5W7rcDXPg66BCficphxVy8cTyywibAhvyJgQ/0
-
http://mmsns.qpic.cn/mmsns/LEgB9M5fvBnLy2yheYQP5W7rcDXPg66BsI49hTW8KcFuYg7UNQAXog/0
-
http://mmsns.qpic.cn/mmsns/LEgB9M5fvBnLy2yheYQP5W7rcDXPg66BzE0Fy4t9UgrMLm2t7Spg8Q/0
-
菅田菴(島根県松江市)(重要文化財)
-
http://mmsns.qpic.cn/mmsns/LEgB9M5fvBnLy2yheYQP5W7rcDXPg66BJr8zlbBkTsOiabibRGnD4sHg/0
-
http://mmsns.qpic.cn/mmsns/LEgB9M5fvBnLy2yheYQP5W7rcDXPg66BcSfedibib7AR5YUltYqFFQxQ/0
-
松花堂
(京都府八幡市) 松花堂昭仱尾葩植枋遥ü问粉E) -
http://mmsns.qpic.cn/mmsns/LEgB9M5fvBnLy2yheYQP5W7rcDXPg66BNAHY61DUHE5YHzO4GwcVpQ/0
-
http://mmsns.qpic.cn/mmsns/LEgB9M5fvBnLy2yheYQP5W7rcDXPg66BfJCHpcIVjlDyc7Kxn1ZlicQ/0
-
http://mmsns.qpic.cn/mmsns/LEgB9M5fvBnLy2yheYQP5W7rcDXPg66BpzIiaJT2Nzs5eiaafyLsfbeg/0
-
http://mmsns.qpic.cn/mmsns/LEgB9M5fvBnLy2yheYQP5W7rcDXPg66By8FDW8dELPowMACQ9uNu5w/0
-
http://mmsns.qpic.cn/mmsns/LEgB9M5fvBnLy2yheYQP5W7rcDXPg66BFZW3CwSpibHQO9xxuC7q7Jg/0
-
http://mmsns.qpic.cn/mmsns/LEgB9M5fvBnLy2yheYQP5W7rcDXPg66BFCIAIDoGiae33uST67FhZFQ/0
-
http://mmsns.qpic.cn/mmsns/LEgB9M5fvBnLy2yheYQP5W7rcDXPg66BLN5Irr1JS6vAW3pznPkyUQ/0
-
明々庵
(島根県松江市、塩見縄手) 松平不昧ゆかり(県指定文化財) -
http://mmsns.qpic.cn/mmsns/LEgB9M5fvBnLy2yheYQP5W7rcDXPg66BDSSibYO5S5lPA7diaUrBlicSg/0
-
http://mmsns.qpic.cn/mmsns/LEgB9M5fvBnLy2yheYQP5W7rcDXPg66BTmT7t6MvFSCdlzvhmibfgUw/0
-
http://mmsns.qpic.cn/mmsns/LEgB9M5fvBnLy2yheYQP5W7rcDXPg66BhricYfHHjc2BU5OGD6zOxUA/0
-
http://mmsns.qpic.cn/mmsns/LEgB9M5fvBnLy2yheYQP5W7rcDXPg66B5ShjQYhdwALllDmAmKpTjg/0
-
-
聚遠亭
(兵庫県たつの市、龍野公園) 孝明天皇下賜 (市指定文化財) -
http://mmsns.qpic.cn/mmsns/LEgB9M5fvBnLy2yheYQP5W7rcDXPg66B7myBNO8as6ib5H6MlE7M9hA/0
-
http://mmsns.qpic.cn/mmsns/LEgB9M5fvBnLy2yheYQP5W7rcDXPg66B08EKH2keIcEUyI4yVVibhFQ/0
-
http://mmsns.qpic.cn/mmsns/LEgB9M5fvBnLy2yheYQP5W7rcDXPg66B5UwHYVnEaqZRn8MT8YqIAQ/0
-
http://mmsns.qpic.cn/mmsns/LEgB9M5fvBnLy2yheYQP5W7rcDXPg66BLlGhQwC0TkpTJ2cNCiauP5w/0
-
http://mmsns.qpic.cn/mmsns/LEgB9M5fvBnLy2yheYQP5W7rcDXPg66BTEch9S86F1jHY3p0XVMF6A/0
-
黄梅庵 (大阪府堺市、大仙公園)
今井宗久ゆかり (登録有形文化財) -
http://mmsns.qpic.cn/mmsns/LEgB9M5fvBnLy2yheYQP5W7rcDXPg66BYNZfO1ZlH7SwkOBvfRQ69g/0
-
http://mmsns.qpic.cn/mmsns/LEgB9M5fvBnLy2yheYQP5W7rcDXPg66BiaYMmibK8A3VXDVl8LQl8d1A/0
-
http://mmsns.qpic.cn/mmsns/LEgB9M5fvBnLy2yheYQP5W7rcDXPg66BXjOP36z0y0NK5CovBb5pCQ/0
-
http://mmsns.qpic.cn/mmsns/LEgB9M5fvBnLy2yheYQP5W7rcDXPg66BqItSasIibnicagt5bSk2hwvw/0
-
伸庵 (大阪府堺市、大仙公園) 仰木魯堂の作 (登録有形文化財)
-
http://mmsns.qpic.cn/mmsns/LEgB9M5fvBnLy2yheYQP5W7rcDXPg66BPPmsTWEER1yPmT9vOibgFgA/0
-
http://mmsns.qpic.cn/mmsns/LEgB9M5fvBnLy2yheYQP5W7rcDXPg66BqOr3SicWYibC7CbsciaJ3MPCg/0
-
http://mmsns.qpic.cn/mmsns/LEgB9M5fvBnLy2yheYQP5W7rcDXPg66BSLaEv4vacdRJJ8hXXZvs6A/0
-
http://mmsns.qpic.cn/mmsns/LEgB9M5fvBnLy2yheYQP5W7rcDXPg66BSkibpDPfx9DKUiccRaPPFhaw/0
-
http://mmsns.qpic.cn/mmsns/LEgB9M5fvBnLy2yheYQP5W7rcDXPg66BxeSU0MuKrlF9AyRib2FZtwQ/0
-
http://mmsns.qpic.cn/mmsns/LEgB9M5fvBnLy2yheYQP5W7rcDXPg66BUH72DUswgK3wnof5AMCtvA/0
-
黄金の茶室
MOA美術館、及び大阪城天守閣、富山長福寺(下写真)に再現されている -
http://mmsns.qpic.cn/mmsns/LEgB9M5fvBnLy2yheYQP5W7rcDXPg66BmuDrrqWzsuHDKtPYqYXM7w/0
-
http://mmsns.qpic.cn/mmsns/LEgB9M5fvBnLy2yheYQP5W7rcDXPg66BQDtYEhkfuKiapZzbrH8FQ3g/0
-
http://mmsns.qpic.cn/mmsns/LEgB9M5fvBnLy2yheYQP5W7rcDXPg66Bz1Hic67j1PW8AHrybiaIe17w/0
-
http://mmsns.qpic.cn/mmsns/LEgB9M5fvBnLy2yheYQP5W7rcDXPg66Bnq65GMuibzFAicseQJVX7cCw/0
-
http://mmsns.qpic.cn/mmsns/LEgB9M5fvBnLy2yheYQP5W7rcDXPg66BlicKunNu2ia4p8GmIMMk0Asw/0
-
http://mmsns.qpic.cn/mmsns/LEgB9M5fvBnLy2yheYQP5W7rcDXPg66BRUANjGKvhCicl31bZWQibI7w/0
-
http://mmsns.qpic.cn/mmsns/LEgB9M5fvBnLy2yheYQP5W7rcDXPg66BzegibI7w6oibLOfazlHYjU2A/0
-
http://mmsns.qpic.cn/mmsns/LEgB9M5fvBnLy2yheYQP5W7rcDXPg66BiauP9pTARy5NcpEuTuQ09gA/0
-
http://mmsns.qpic.cn/mmsns/LEgB9M5fvBnLy2yheYQP5W7rcDXPg66B7eJJOmOjmrho4sz3UMibZIQ/0
-
http://mmsns.qpic.cn/mmsns/LEgB9M5fvBnLy2yheYQP5W7rcDXPg66BT5ImxzMHFibzicpHvSEO5lag/0

加载中…