傲云天恒恒基傲云最近究竟火在哪?孙河北京一号别墅区最新动态
标签:
北京房价北京买房 |
傲云是位于孙河的地王之上的产品,其塑造的全新美学艺术和产品空间艺术,结合世界孙河纯质低密住区地块质感,重新设定人居建筑美学。相比传统住宅,傲云释放出来的艺术感、科技感、奢逸感,更契合时代高净值人群审美观与居住观,触笔未来高阶生活方式。
城市焕新,人居迭代,世界大宅逐生态而居,傲云也一直在探索,如何匠筑比肩世界的生态大宅。
于是,傲云择址生态天赋异禀的朝阳孙河,这个拥有北京三大绿肺资源的板块,内含10万平中央湖景公园,外围温榆河湿地公园、沙子营湿地公园、朝来森林公园、奥林匹克森林公园等十大公园环绕,占地面积共计约53平方公里,相当于约73.6座北京故宫大小。生态大境内外呼应,构造出得天独厚的生态人居范本,为居者打造出一个从容大成的生态居住空间。
孙河作为北京第一个也是惟一一个由政府先规划后建设的低密高端墅区,从顶端规避板块发展随意性,将区域发展定义为国际墅区,与望京商务区、中央别墅区遥相呼应,将孙河推向世界的舞台。2012年始,片区内11块住宅用地10年间被多家知名房企争相拿取,并逐步成为北京豪宅市场的范本,完成了价值蝶变,入住孙河别墅区已成为身份与圈层的象征。
孙河板块作为北京惟一一个拥有5条快速路的区域,由“一轨两横五纵”立体交通网组成,“一轨”15号线孙河站,“两横”顺黄路和京平高速,“五纵”京承高速、京密路、京密快速路、机场高速和机场二高速,对内与城市核芯无缝接驳,对外与国际全球通达世界。
傲云带动整个孙河产品价格上涨,作为城市级标杆产品项目拥有定价权,因为它在整个产品系中的地位决定了它本身的综合价值,一个标杆级产品往往能够带动周边区域同类产品的价格提升,因此标杆产品是未来价格的风向标;就像股票中的龙头股,它的价格上涨必定能够带动板块内其他股票的价格。正因如此,傲云项目刚刚对外开放,周边二手房价格已经上升。
傲云项目吸取众多项目开发经验,扬长避短从而打造全市高端精品标杆级产品。标杆级产品的价值在于很难被超越。首先,当今土地价格成本高,低密土地更加稀缺,很难再有开发商能打造此类产品。所以,傲云项目的不可复制性是不言而喻的。
在园林层面,傲云亦以独有匠心布局“两门五园十巷”的全龄环景设计,五大特色功能空间,十大景观巷道,还原美好生活场景。傲云以精湛造园之艺,让生活穿梭于自然光影与四季溢彩之间,全龄段健康园区,让关于幸福的唯美长卷在世界墅居源源流转。
傲云,以绿色科技之名迭新城市人居封面,升级健康品质生活,唤醒生活绿色向往。
傲云为每户配置独立户式新风系统,内置多重空气过滤处理装置,可有效过滤空气中的PM2.5、细菌、粉尘、霉菌等,为居者提供24h鲜氧,保持家中洁净,不染纤尘。特别在疫情时期,每户独立取风、排风系统,有效做到空气不交叉、不混合,单独空气微循环,为居者营造更安全、更健康的居住环境。
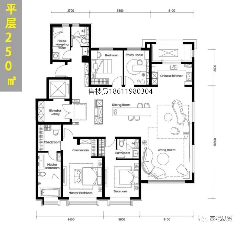
在1.5超低容积率的绝佳禀赋下,傲云带来建面约240-250平层、300-400叠拼、430-450合院,全线顶级产品规划,为财富家庭定制满足终极改善需求的顶级低密洋房墅区。
项目的【户型面积】:
平层:面积240-250,共计82套房;
叠拼:面积320-400,共计56套;
合院:面积430-455;共计14套;
商办:共26套(底商3套、地下会所2套),面积580-650左右
傲云样板间实拍介绍
项目样板间苹果手机实拍
建筑,迎接来自世界的仰望,傲云,赋予生活宁静与诗意。建面约240-251观湖平墅,典藏中国家族与塔尖人群精神属地,以人为尺度,设计约80L型起居空间,相当于约1座羽毛球场的大小,际会塔尖人群从容社交场。
270°环景采光,同框森幕天际,拥揽无界湖景,冬日可享至少7小时阳光入户,给予生活更多自信与光明,南向约8.4m宽厅,大面宽短进深,凝萃中国传统居住情结,尽显望族气度;
4+1可成长式户型空间,解构空间生活哲学,以五居阔境承载三代同堂多功能居住需求,演绎中国家族式理想生活;中西双厨设计,酝酿生活滋味,匹配你走过世界的味蕾。傲云,以醇熟的空间掌控力,筑造国人舒居体验。
“家”之所以成为足以容纳情感及美感的“栖居”之所,需要无数感知、经验及时间的累积。傲云以功能性为基础,权衡最舒适的奢享尺度,呈现关于居住品质与生活美学的深入思考。建面约240-251观湖平墅,便为世界公民敬献高定生活。
<实景图>
超尺度“L”型客厅,餐客相连,舒适动线,优雅生活随格局一展而开,满足私宴、PARTY、会议等多种需求,多种社交场景相互连贯。
这里既是谈笑有鸿儒的会客厅,又是一家人亲密而舒适的互动空间,依循动线需求,让生活场景的呈现成为审美情趣和情感的寄语。超大开间短进深的空间设计,通透视线双倍面宽270°采光,让自然绚烂光景蔓延穿透窗棂,为生活每一刻浪漫加成,不被拘束的光影在这里都弥足珍贵。

加载中…