顺义金禧璞瑅为何这个项目圈粉无数?交房即维权是真的吗?
标签:
北京房价北京买房北京新房 |
选址北京中央别墅区御河板块北延,西毗未来科学城,东临顺义临空经济区,于三区交汇之核,擘绘首都科创特区首个高端宜居生活带;“三横三纵双轨一空”的立体交通网,同城市发展脉搏交融重合,落定城市无界。快速连接望京商务区、国贸CBD、国际机场等主城经济圈,全时速链接世界;不仅享有中央别墅区、望京商务区的成熟教育、资源和配套的同时,而未来科学城作为第一个国务院批准的“国家智慧城市试点”,将建设成为具有世界一流水准的创新创业基地。随着政策导向、社会资本的强势注入,此交界区域已成为
最有潜力的首都科技创新中心之一。
1金禧璞瑅项目隶属于中央别墅区御河板块,发展顺序:天竺板块→后沙峪板块 → 孙河板块 →御河板块,是中央别墅区第四个发展板块,未来别墅区主流发展方向,先规划后发展。
2项目紧邻未来科学城,未来科学城是国务院第一个批准的-----国家智慧城市试点,是代表我国相关产业科研人才及研发平台最高水平的人才创新创业基地。规划了24家央企,目前已入住15家,未来科学城规划了307万平公共服务配套,
3金禧璞缇引领御河板块未来发展,打造板块内首个高端改善墅区。
4地处价值洼地,无论投资还是自住都是不二之选。
5富力首开双雄和鸣,中央别墅区鼎力新作
【项目基本信息】
开发集团:富力+首开
楼盘地址:顺义高白路与九厂路交叉口
建筑类型:板楼、多层、叠拼
产权年限:70年
装修情况:精装修
容积率值:1.5
绿化率值:30%
车位比例:1:1.3
园区户数:896
产品类型:洋房:140/160/192 600-700万,750-800万
叠拼:366/390— 1200-1400万
【项目周边】
项目周边牤牛河、温榆河、方氏渠三河环抱,气象万千。罗马湖公园、滨水森林公园相傍东西。北望燕山山脉,天然优渥绿肺,成就都市稀缺生态居境。除此之外,富力首开·金禧璞瑅将山水、空间的人居之法与当代园林艺塑相融,以“城市桃源”的灵感积思,呈现“五境九景、十二庭、十二巷”的景观秩序;约4000中庭花园,全时全龄的生活场景,让建筑融于山色湖光之中,赋予生活无限想象 。营造移步换景,别有洞天的空间递进感,以及四季轮换的时间感。消夏藏春,染秋挽冬,动见曲通幽,静听花意浓。居境其中,
宛若画意,还原自然人居。
【项目周边配套】
【户型介绍】
“洋房&叠拼”
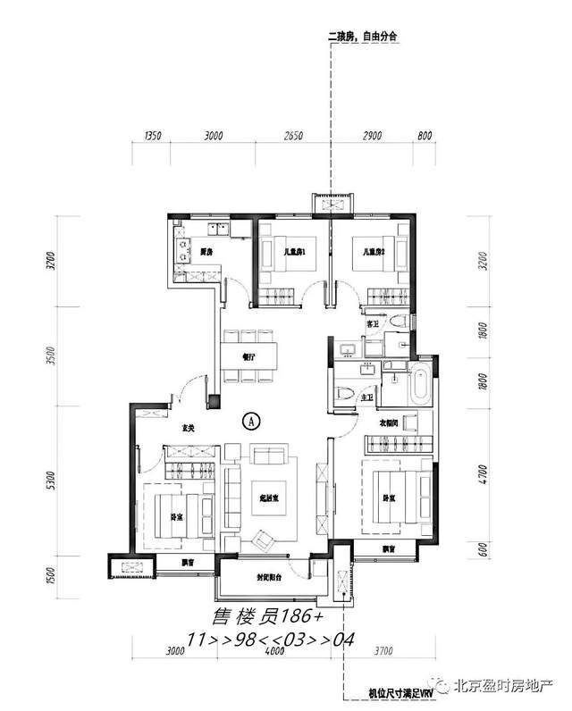
房型:136平米 四室两厅两卫
可变户型,南厅可改为7米宽大横厅;
北侧两间卧室可独立使用,也可以打开隔墙,做二孩房,给孩子超大游戏空间;
全明卫设计,客卫干湿分区,满足多人同时使用。
实景图
房型:157平米 五室两厅三卫
多功能X空间:
面向入户门完全开敞,L型客厅;
并入主卧套,私密空间--男主书房/女主衣帽间;
家庭厅、活动室、小客房;
南侧卧室套房设计,方便老人生活起居;
可变户型,南厅可改为7.3米宽大横厅;
北侧两间卧室可独立使用,也可以打开隔墙,做二孩房,给孩子超大游戏空间。
实景图
房型:187平米 五室两厅三卫
超大横厅、“Ballroom”、女主的客厅;
足够大尺度的客厅给予无限可能性;
独立家政间,单独的后勤(洗消)流线,防疫户型;
7.2米超宽景观阳台;
南侧卧室套房设计,方便老人生活起居;
北侧两间卧室可独立使用,也可以打开隔墙,做二孩房,给孩子超大游戏空间。
实景图
叠拼
叠拼产品设计为下叠(首二层)和上叠(三四层),套内面积在170-200平米左右。上下叠的下层均为客餐厅和厨房,北侧设一间客房,上层为卧室层。南向面宽7.2米,开间内无承重墙体,为适应客户不同的功能需求预留改造的可能性。在北侧入口处,特别为上叠住户设计一处独立的电梯厅,上叠可从地面层直接入户,乘电梯直达三层客厅层。
外立面设计
为现代手法,保留了中式古典风格的内涵,用简洁的线条和进退层次表达细节和品质。材料选用米色石材和真石漆,在檐口、压顶等位置搭配深灰色的金属线条,细节丰富又不失简洁大方。
立面&材质:“ 精工制造、匠心刻画”
外立面材料:首二层干挂错缝米白色亮光石材,结合深灰色金属铝板压顶,表达出国际式建筑的现代感与科技感。
外窗:三玻两中空(节能 保温 隔声)
景观:"以桃花源记为设计灵感,以桃园五境为设计理念,以桃园九景为设计元素"
通过金镶玉的设计手法,设计了中心大湖外加五重立体园林景观、十二庭加十二巷的园林体系。
更值得一提的是,在西区景观大道的中央,还设计了面积达5000平米的中心园林。整个园区的园林体量、美学水准,完全媲美4000万+级别豪宅的水准
这里的环境经常让人想起美西山景城,舒适的居住环境,完善的配套,便利的交通,在低密度的环境中,告别城市喧嚣,满目是蓝天和绿树,还有孩子们的笑容。即得城市文明,也得自然之趣。
景观设计为富力(北方区)园林设计院
配套:
"高端定制商务办公区+十二年制诺德安达国际学校+4万平米全
态Mall+6万平米国际级康养社区,为业主提供全生命周期优质服务"
作为中央别墅区御河板块的纯改善盘,项目坐拥未来科学城、怀柔科学城、临空经济区三区交汇之先天禀赋。项目南临温榆河,东侧奥林匹克水上公园,西侧滨水森林公园。背山面水,玉带环腰,是极佳的格局。

加载中…