远洋·源山春秋丨西山八大处脚下的低密墅居
标签:
北京别墅北京新房 |
远洋·源山春秋价值点——
不可复制的山水自然资源:
北京只有一个西山,紧邻5970公顷西山,平均湿度80%,森林覆盖率80%,98.5%负氧离子含量,山水资源除此再无他处;
极度稀缺且不可复制的土地资源:
西山可供居所的浅坡仅占2%,成规模高端居住区异常难得,而且源山春秋项目由于地段特殊性,整体容积率1.1,限高18米,纯粹商品房,无任何配建。
背山面水的风水格局,契合中国最传统居住理念,被风水大师称为:背山面水,玉带缠腰,佛之下、财之上的风水宝地!
满足第一居所城市别墅的居住价值:
三横三纵交通路网,600米地铁站,出门双向六车道仅3个红绿灯上五环,北侧8万平自建商业,10分钟京西大悦城,25分钟可达万柳;
东侧银保建国酒店,一路之隔自建8万平米太古里商业;1.5公里北京最大的大悦城,3公里首钢六工汇国际商业配套,沃尔玛山姆会员店;
石景山大悦城
医疗:
项目开车5分钟,首都医科大学附属北京康复医院,整形外科医院,八大处中西医结合医院,满足基本医疗需求,开车10分钟,即北京大学首钢医院,驱车15分钟即可到达国内顶尖三甲军区医院,301医院、空总、海总、武警总医院;
教育:
北大附小石景山学校,北大附中石景山学校,步行可达。此外15分钟车程,可选择凯文,海淀外国语,师达,中杉国际学校等国际教育,项目自身配有4410平米幼儿园,东侧保险产业园内有东方悦雅,蒙特梭利幼儿园,步行即可到达;期
环境:
北侧即八大处和西山国家森林公园,总面积近600公顷,相当于10个奥森,20个朝阳公园大小,南侧100米为宽100米长3.8公里的永引渠滨河公园;
产业:
东侧国家重点打造65万平米银行与保险产业园,一河之隔即是中关村石景山园,中关村第六个千亿级产业园区,南侧3公里首钢园,冬奥会举办地,京西高端产业创新高地。
源山春秋分为两期开发——
项目位置:北京市石景山区刘娘府北街
物业类型:住宅 产权年限:70年
占地面积:约10万 建筑面积:约22.7万 容积率:1.1
绿化率:30% 总楼栋数:40 总户数:285户
车位配比:1:2 梯户配置:平墅一梯两户
交房标准:平墅精装;独院、双拼毛坯
该地块位置:毗邻国家级金融产业示范区——北京银行保险产业园,附近交通便利、地理位置优越,教育、医疗、等配套一应俱全。
附近有地铁1号线苹果园站、S1号线、11号线、6号线。西临石景山著名豪宅远洋天著春秋,周边被香山八大处、永定河、法海寺森林公园环绕。
地块竞得人需代建1604-666地块基础教育用地,建好无偿移交石景山区教委;竞得人需在1604-667地块建设360平米社区卫生服务站、1350平方米托老所,无偿移交相关部门;竞得人需在1604-663地块建设150平社区居民委员会,无偿移交相关部门。
竞得人须在1604-678地块建设27174平方米商业用房,由北京华美天祥投资管理公司以3000元/平方米价格回购。
交房时间:2025.6 供暖方式:集中供暖,地暖 开发商:远洋
物业公司及物业费:平墅10.5元;独院、双拼11.9元;地下2元
拿地时间:2020.12
首期开盘时间:2021年9月30日
楼间距:平墅21-24米;双拼13米;独院13.7-14.3米
【楼栋图】
一期产品包含:9栋类独栋700-730;36套双拼490-600;130套平墅面积:210-540;二期产品为110套平墅产品。
双拼和类独栋均为地上3层地下2层;
源山春秋平墅产品比较新颖,重点给您介绍↓
远洋·源山春秋的宽境平墅与市面上的大平层不同,19.5米的南向面宽,以超越平墅的设计规制,拥有平层的宽境空间感以及墅质感的居住体验。
平墅一共五层,1到3层是跃层,4层是正常的平层,5层带阁楼,总价2200万起。
平墅其实就是平层别墅,二层跟三层是有室内电梯的,一层,二层,三层因为都有花园,所以有单独的入户门厅,非常的舒服。
平墅分为两种户型:
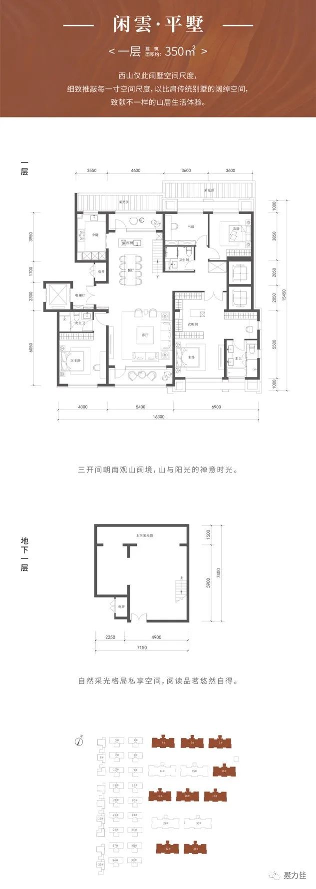
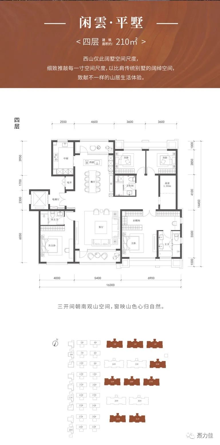
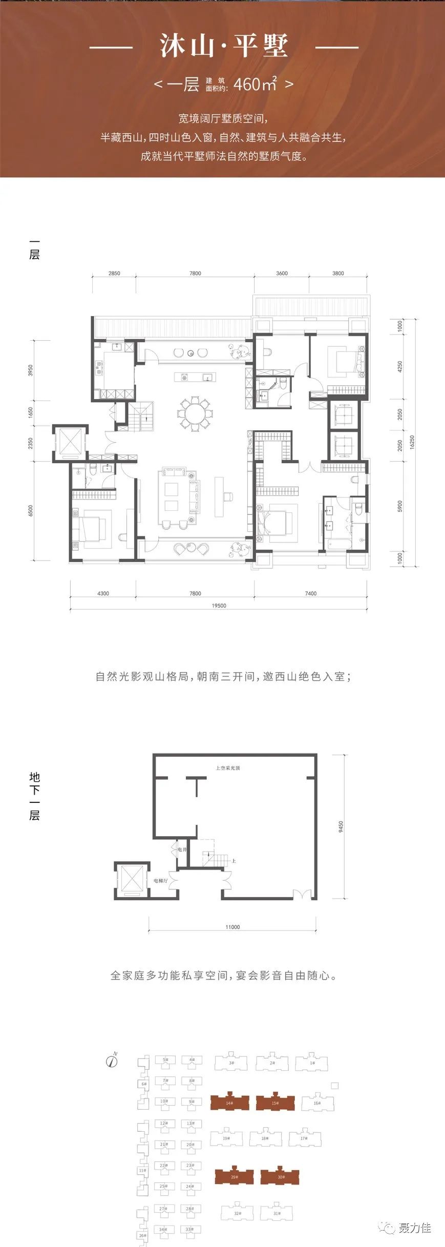
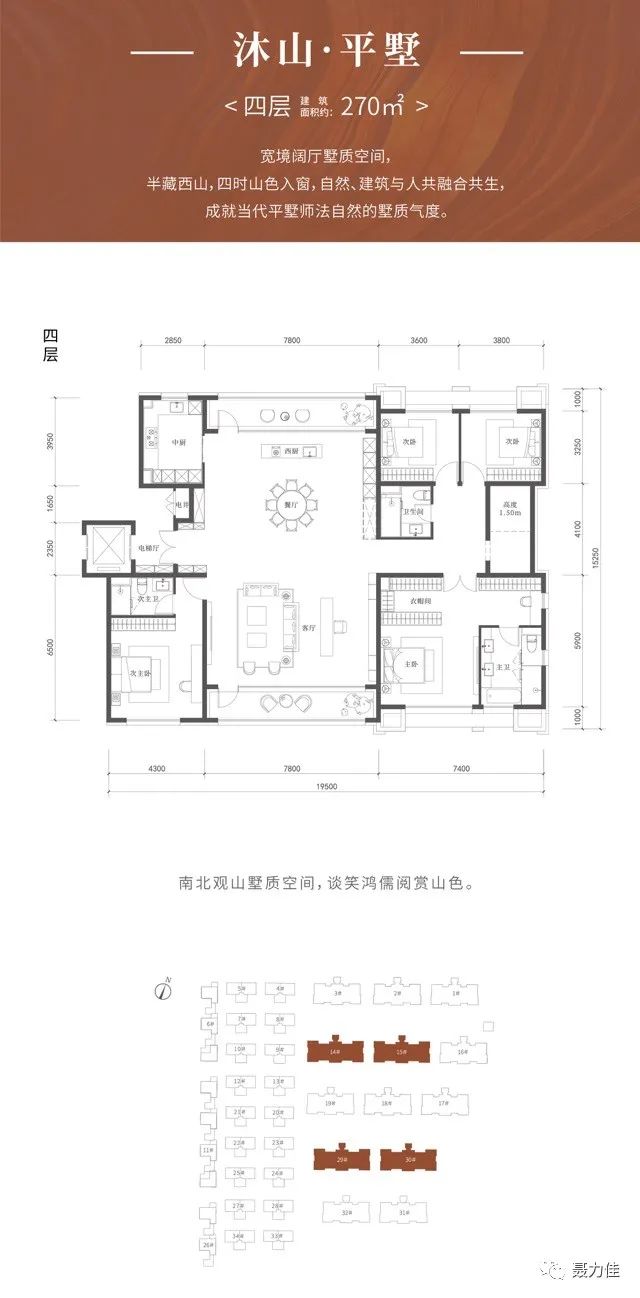
地上210和地上270,210平墅称为小平墅;270平墅称为大平墅。
平墅1层带B1,带南侧花园120-150平;
平墅2层带B1、B2,室内私家电梯花园在东南或者西南,面积50平;
平墅3层带B1、B2,室内私家电梯,花园在东北或者西北,面积30平;
平墅4层为标准平层;
平墅5层赠送阁楼及露台,阁楼面积100-140,露台30平。
【户型介绍】
1.宽屏:源山春秋的宽境平墅起步就是210,最大户型更是达到540;足够大的户型面积,承载起源山春秋的风格履新,也让我们看到了别墅产品里程碑式的革新。
2.极致:源山春秋的禅意,在只有9套约700-730的坐忘独院中,泼洒得更为淋漓尽致,可称得上是“藏品级”。
第一层极致,来自于这座煊赫大宅的景观。
每一套宅院,每一层空间,都衔接着院落、阳台或是露台,迎接漫天漫地的阳光与月光。
四季风景,更像是窗外一面流动的LED屏,轮播的是西山的日出日落,四季永不停歇。
尤其观山院墅的270度观景客厅,彷佛身处自然版的巨幕影院,西山之美俨然成了私享。
第二层极致,则是源山春秋观山院墅的尺度。
每一处空间,都拉开了纵向与横向的尺度,包容一个大家庭的起居宴饮。
不管是慵懒的独处、对饮的茶室、推杯换盏的宴请……它都可以有足够阔绰和多变的空间,去承载一切需求。
都说要有“院”,才成就“墅”;光是超大的观山庭院,就是西山绝无仅有的感觉。
【户型图】
一、【210平平一(350平)】
二、【210平平二(440平)】
三、【210平平三(380平)】
四、【210平平四(210平)】
五、【210平平五(240平)】
六、【270平平一(460平)】
七、【270平平二(540平)】
八、【270平平三(450平)】
九、【270平平四(270平)】
十、【270平平五(300平)】
十一、【双拼490平】
样板间照片——源山春秋的宽境平墅起步就是210,最大户型更是达到540(就是现在展示的这个样板间),足够大的户型面积,承载起源山春秋的风格履新,也让我们看到了平墅产品里程碑式的革新。
样板间实拍,苹果手机原相机
一层,二层,三层因为有花园,所以都有独立的入户门头。
源山春秋外立面采用卢浮宫同款石材——进口葡萄牙米黄石,质感充盈,古朴自然,承启西山墅居百年建筑。
本户型为平二户型,540平的大平墅,带室内电梯,地上面积270平,地下面积270平。
地上一层,房本面积270平,使用面积也是270平,得房率可以达到100%,这个就相当于您买一个正常340平的房子的套内面积。
客厅南向面宽7.8米,将近127平的餐客空间,这在平层中完全看不到!
封闭式的中厨,可做中餐,西厨以及西餐岛台就在旁边。
平墅空间南向双亲套房,以约4.3米的面宽,南向次卧室总面积约为28的套房空间,可容纳2米大床、6组超大衣柜,宽松摆放床头柜、床尾凳以及床前柜,既保障了储物的需求,亦保障了生活的舒适度。
全屋卫生间地漏均为获得红点设计大奖的吉博力水母型防臭地漏,即使长期家中无人水封干涸也不会反味。
平墅主卧空间,拥有约7.4米的南向面宽,以及约50的奢阔尺度,让屋主人可以回归自然,回归本源,沉浸于自我独享的精神世界。
源山春秋平墅北向双次卧套房,可作为一双儿女的自由天地,亦可作为独立山景书房,可实现真正大四居格局。
同样也可延展为收藏自己兴趣的多功能空间,琴棋书画、运动瑜伽、家庭影院、红酒私藏,可引发无限遐想。
地下的空间主要是B1跟B2 空间,简装交房,可以按照个人想法进行设计装修。B1跟B2样板间做了一个挑空,超大的采光天井,让自然光直接照射进来。
项目优势汇总
1、项目周边非常的纯粹,周边没有回迁房,公租房等政策性住房
2、区域内还有2块住宅用地未拍卖,未来房价增值空间大
3、目前房子报价9.3万起,周边二手房成交价格在9.8万左右,一二手价格倒挂!
4、产品力超级强,210平以及270平超级大平层,市面上基本上没有!

加载中…