天润福熙大道朝阳区精装花园洋房、高层毗邻朝阳外国语学区
标签:
北京房价北京买房 |
天润•福熙大道,以巴黎十六区的优雅生活为蓝本,由国际大师设计建筑团队领衔打造,呈现一个同步世界的高档社区,正是这个城市生活的注解。
福熙大道项目优势——
1、亚奥稀贵土壤天赋自成,京城高阶资源醇熟汇聚
2、高层正南北通透板楼+低层超低密度洋房,两种产品可供选择,精装现房,12万平法式园林浪漫随行,以人居智慧献礼城市精英
3、北五环亚奥稀贵板块,地铁旁20分钟连接望京CBD;8分钟抵达奥林匹克森林公园;2分钟接驳地铁13号线坐享顶级资源,公园豪宅,国际教育氛围5层纯洋房,精妆现房宅邸花岗岩干挂石材立面,全龄多变空间12万法式园林,喷泉礼序,多维智慧生活
4、法式风格:法式墅境住区,ARTDECO石材立面庄重而舒展,优雅质感成就永恒经典
5、五层洋房:福熙大道五层纯洋房,180-220全龄空间,布局灵活多变
6、成熟园林:拥享12万法式墅境园林,占据中轴北区核心版块,漫观喷泉水景礼序相迎
7、智慧社区:千兆社区网络等多维智能配备,精妆升级,全智能家电,演绎多重智慧生活场景
8、匠心营造:融萃经典与现代审美,禀赋天润同泰严苛匠心标准此外,天润·福熙大道另有建面约199-305阔景高层在售,以舒适尺度犒赏上层人生
项目位置】
北五环顾家庄桥正北,清苑路城铁13号线北苑站向北200米。
北五环最后的城市核心居住区七纵三横极速畅达全城,项目周边出行便利,驾驶车辆到五环5分钟,到燕莎、望京区域10分钟,到北京国际机场20分钟,国贸、中关村30分钟。
福熙大道周边配套——
1、交通配套:距离地铁13号线北苑站仅200米,距离北五环2000米
2、商业配套:华贸天地商业街、保利影院、京客隆超市、果蔬好、永辉超市
3、教育配套:幼儿园:唐纳双语幼儿园、朝花幼儿园来广营园;小学、中学:朝阳外国语学校、花家地实验小学、化工大附属中学
4、医疗配套:中日友好医院、航空总医院(综合类)、安贞医院(特长心肺专科)、中日友好医院(疑难杂症)、清华长庚医院
5、公园配套:清河营郊野公园、奥林匹克公园、勇士营郊野公园
福熙大道所处的北五环亚奥板块,一直以来都是京城高端人士聚集地,区域内豪宅项目云集,承载着高端财富人群高品质的居住需求。亚奥板块为北京久负盛名的宜居板块,不可复制的稀缺属性,实现从繁华都会到桃源自由切换。
福熙大道内部参数——
【建筑立面】:土耳其进口石材
【产权年限】:70年
【交房时间】:现房
【容积率】:2.63
【绿化率】:50%
【物业费用】:4.98元/m²/月
(楼间距24米,11.4米南向面宽堪比别墅)
【户型解析】:福熙大道洋房产品户型多样,有平层,有跃层
70万国奥中央传世观邸,由10栋五层电梯花园洋房、16栋薄板高层景观住宅组成,最大楼间阔达百米,真正实现了城市景观住宅与低密度洋房相得益彰的高端品质。
叠墅B户型204平:南、北朝向,4室3厅3卫,2481万/套,分布于楼栋B8(6号楼)。
平墅A户型144平:南、北朝向,3室2厅2卫,1912万/套,分布于楼栋B6(7号楼)。
高层219平:南、北朝向,4室2厅2卫,2450万/套,分布于楼栋C1号楼(现11号楼)。
叠墅A户型229平:南、北朝向,4室3厅4卫,2913万/套,分布于楼栋B8(6号楼)。
院墅B户型227平:南、北朝向,3室3厅2卫,1599万/套,分布于楼栋B10(5号楼)。
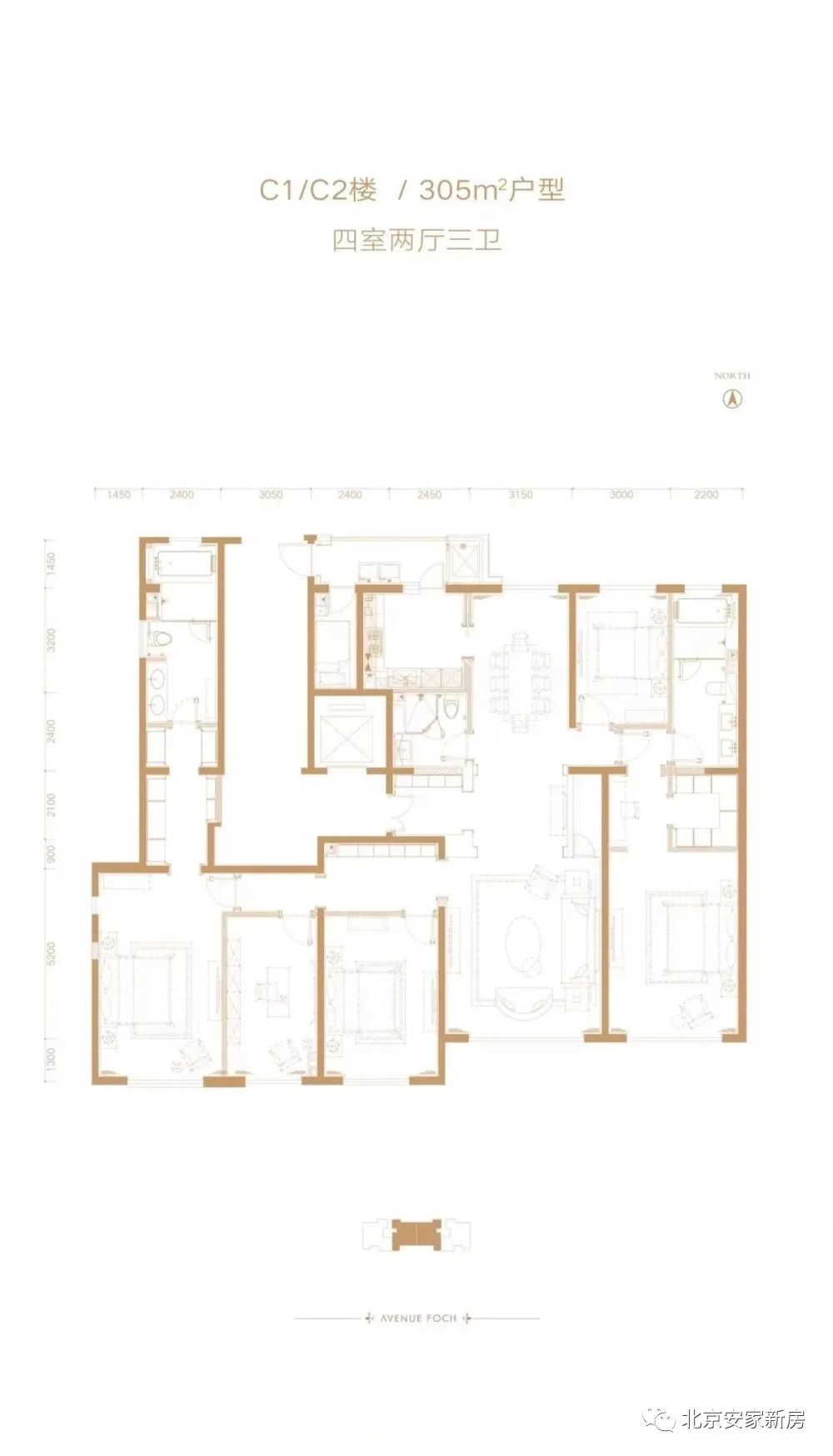
305平四室两厅三卫:南、北朝向,4室2厅3卫,3300万/套,分布于楼栋C1号楼(现11号楼)。
平墅B户型137平:南、北朝向,3室2厅2卫,1600万/套,分布于楼栋B5(14号楼)、B6(7号楼)。
251平四室两厅四卫:东、南、北朝向,4室2厅4卫,2790万/套,分布于楼栋C1号楼(现11号楼)。
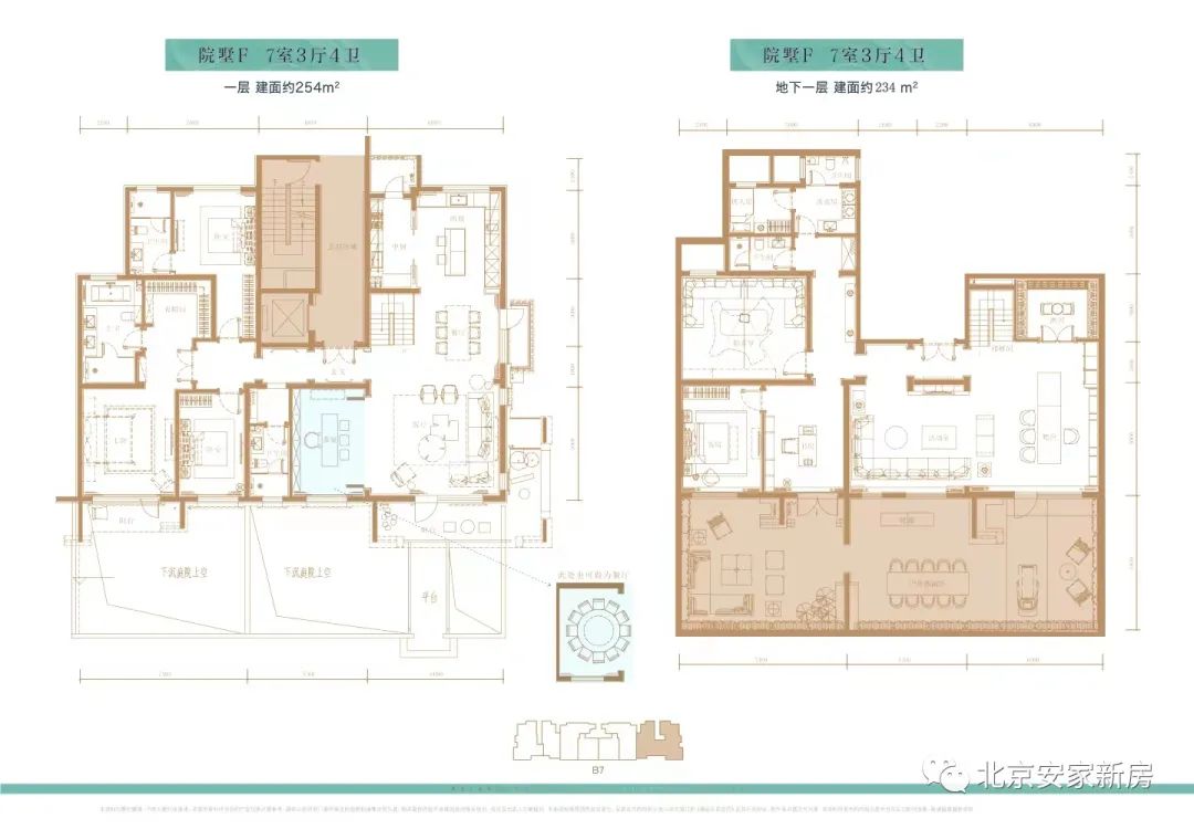
院墅F户型488平:南、北朝向,7室3厅4卫,4542万/套,分布于楼栋B7(15号楼)。
叠墅F户型436平:南、北朝向,6室3厅5卫,4571万/套,分布于楼栋B7(15号楼)。
【样板间欣赏】
【福熙大道周边实景】
出门就有学区配套,朝阳外国语9年一站式教育

加载中…