阳光城·檀悦独家揭秘后沙峪新现房洋房楼盘89三居520万
标签:
北京房价北京别墅北京买房北京新房 |
点击上方蓝字
随着2022年首批次土拍市场的完美落幕,顺义区成功完成两宗涉宅用地的供应任务。
摘得两宗地的开发商分别是旭辉及保利+金地的联合体,这些开发商并不是首次进驻顺义,选择顺义继续深耕的原因不仅在于地价相对可控,还在于看好顺义楼市的发展。
纵观近两年顺义区涉宅土地的出让成交情况,在近郊区中仅次于大兴,成为北京近郊区的主力成交区域,这预示着顺义区楼市可供货量相对充足。
而土地的充足供应,叠加上顺义区的成交量近几年一直稳居北京全市前四位,印证了顺义楼市的火热发展,不会昙花一现。
那么在顺义区买房到底值不值得呢?
01
为什么选在顺义
除主城区外,顺义区经济发展相对较好,位列全市第五位
顺义区的GDP在近郊及远郊区中遥遥领先,2021年顺义区GDP为2080亿,位列北京市第五位。
顺义区未来将作为承接主城区人口外溢的疏解区域之一
根据2035年总规中北京各区的人口变化,可以看出顺义区未来是人口导入型区域。
在之后的13年中,顺义区每年常住人口的年增长量将达到1万人次。
人口的聚集有利于促进经济的发展,继而该区域的房产价值将会得到提升,所以顺义区未来的楼市发展相对可期。
顺义拥有临空经济核心区,未来发展潜力巨大
机场是国家和地区经济增长的发动机
临空经济核心区的组建,有利于加快北京国际首都机场周边高速路网的优化,搭建起立体化的快捷城市交通体系,显著提升了顺义区机场与市区及周边重点城市建设区和经济功能区的通达性。
02
为什么选在后沙峪板块
聊完了顺义区自身的发展潜力,在不在顺义买房,相信各位看官自有评判,那么如果要在顺义买房的话,选择哪个板块买房最有价值呢?
2035年顺义区远景目标纲要中,后沙峪板块的未来发展利好
21年年底《顺义区国民经济和社会发展第十四个五年规划和二O三五年远景目标纲要》对外公布,其中后沙峪的相关利好发展值得关注。
后沙峪在未来将重点发展商务会展、产业金融、总部经济,加快集聚优质教育、高端医疗、文化体育等公共服务资源,打造环境优美、产城融合、宜居宜业的国际化城市组团。所以后沙峪是值得选择的板块之一。
顺义区规划分区
后沙峪板块内住宅供应相对稀缺,目前在售新盘屈指可数
北京有九大别墅区,其中顺义区包含两个别墅区——中央别墅区和潮白河别墅区。中央别墅区,作为中国第一个涉外别墅区,中国最早的高档别墅群落,具有高端圈层氛围。
后沙峪板块,是中央别墅区辐射下的核心板块。自2018年起,顺义区共成交21宗涉宅用地,主要集中在仁和及马坡板块,后沙峪板块仅成交5宗,且其中4宗集中在2018年。
当前后沙峪板块内的在售项目多为尾盘或入市时间相对较长的老盘,新入市项目相对较少,稀缺性凸显。
生活配套资源相对齐全,可满足日常休闲、娱乐、上学等物质及精神需求
- 靠近商圈:20分钟车程内可达到新国展、900米步行可达祥云小镇;
- 配套丰富的教育资源:ISB、鼎石、海嘉等国际学校,北师大附中顺义分校、北京四中顺义分校等百年学园;
- 生态资源环绕:温榆河生态走廊、罗马湖生态
- 高端休闲资源遍布:聚合了天星调良国际马术俱乐部、尼克劳斯高尔夫俱乐部、金色河畔高尔夫、黄港国际高尔夫俱乐部等高端圈层休闲资源;
- 美术馆云集:罗红美术馆、松·美术馆、红砖美术馆、寺上美术馆,各有特色,给人不同的艺术享受。
03
中央别墅区后沙峪板块迎来新项目——阳光城·檀悦
虽然目前后沙峪板块内在售项目屈指可数,但小编前几天得到一个消息,该区域将有一个新现房项目入市,买它即可快速入住且可更早享受到便利的商业、教育及其他相关配套资源。
接下来,小编给大家简单地介绍下这个项目——阳光城·檀悦。
项目位于顺义区火沙路与裕庆路交汇口,所处于首都机场临空经济示范区,是中央别墅区之核,集国际交通枢纽、国际商务核等战略规划政策于一体,是一个生活氛围高度成熟,兼具产业格局全面升级的快速发展区域,项目未来价值可期。
总体共计规划165套,业态包含洋房、叠拼及联排产品。
其中洋房96套,户型面积88
叠拼63套(上叠、下叠),户型面积220-360
所鉴即所享,实景精奢产品。据悉首先亮相于市场的是其洋房产品。
阳光城檀悦沙盘效果图
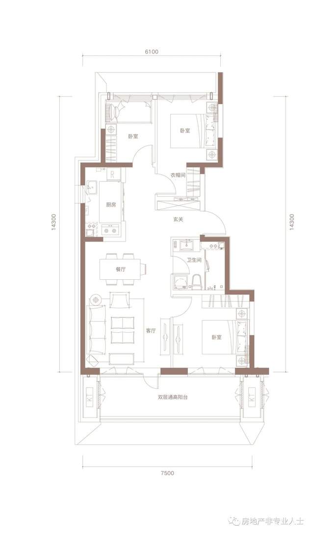
檀悦的洋房仅一栋楼,12F,奇数层和偶数层均为88三居室。
奇数层赠送设备平台8.1和北阳台的一半面积4;实得建面约100;
偶数层赠送设备平台8.1和北阳台的一半面积4,再加南向15.2的阳台,实得建面约115;
简单来说都是88的户型;1、3、5、7、9、11层实际使用面积有100;2、4、6、8、10 层实际使用面积有115。
偶数层洋房户型(两种不同的表现形式)
偶数层洋房户型(两种不同的表现形式)
项目采用新亚洲风格,崇尚形态极简、雍容内敛、追求自然。
细节处理上强调精工细琢,塑造时尚、健康、高端的人居环境。建筑是墅区内少有的通体石材建筑,全面塑造艺术化的住区环境。
洋房楼栋外立面
项目在景观规划上倾注南园北著的匠心精神,整个社区景观呈三街五巷布局,三街为衔香街、幽林街、空山街。
每一街都各具特色,而又互相融为一体,形成一个全开放式的区域。
以“檀悦生境,集美东方”为主题,演绎一种繁华与静谧完美相融的优雅生活。
04
小编建议
作为近几年新地块供应相对较少的后沙峪板块来说,阳光城·檀悦项目的入市为其注入了新鲜的活力。
项目的优势非常明显——现房,所见即所得,减少了客户购买到烂尾楼的风险。
小编建议,既然开发商展现出了诚意,我们的购房客户也别犹豫呦,想要立刻享受到中央别墅区的墅区生活,就赶紧冲吧!

加载中…