为竹代言|走进武重义的绿色世界
标签:
城市规划建筑设计景观设计迈丘设计 |
分类: 迈丘设计研究 |
为竹代言 | 走进武重义的绿色世界
https://5b0988e595225.cdn.sohucs.com/images/20200302/cca087c59b8d418fb59c04df64daa9e5.gif
武重义(Vo Trong Nghia)越南著名设计师,他擅长采用传统的智慧设计既便宜、耐用又节能的绿色建筑。近年来,他的建筑设计作品拉近了人与自然的关系,在国际上广受认可,获得多项大奖,被认为是越南最有潜力获得普利兹克奖的建筑师。 今天,迈丘小编,就带您一起走近他。
https://5b0988e595225.cdn.sohucs.com/images/20200302/7e99c62c878740c8b715c3b2888a3763.JPG
“建筑不仅具有美观功能
同时还能让人与自然之间建立起联系”
——武重义
个人介绍
越南建筑界领军人物武重义(Vo Trong Nghia),1976年出生于越南中部的广平省。作为新生代亚裔建筑师,他以自己独特的设计理念和设计语言,不断地在环保与绿色建筑方面进行着探索。 回溯他的建筑求索之路,我们来一窥大师的建筑灵魂。
竹子编织的童年记忆
越南独特的自然环境蕴育了竹文化,竹子不仅在越南的森林资源中占有重要的位置,而且还渗透到了越南人民生活的方方面面。 作为一名越南人,竹文化也深深地影响了武重义及他的设计思想。
https://5b0988e595225.cdn.sohucs.com/images/20200302/0490b10eb8d748deb5deee4e11747dc2.JPG
武重义从小在一间竹屋里长大,小时候就懂得用竹子制作竹篮子、竹帘等各种手工艺品。 “居有竹、食有竹、听有竹、用有竹、行有竹”的生活环境与生活经验为他对竹子、蔓藤和石头这类地域性材料的运用奠定了基础。
比如武重义在越南昆嵩设计的印度支那咖啡厅(Kontum Indochine Café),由5×3组巨大的竹簇作为支撑结构,而这些呈倒锥形的竹簇的设计灵感就是来源于越南渔夫在捕鱼时所用的一种由竹子编织而成的竹筐。
https://5b0988e595225.cdn.sohucs.com/images/20200302/08e0e51976494f1a91c094ff40fab8ee.JPG
日本现代建筑的思想启蒙
“我不喜欢陈腐和空洞的知识,我只学习我喜欢的,我常去图书馆或者日本有名的建筑事务所免费工作。 在日本,学生是自由的,但是他们要懂得为自己的行为负责。”
2002年,他考入日本东京大学攻读硕士,师从日本建筑大师内藤广教授。 他在 日本留学期间,开始认识现代建筑,同时,他发现日本人善 于利用天然资源融 入建筑设计和日常生活中 ,非常环保。
https://5b0988e595225.cdn.sohucs.com/images/20200302/67a8460dd7ee4dee83ba9ab9c8d36a32.JPG
内藤广作品,安云县美术馆,1997年
在这期间,他热衷于一座五层的木质建筑设计,但最终,他的毕业论文方向选择了空气动力学、风和水,这成为他日后成功的基础。 2004年,他取得东京大学土木工程设计硕士学位。 日本的文化以及日本的建筑师们对武重义产生了很大的影响。
越南地域特色的建筑奇葩
2006 年,武重义决定重返越南,成立了 Vo Trong Nghia 建筑事务所。在设计了一系列获奖作品后,Nghia 将低成本、当地材料和传统工艺的当代美学和现代方法进行整合,形成了一套可持续的建筑设计体系。
https://5b0988e595225.cdn.sohucs.com/images/20200302/6d8edc307cf04dd3895b533fd35769bc.JPG在缅甸进行冥想修行的武重义一家人
https://5b0988e595225.cdn.sohucs.com/images/20200302/c573b5829b924177b8abc0785aa0b40b.JPG武重义建筑事务所
武重义以环保和越南的气候特点 作为设计出发点,运用越南当地的竹子编织技术,带来一个又一个令世人瞩目的建筑作品,不但在越南本土获得巨大反 响,更在国际上引领了一股新的建筑潮流。
https://5b0988e595225.cdn.sohucs.com/images/20200302/ff6b8f27dfb24cbdb2886cf73c32fa82.JPG
设 计 哲 学
作为越南建筑界领军人物的武重义,同时作为新生代亚裔建筑师,以自己独特的设计理念和设计语言,不断地在环保与绿色建筑方面进行着探索。
武重义的建筑来源于自然,又回归自然,强调建筑的真实性与统一性。
壹:源于自然 | 生态材料开发与应用
“ 现代建筑不仅要把对环境的影响降到最低,而且还应该改善自然环境本身。 竹结构建筑和荒地造林的实施是可以改变我们未来发展路径的行之有效的方法 。”
“竹子”作为一个重要元素不断地出现在武重义的建筑作品中,这几乎成为他的建筑名片。
https://5b0988e595225.cdn.sohucs.com/images/20200302/1409310f2d944dc39ec2e5374875bdf1.JPG
武重义认为,当前建筑行业的主导材料钢筋、混凝土和玻璃的生产和使用均会带来城市热岛效应和全球温室效应。 但是竹子作为越南最常见的一种植物,在很多方面都具备成为绿色材料的特质。
https://5b0988e595225.cdn.sohucs.com/images/20200302/e4f7d7ab537b49dfa1d4c092d37e0749.JPG
然而因竹子自然生长尺寸不均、结构等自身缺陷,直接将竹子作为建筑结构材料有一定局限。 武重义结合越南对竹子的传统处理工艺和自身生活经验,克服了竹子的这些缺点。 他将竹子用泥浆浸渍并烟熏,增强其耐久性能以抵挡风雨侵蚀和虫蛀; 通过热处理把竹子加工成所需的形状; 将竹子进行组合来克服其长度、粗细不同的问题。 而竹子之间的联系均是通过捆绑和竹楔子、竹螺栓等传统手法,既能降低建筑成本,使建筑更加“自然”,体现了建筑的统一性和纯粹性。
https://5b0988e595225.cdn.sohucs.com/images/20200302/9f35682063144e07a5bb9bff33534a67.JPG
贰:回归自然 | 环境关怀与适应
“ 廉价的建筑也可以是美丽的,这些以天然材料建造的建筑,在未来若需要拆除或改建时,对环境造成的伤害将是最低。 ”武重义的建筑来源于自然,又回归自然,强调建筑的真实性与统一性 。”
武重义认为,当前快速城市化带来了一系列不可挽回的环境问题,身处这个时代,应该通过自己的方式来承担尽可能多的责任。 他提出既然随着地球人口增多,建筑越来越多、规模越来越大的趋势无法改变,就应该把建筑“绿化”,建筑的屋面、立面,甚至整个高层建筑都应该被绿化。 建筑既是为人而造,也应当为植物而建。
https://5b0988e595225.cdn.sohucs.com/images/20200302/6fadd2a062794a6eaf559cbc476e6a40.JPG
基于越南常年独特的高温潮湿气候特征结合自身海外所获得的建筑学知识,武重义将水冷和风冷等被动式策略良好的运用于建筑设计中,通透的建筑即使在越南这种气候背景下也能有效的降低了因空调和照明等带来的建筑能耗。
https://5b0988e595225.cdn.sohucs.com/images/20200302/0d9a008135794e59bc55002debd72fcc.JPG
叁:建筑真实——材料结构力学之美
建筑结构材料的受力性能出色和美观性、耐久性不足的矛盾,导致了 “建筑表皮”的出现,建筑的外观和建筑的内在严重分离,建筑的统一性与完整性遭到破坏,人们很难感受到一个真实的建筑。
https://5b0988e595225.cdn.sohucs.com/images/20200302/68690ed80bf1407483c840d441668915.JPG
但在武重义的建筑中,他又重新找回了建筑的完整统一性。他尊重建筑构造,认为建筑结构和建筑本身一样,具有其独特的存在价值,而不应该被隐藏在“表皮”之下。
武重义的建造哲学观点是追求在可持续环境下理性并深度地挖掘建筑及其材料的本真价值,去探求建筑设计如何基于结构、空间、材料等的真实属性而创造理性“浪漫”的建筑空间。
精 选 作 品
·14款
1、漂流岛度假村
https://5b0988e595225.cdn.sohucs.com/images/20200302/c52bcb8d6fb742debabdb759318d1661.JPG
地点: 越南吉婆岛
面积: 1100
年份: 2019
漂流岛度假村坐落于越南著名旅游胜地吉婆群岛中一座美丽的小岛上,建筑体处于一片大约3000平方米的私人沙滩上,一侧是绵延的壮美山脉,另一侧是广阔的白色沙滩。 设计的目的在于让客人沉浸在大自然的怀抱中。
https://5b0988e595225.cdn.sohucs.com/images/20200302/ad0996b9a4cb4e569da737dd7c550855.JPG
https://5b0988e595225.cdn.sohucs.com/images/20200302/32b18ed02b5f4cda8bf9058dc7e4eca8.JPG
https://5b0988e595225.cdn.sohucs.com/images/20200302/ea0773681b144c7cb91adbdd4050cd2f.JPG
武重义设计团队在项目中一贯使用竹子进行建造,可以在不影响所处的美丽海湾的情况下很方便的集成建造和后期拆除。 竹结构被茅草屋顶覆盖,为人们带来真实的越南文化体验,消减对环境的影响。
https://5b0988e595225.cdn.sohucs.com/images/20200302/d2fa847cee84427386e73fff00632e33.JPG
https://5b0988e595225.cdn.sohucs.com/images/20200302/40760253552541ecb375588a6c15e448.JPG
https://5b0988e595225.cdn.sohucs.com/images/20200302/7a30b89f35a241649da7f65e34c3439a.JPG
https://5b0988e595225.cdn.sohucs.com/images/20200302/785eb7ad01394a7583ec3ff0f0b6c268.JPG
2、Nocenco咖啡厅
https://5b0988e595225.cdn.sohucs.com/images/20200302/ac0b8b9187d541adbd126a1adea7b0e1.JPG
https://5b0988e595225.cdn.sohucs.com/images/20200302/51da2ccc776441938f5e372bbee6563b.JPG
地点: 越南荣市
面积: 687
年份: 2018年
咖啡厅位于越南中北部的荣市(Vinh),武重义建筑事务所对原址的一栋7层的混凝土建筑的顶层和屋顶花园进行了改造,使其成为一间新的城市咖啡厅。 屋顶处享有极佳的视野,能够俯瞰周围的低层住宅、河流、壮丽的森林景观和一系列历史悠久的建筑。
https://5b0988e595225.cdn.sohucs.com/images/20200302/b082820f4d8241c495a3cb58e2ef7f65.JPG
巨大的圆顶结构为咖啡厅赋予了引人注目的外观,在荣市的上空形成一个开放共享的聚会空间。 圆顶和矩形体量迎合了建筑既有的L形布局。 它还连接了两个竹制的拱形结构,使空间得以充分敞开于城市景观。
https://5b0988e595225.cdn.sohucs.com/images/20200302/933e8fc216d44da5a725c3c3c89f30e8.JPG
https://5b0988e595225.cdn.sohucs.com/images/20200302/d6303ff99fdc4467ba12654a763287ec.JPG
https://5b0988e595225.cdn.sohucs.com/images/20200302/90dfa8738fb94d3ca794d8cc000bfaaa.JPG
https://5b0988e595225.cdn.sohucs.com/images/20200302/0859123ed69547e6a473e06c57c62dac.JPG
3、竹屋群落
https://5b0988e595225.cdn.sohucs.com/images/20200302/5e3e8a783d844c42974d01544692c733.JPG
地点: 越南胡志明市
面积: 1450sqm
年份: 2015年
竹屋群位于毗邻胡志明市的新兴城市中心——钻石岛,是为附近的居民和从胡志明市慕名而来的外国游客设计的多功能活动中心。在武重义的设计下,八个大大小小的竹制场馆星罗棋布的散落在绿树葱茏的河岸公园。
https://5b0988e595225.cdn.sohucs.com/images/20200302/1eb8b2b991464637abbb6772bf196ad7.JPG
https://5b0988e595225.cdn.sohucs.com/images/20200302/4b25814b27754b029eaa137bdfd18f92.JPG
整个设计的灵感来源于用于庇护飞鸟的传统竹篮子。 展馆采用双分层穹顶结构, 覆盖着茅草的外层屋面从内部篮子状的结构中延伸出去,形成深厚的挑檐,挑檐的设计保护了内部竹结构免受日晒风吹。
https://5b0988e595225.cdn.sohucs.com/images/20200302/e9bda0e7b18e4ef0933ae5399676eaa7.JPG
https://5b0988e595225.cdn.sohucs.com/images/20200302/41403df0986f4f098c3109e78e9e2a28.JPG
https://5b0988e595225.cdn.sohucs.com/images/20200302/8b521b12f3344b36a81b2ccc8b34d988.JPG
尽管项目采用了传统的建造方式,但是设计师的目的并不是要重塑传统语境,而是要设计出符合时代特征的可持续建筑。 为此, 系统化竹子生产施工体系显得尤为重要,也是的这个项目成为传统民间艺术与现代建筑的融合的优秀实践。
https://5b0988e595225.cdn.sohucs.com/images/20200302/fe0098bc1e3d415aa78a804c1007c0fa.JPG
https://5b0988e595225.cdn.sohucs.com/images/20200302/f51c759bcc57488091300fc5f7cbdba6.JPG
4、米兰世博会越南馆
https://5b0988e595225.cdn.sohucs.com/images/20200302/0f9e0de66e46485aa7d5600275509f8c.JPG
https://5b0988e595225.cdn.sohucs.com/images/20200302/5a55c41aaac945f29ea893b1a61363b2.JPG
地点: 意大利米兰
面积: 887
年份: 2015年
2015年的米兰世博会,武重义为我们带来了森林景观般的越南馆,以“为地球,生命为生命”为理念,向城市居民传达生活的力量。建筑将树木带回城市景观,以分享自然的重要性,实现生活与自然的和谐相处。
https://5b0988e595225.cdn.sohucs.com/images/20200302/4f49d0903bab4d4aab169b29baa3b4eb.JPG
https://5b0988e595225.cdn.sohucs.com/images/20200302/8240c501570147b39f211bdf654a655a.JPG
https://5b0988e595225.cdn.sohucs.com/images/20200302/11d9c2740c0e4ee7b4886b9041becd44.JPG
https://5b0988e595225.cdn.sohucs.com/images/20200302/ed1e62f85433416199f0aba85c21cdf3.JPG
https://5b0988e595225.cdn.sohucs.com/images/20200302/ad9e8d9acb7a4f6d928c76e678ddbbe2.JPG
5、Vinata竹亭
https://5b0988e595225.cdn.sohucs.com/images/20200302/d73cbb18454f4ebab280ab2fd94507d2.JPG
https://5b0988e595225.cdn.sohucs.com/images/20200302/8cecfc5a2fff4518ab0cd2512026d277.JPG
地点: 越南河内
面积: 225 m2
年份: 2018年
Vinata竹亭坐落于越南河内的市中心,置身于其中可以看到周围的无数座高层住宅建筑。 基地被4座高层建筑围绕着,竹亭结构也被绿意环绕,旨在在这个高密度的城市空间内营造出一个宁静的氛围。
https://5b0988e595225.cdn.sohucs.com/images/20200302/19b3eba7b4d54c29b3535279288cb802.JPG
https://5b0988e595225.cdn.sohucs.com/images/20200302/c5bc382afeaa485c8ca1c48ea0c9819a.JPG
https://5b0988e595225.cdn.sohucs.com/images/20200302/595c67444c5740838ebd1ad5652b21f3.JPG
https://5b0988e595225.cdn.sohucs.com/images/20200302/40a3aa591a3845899398bcaf9608a90f.JPG
竹亭由14个模块组成,每个模块都由两个双曲贝壳状结构构成。 细竹的直径仅为40-50毫米,由竹制枣合钉组装后再用绳子紧固。 竹亭不仅为住户们提供了一个轻松的氛围,同时也是这个高建筑密度地区的地标,更为重要的是,它向城市居民灌输了一种重要的环境意识。
https://5b0988e595225.cdn.sohucs.com/images/20200302/0ad2254d9f79449b9281a30ebbf4ae3c.JPG
https://5b0988e595225.cdn.sohucs.com/images/20200302/c0b63fee68e04ba1a6131632056aa206.JPG
6、日本竹林馆
https://5b0988e595225.cdn.sohucs.com/images/20200302/6036dbfcc57b4372ad3ceffa34d42b0d.JPG
地点: 日本东京
面积: 97平方米
年份: 2015年
越南建筑事务所完成了其在日本的第一个作品,是一座为东京六本木的“TOTO GALLERY MA”建造的竹林馆。 该竹林馆由纯竹 结构构成,其中包含了三种结构元素: 网架、拱架和竹箱。 两个彼此交接的网架形成了整个体量,同时插入11个拱架创建出一系列的公共空间。
https://5b0988e595225.cdn.sohucs.com/images/20200302/eed500781b4148f891e3a54cc601b446.JPG
https://5b0988e595225.cdn.sohucs.com/images/20200302/bc3825bbe53b403ab2a26a7871191562.JPG
https://5b0988e595225.cdn.sohucs.com/images/20200302/09dec59c3795486f91c4943882223a17.JPG
https://5b0988e595225.cdn.sohucs.com/images/20200302/5334d9cd289247deac3cb18287270507.JPG
https://5b0988e595225.cdn.sohucs.com/images/20200302/40f5f895169345b28796b710b0137418.JPG
7、Viettel Offsite工作室
https://5b0988e595225.cdn.sohucs.com/images/20200302/fd105bbe5837424e86d8a9fac232fd5c.JPG
地点: 越南河内
面积: 1427
Viettel Offsite工作室位于河内约30公里处的郊区,工作室场地处于一片平缓的斜坡上,毗邻静谧的湖泊,四周绿荫环绕。 六个V字型墙面体块沿着场地自由布置,通过一处开放的走廊连接。 这些体块形成三角形空间: 两侧封闭,一侧朝向湖面和树林开敞。
https://5b0988e595225.cdn.sohucs.com/images/20200302/6707ede9b72f4438b8164f70ac8817e8.JPG
https://5b0988e595225.cdn.sohucs.com/images/20200302/d822242a9b4d4af2b358bbb5213af431.JPG
墙面构成一本打开的书的形状,突显“从内部向自然开放”的意向。 开敞的一侧直面着周边自然环境,让人们可以放松,沉浸于自然之中且集中精力。
https://5b0988e595225.cdn.sohucs.com/images/20200302/196fa7969cc247fa99cbe40ff52b274e.JPG
https://5b0988e595225.cdn.sohucs.com/images/20200302/f1a6a5f443c04b489d218d6f577b19b0.JPG
8、FPT大学理工楼
https://5b0988e595225.cdn.sohucs.com/images/20200302/2af008f4c2ae49bb84815c0a3929c46f.JPG
地点: 越南河内郎和乐
面积: 11065
年份: 2017年
FPT理工楼项目是FPT大学总体规划第一阶段的一部分,该规划旨在使FPT大学转型为具有全球竞争力且有环保意识的大学。 这栋楼相当于校园的大门,绿色的外观明确表现出校园未来的发展方向。 武重义团队的设计创造出新型的绿色校园建筑,并将可持续理念灌输给新一代年轻人。
https://5b0988e595225.cdn.sohucs.com/images/20200302/47dcdf058da14bf8a6d07c13cb73d5eb.JPG
https://5b0988e595225.cdn.sohucs.com/images/20200302/a020379c2fdc4dc09d95141a7b118ae6.JPG
https://5b0988e595225.cdn.sohucs.com/images/20200302/94c9d33375634f6e95e140e0e1a10434.JPG
https://5b0988e595225.cdn.sohucs.com/images/20200302/6d5d6c2d116d4a2fb924cf1a722d9893.JPG
9、Thang House
https://5b0988e595225.cdn.sohucs.com/images/20200302/98ff983899214d09abb8928c2d39aa78.JPG
https://5b0988e595225.cdn.sohucs.com/images/20200302/e3c343e7672c48c3b01bd994a45f91f9.JPG
地点: 越南岘港市
年份: 2019年
Thang House 由砖砌和石箱围绕着一个绿色庭院堆砌而成,是武重义建筑事务所“树木之屋”系列之一。因 建筑工程而损失的绿地面积由屋顶上的果园补偿,该果园可以吸收阳光并遮盖建筑物。该绿色住宅 通过提供可持续发展和环保的建筑,为城市景观的绿化和栖息地的改善做出贡献。
https://5b0988e595225.cdn.sohucs.com/images/20200302/be77bfb0efc046efb0329f2d9ece8e41.JPG
https://5b0988e595225.cdn.sohucs.com/images/20200302/e7750a0c92d14d0d8a2ff7e2b0049db4.JPG
https://5b0988e595225.cdn.sohucs.com/images/20200302/c6a0633bde4445d7b9ad8d2d391a3ea9.JPG
10、Binh住宅
https://5b0988e595225.cdn.sohucs.com/images/20200302/5d7d117a39e94dc39ca5ea5b7ce4b30d.JPG
https://5b0988e595225.cdn.sohucs.com/images/20200302/6c39d8b687d14e6c845db2ec5829a7b4.JPG
地点:越南胡志明市
面积:233
年份:2016年
在城市化加速进程的当下,越南的城市已经远远偏离其低密度热带风情的原始空间样貌。 新开发的城市空间失去了与自然的联系。 作为“树的房子”系列项目之一的Binh住宅就是一个给高密度社区带来绿色空间的典型住宅设计。
https://5b0988e595225.cdn.sohucs.com/images/20200302/f69c30dd89e1486a99dfcd5932ab1564.JPG
https://5b0988e595225.cdn.sohucs.com/images/20200302/aac2c73036d84cb580d129f86929efdf.JPG
https://5b0988e595225.cdn.sohucs.com/images/20200302/63265560f1cc4bfea5d13ff4a5a0f5df.JPG
建筑的每一层都设有户外花园并通过滑动玻璃门分隔室内外空间。 这种设计方案充分利用自然通风设备改善微气候,同时有利于调节各个房间的采光。
https://5b0988e595225.cdn.sohucs.com/images/20200302/fd0ac05d04d74f67b0d558e92278200c.JPG
https://5b0988e595225.cdn.sohucs.com/images/20200302/6935bd9bab374e2f9d0a9225eaa7b6e2.JPG
https://5b0988e595225.cdn.sohucs.com/images/20200302/39c021dec6bd4f75a5ab337b92900dd1.JPG
https://5b0988e595225.cdn.sohucs.com/images/20200302/53686af2cf6347fbab90bcc991886dca.JPG
https://5b0988e595225.cdn.sohucs.com/images/20200302/2b5479ab72574180a8587121d7ae8c32.JPG
11、树之家
https://5b0988e595225.cdn.sohucs.com/images/20200302/84c3d98b0b87493b895a1cc8ffd76e70.JPG
地点: 越南胡志明市
面积: 226.5
年份: 2014年
为了应对越南城市快速甚至完全的城市化趋势,武重义事务所设计了这所位于胡志明市绿色住宅。 建筑旨在重建居民与自然之间的联系,被称为“树之家”。 建筑包含五个独立的意象为花盆的混凝土盒子,这五栋独立的房子在这个不规则的场地中央围合成了一个院落,创造出几个小的相互联系的花园。
https://5b0988e595225.cdn.sohucs.com/images/20200302/d7bd11596d46480c9569bdaa26ef3159.JPG
https://5b0988e595225.cdn.sohucs.com/images/20200302/98a2a44c5aeb4038993e80527debfc7b.JPG
https://5b0988e595225.cdn.sohucs.com/images/20200302/3c18cbac4c714feab79bed3c7bcd464a.JPG
https://5b0988e595225.cdn.sohucs.com/images/20200302/65e66a6004e5438da3de3206d2f020ff.JPG
https://5b0988e595225.cdn.sohucs.com/images/20200302/8b199d0aed114c38a3fdf998a1060760.JPG
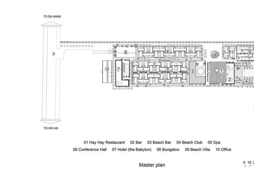
12、纳曼度假村贵宾别墅
https://5b0988e595225.cdn.sohucs.com/images/20200302/9145ccf406904ecf914f6ee3b99861f9.JPG
地点: 越南岘港
年份: 2017年
由武重义建筑事务所设计完成的大型项目坐落在由八十座小屋,一座酒店,六栋贵宾别墅和二十栋别墅组成的3公顷大小的区域内,致力于 利用自然和环境为游客提供一处放松和修养身心的空间。园区内大部分设施 都运用竹子、绿植和石材相互搭配塑造,并呈现出连贯和谐的样貌。
https://5b0988e595225.cdn.sohucs.com/images/20200302/4fa5f99c3fd346a6a2b154162fd6b478.JPG
https://5b0988e595225.cdn.sohucs.com/images/20200302/a7171c67508247858290e8a826151fb1.JPG
https://5b0988e595225.cdn.sohucs.com/images/20200302/41a4cda525ef4453bce2b96e08c9b11c.JPG
https://5b0988e595225.cdn.sohucs.com/images/20200302/3234a30363a84c25817f3a3ea1b12860.JPG
https://5b0988e595225.cdn.sohucs.com/images/20200302/5e88f7635be34ec99d5cafacc27b72f7.JPG
https://5b0988e595225.cdn.sohucs.com/images/20200302/10524a0228bb4a42b2e0d7c1d9add594.JPG
https://5b0988e595225.cdn.sohucs.com/images/20200302/09ba8245e79441b4b9f0f3c4362ab843.JPG
13、花园住宅
https://5b0988e595225.cdn.sohucs.com/images/20200302/9abfeffff48249958fcd61703a68276c.JPG
地点: 越南芽庄
面积: 276.77
年份: 2015年
住宅位于越南中部城市芽庄,延绵的群山环抱着城市,遥望大海。 巨大的屋顶上植被繁茂生长着,悬浮于空中的花园满足了业主在这片小小的场地上建起一座拥有大花园的宽阔住宅的愿望。这个巨大单坡屋顶的存在意义已超越了私人住宅,而是成为了整个邻里社区之内共享的小花园。
https://5b0988e595225.cdn.sohucs.com/images/20200302/b45a8d1b9d12493eb6856a316b145600.JPG
https://5b0988e595225.cdn.sohucs.com/images/20200302/737a7548f0e344a68d5c3bb87c5c719f.JPG
https://5b0988e595225.cdn.sohucs.com/images/20200302/6f5bb0bc76a8459ea6668e335fac4c0d.JPG
https://5b0988e595225.cdn.sohucs.com/images/20200302/40ddf798b930434eb0b9202fb88472e5.JPG
https://5b0988e595225.cdn.sohucs.com/images/20200302/0598b1b138bf4f67ada2403fea7a0380.JPG
https://5b0988e595225.cdn.sohucs.com/images/20200302/2a48cf49835c471e9de19a37e6af06c6.JPG
14、Viettel Offsite工作室
https://5b0988e595225.cdn.sohucs.com/images/20200302/121ae616dca040b8bd8d6c618b17c077.JPG
地点: 越南胡志明市
面积: 475
年份: 2018年
场地位于胡志明市的一个新住宅区域内, 建筑师将重点放在设计一座将公园绿色景观引入室内空间的住宅,让它成为环境的延伸。这座住宅是武重义事务所“House for Trees”(树林之屋)系列之一,设计团队寻求即使在小型住宅中都尽可能的融合绿色植被,在城市中创造一片公园,最终使“绿色建筑”遍布整个世界。
https://5b0988e595225.cdn.sohucs.com/images/20200302/2a7655aeafbf4d02acdf8ab317c6584d.JPG
https://5b0988e595225.cdn.sohucs.com/images/20200302/3c7ed947cc554b1bbb8619e6ed5fd634.JPG
https://5b0988e595225.cdn.sohucs.com/images/20200302/ffcae395bddc430c9a2d7f315e49448a.JPG
https://5b0988e595225.cdn.sohucs.com/images/20200302/f358e91ab2ce4a6d9363aa0fdbace429.JPG
https://5b0988e595225.cdn.sohucs.com/images/20200302/02dbaf5bdea94ad7b9342cf130606d82.JPG
https://5b0988e595225.cdn.sohucs.com/images/20200302/a5a8f80d3f064e48b70fcc7736f20b1b.JPG
https://5b0988e595225.cdn.sohucs.com/images/20200302/045a35f9cae449309a88f37a7167c602.JPG
* 图片来自网络,仅供学习参考!
https://5b0988e595225.cdn.sohucs.com/images/20200302/b3c66d2dc69a4009b533ab7cefd914ff.gif
美国景观设计师协会(ASLA)国际会员
国家风景园林工程设计专项乙级资质
国家级高新技术企业

加载中…