河北魏县气象中心科技展览馆规划设计
标签:
气象局展示设计博物馆规划设计文化类建筑规划市政建设工程设计文化传承创意设计 |
魏县气象中心由国家气象观测站和气象科技馆两部分组成,新址位于城区南郊的魏祠公园内。气象中心的规模不大,建筑面积约一千平方米。主要用于天气预报、业务办公和科技知识普及。
项目概览
https://oss.gooood.cn/uploads/2019/07/016-meteorological-center-of-wei-county-china-by-beijing-guanyi-urban-architectural-design-960x539.jpg
魏县隶属河北省邯郸市,历史文化悠久。魏祠公园毗邻市区,园内林木茂盛,风貌古朴。气象馆的选址偏于公园一隅,地势平坦,环境清幽,非常适于气象数据的采集和检测。
场地平面图
https://oss.gooood.cn/uploads/2019/07/013-meteorological-center-of-wei-county-china-by-beijing-guanyi-urban-architectural-design-960x709.jpg
鸟瞰图
https://oss.gooood.cn/uploads/2019/07/015-meteorological-center-of-wei-county-china-by-beijing-guanyi-urban-architectural-design-960x539.jpg
由于建设用地范围较大,设计时选择传统的平房合院布局,营造出内向的办公环境和外向的园林氛围。建筑体形简洁朴实,以经济实用为主,外观沉稳低调,以融入公园景观系统,成为游客观赏的子项之一。
青砖广场
https://oss.gooood.cn/uploads/2019/07/006-meteorological-center-of-wei-county-china-by-beijing-guanyi-urban-architectural-design-960x640.jpg
观测站入口
https://oss.gooood.cn/uploads/2019/07/004-meteorological-center-of-wei-county-china-by-beijing-guanyi-urban-architectural-design-960x640.jpg
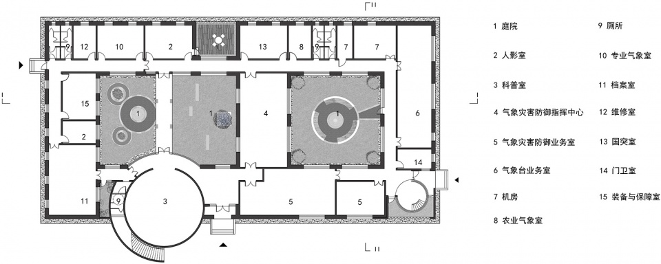
气象观测站与气象科技馆分设在两个院落里,各自有独立的出入口,避免相互干扰。功能空间以内部环廊串联,布置在绿化庭院周边,效率与情趣共融。
院落
https://oss.gooood.cn/uploads/2019/07/014-meteorological-center-of-wei-county-china-by-beijing-guanyi-urban-architectural-design-960x539.jpg
https://oss.gooood.cn/uploads/2019/07/007-meteorological-center-of-wei-county-china-by-beijing-guanyi-urban-architectural-design-960x640.jpg
建筑墙体主要采用青砖砌筑,斜坡屋面覆盖灰瓦,以向地域文化致意。与天文气象内涵相关的元素主要体现在细部装饰中:外墙上的彩虹状砖拱,内院里的波浪纹叠瓦以及祥云图案的金属挂板。另外科技馆入口广场处设置的青砖柱列,向陶寺选址尧舜故都的史前天文装置致敬,而高耸于整体建筑之上的圆锥体展厅,则象征着历史悠久的古代观象台。
建筑以青砖砌筑,向地域文化致意
https://oss.gooood.cn/uploads/2019/07/003-meteorological-center-of-wei-county-china-by-beijing-guanyi-urban-architectural-design-960x640.jpg
https://oss.gooood.cn/uploads/2019/07/005-meteorological-center-of-wei-county-china-by-beijing-guanyi-urban-architectural-design-960x640.jpg
气象中心外围场地宽阔,布置了荷塘、草坪、广场、步道等景观设施以增加游览的观赏性。在院落空间内设置不同的景观小品,既丰富了视觉空间,又可以作为休憩场所加以利用。院中部分树木移自气象中心原有的办公场所,喻意着事业相继,星火相传的宗旨。
园中树木
https://oss.gooood.cn/uploads/2019/07/017-meteorological-center-of-wei-county-china-by-beijing-guanyi-urban-architectural-design-960x637.jpg
办公空间外观
https://oss.gooood.cn/uploads/2019/07/018-meteorological-center-of-wei-county-china-by-beijing-guanyi-urban-architectural-design-960x669.jpg
广场夜景
https://oss.gooood.cn/uploads/2019/07/001-meteorological-center-of-wei-county-china-by-beijing-guanyi-urban-architectural-design-960x660.jpg
建筑夜景
https://oss.gooood.cn/uploads/2019/07/002-meteorological-center-of-wei-county-china-by-beijing-guanyi-urban-architectural-design-960x640.jpg
平面图
https://oss.gooood.cn/uploads/2019/07/010-meteorological-center-of-wei-county-china-by-beijing-guanyi-urban-architectural-design-960x384.jpg
立面图
https://oss.gooood.cn/uploads/2019/07/009-meteorological-center-of-wei-county-china-by-beijing-guanyi-urban-architectural-design-960x708.jpg
剖面图1-1
https://oss.gooood.cn/uploads/2019/07/011-meteorological-center-of-wei-county-china-by-beijing-guanyi-urban-architectural-design-960x102.jpg
剖面图2-2
https://oss.gooood.cn/uploads/2019/07/012-meteorological-center-of-wei-county-china-by-beijing-guanyi-urban-architectural-design-960x218.jpg

加载中…