建筑快题案列分析--某居住区老年活动中心(上海交通大学真题)
|
建筑快题案列分析--某居住区老年活动中心(上海交通大学真题)
某居住区为了更好地活跃老年人的精神文化生活,拟在小区内建一座老年活动中心。用地条件见基地图。总建筑面积1500 平方米(可调整±20%)。 一、设计内容及建筑面积分配 1. 多功能厅(可考虑设置小舞台及小卖部): 250平方米。 2 . 桌球室 : 120 平方米。 3. 乒乓球室: 90 平方米。 4. 健身房 : 90 平方米。 5. 阅览室: 90 平方米。 6. 棋牌室: 60 平方米。 7. 麻将室: 60 平方米。 8. 书画室: 60 平方米。 9. 茶室: 20 平方米。 10. 办公室: 15 平方米×2。 以上各用房面积可调整 ±10%。此外,还需安排门厅、楼梯、厕所、库房等。 二 、设计要求 1. 建筑功能上注意分区合理,特别注意老年人的心理、行动特点。 2. 建筑物控制在3 层以下(也可局部3 层)。 3. 充分考虑地形特点,组织好古树与建筑的关系。 外部空间设计、室外环境要适当考虑布置小品、绿化、铺地等,以考虑天气好时老人在室外活动的可能性。 4. 造型新颖、亲切,体现老年活动中心的风貌。 三 、图纸要求 1. 总平面图 1 ∶ 500。 2. 各层平面图1 ∶ 200(或1 ∶ 300),注明各房间的名称及主要房间的建筑面积。 3. 立面图(1 ~ 2 个)1 ∶ 200(或1 ∶ 300)。 4. 剖面图(1 个)1 ∶ 200(或1 ∶ 300)。 5. 简要设计说明。 外观透视或分析图等,不做统一要求,可根据需要自行安排。可尺绘或徒手,表现方法不限。图幅尺寸420 毫米×594 毫米,图纸张数1 ~ 2 张,考生自定,采用硫酸纸或不透明白纸均可。 注 1 : 考场提供A2 硫酸纸及不透明白纸各2 张,尺寸为420 毫米×594 毫米,作为答题纸;另提供草 图纸2 张,作为构思方案用。答在草图纸上一律不给分。 注2: 绘图用具(如绘图笔、尺、彩铅、橡皮等)考生自带。 考点浅析 老年活动中心与社区活动中心都是考研快题中经常出现的题目,功能一般较为简单,场地上会有不同的难点设置。老年活动中心作为小区的公共服务配套建筑,要考虑建筑的无障碍性、通用性。同时要注意与周边有利景观的结合及建筑基地内景观的设计与营造。场地东面和西面的小区道路为人流的主要来源方向,可以考虑主次入口的设置。场地东面的小区绿地和基地内的古树遥相呼应,作为主要景观朝向,在建筑体块与建筑功能上充分利用这些有利的景观要素,另外可以利用场地中的古树组织室外活动场地。 建筑功能以动静要求来组织垂直分区,把相对安静的书画、阅览、办公等布置在二楼,同时考虑利用东面的景观朝向。其余功能可布置在一楼。考虑到250 平方米的多功能厅需要较大的无柱空间,可以设计为单独的体块,但要结合入口门厅布置,考虑人流的快速疏散、聚集,注意洗手间等辅助功能的配套布置。茶室可以结合室外活动场地布置,考虑与基地中的古树结合,也要考虑对小区绿地景观的利用。无障碍设计上考虑老年人活动的特性,如入口处无障碍坡道的设置、室内无障碍电梯的布置等细节的设计。 图纸2 张,作为构思方案用。答在草图纸上一律不给分。 注2: 绘图用具(如绘图笔、尺、彩铅、橡皮等)考生自带。 (说明: 海上艺号手绘与快题培训中心的学员在设计此题时均采用了A1 纸张。) 案 例 点评:
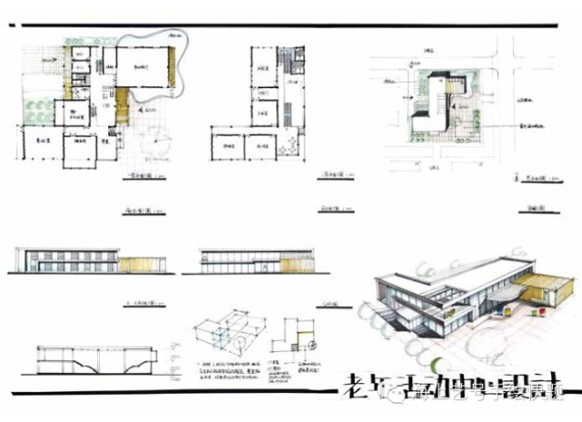
场地关系分析较为准确,总平面布局紧凑,图底关系饱满,主次入口设计合理,建筑体量韵律感较强。建筑多功能厅通过独立体块的设置较好地解决了人流的聚集疏散。茶室空间较好地结合了古树与室外场地布置。但是阅览室的景观朝向不够理想,对小区绿地景观利用不够。 建筑造型较好,色彩、线条表现娴熟,表现手法流畅。 案例
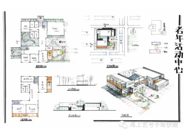
点评: 主次入口设计合理,门厅的休息空间符合公共建筑要求。报告厅独立体块设计满足了无柱大空间的设计要求,但是疏散入口设置在水池中,不利于疏散。茶室景观朝向良好,但室外场地布置稍弱。二楼的公共休息区结合古树布置景观朝向较好。阅览室、书画室离棋牌、麻将室距离太近,会稍有影响。 建筑总平面与效果图表达有出入,不够严谨。平面图、效果图表达比较熟练,建筑造型能力较好。 案例 点评: 建筑以体块设计来完成动静分区,逻辑较为清晰。茶室与阅览室跟室外景观结合较好,但是书画室靠门厅太近影响其使用。垂直交通穿插于内庭院中,是较好地一种景观处理方式。 场地图底关系强烈,建筑体块造型丰富,表达较为生动。 案例
点评:
总平面图表达清晰完整,主次入口设计合理。建筑平面图中注重实用空间与景观空间的结合,但是过多的非实用功能的布置让建筑体块过大,给小建筑带来些许笨拙感。茶室空间与室外环境结合良好,阅览空间充分利用了东面小区绿地景观。 画面表现整体感较好,建筑效果图表达较为熟练,色彩配置恰当。 案例
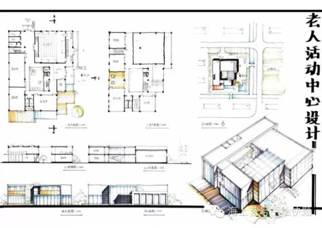
点评: 建筑总平面图布局构图饱满,图底关系强烈。次入口设置没有结合给定的道路关系布置,布置在西面不合理,西面基地中没有交待道路条件。茶室与阅览室结合古树布置,充分利用了景观条件。但是相对嘈杂的棋牌室布置在阅览室旁边会干扰阅览与书画活动。健身房可与乒乓球室互换,健身房朝东面开窗可取小区绿化景观。
建筑造型尚好,但是色彩运用稍弱,有些生硬。
更多案列请参考书籍《名校考研快题设计高分攻略---建筑建筑快题设计》 |
喜欢
0
赠金笔

加载中…