安全出口与疏散出口的区别?
| 分类: 建筑设计 |
安全出口与疏散出口的区别?
为了在发生火灾时,能够迅速安全地疏散人员和抢救物资,减少人员伤亡、降低火灾损失,在建筑防火设计时,必须设置足够数量的安全出口和疏散出口,并分散布置、易于寻找。
一、安全出口
安全出口是指供人员安全疏散用的楼梯间、室外楼梯的出入口或直通室内外安全区域的出口,保证在火灾时能够迅速安全地疏散人员和抢救物资,减少人员伤亡,降低火灾损失。防火检查中,通过对安全出口的数量、宽度、间距、畅通性等进行检查,核实安全出口的设置是否符合现行国家工程消防技术标准的要求。
(一)检查内容
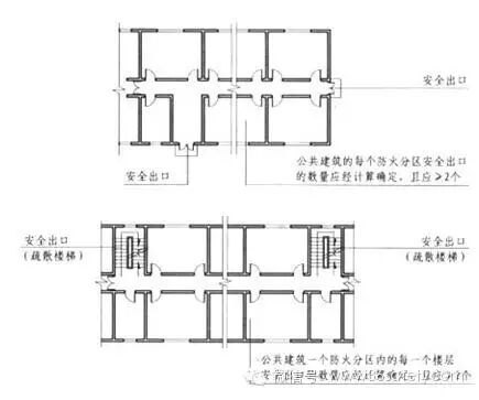
1.安全出口的数量
安全出口的数量与安全出口总宽度、安全疏散距离有直接关系。当安全出口总宽度足够时,还需要保证在不同人员分布条件下的安全疏散距离,二者相互结合才能使安全出口的布置更加合理。具体要求为:
公共建筑内每个防火分区或一个防火分区的每个楼层,安全出口不少于2个。当公共建筑仅设一个安全出口或一部疏散楼梯时,具体检查要求为:
①除托儿所、幼儿园外单层公共建筑或多层公共建筑的首层,建筑面积小于等于200m2且人数不超过50人的。
②除医疗建筑,老年人建筑,托儿所、幼儿园的儿童用房,儿童游乐厅等儿童活动场所和歌舞娱乐放映游艺场所等外,耐火等级、建筑层数、每层最大建筑面积和使用人数符合相关规定的公共建筑。
③除歌舞娱乐放映游艺场所外,防火分区的建筑面积不大于50m2且经常停留人数不超过15人的地下或半地下建筑(室)。
(2)住宅建筑
住宅建筑安全出口数量与建筑单元每层的建筑面积和户门到安全出口的距离有关,一般要求住宅住宅单元每层的安全出口不少于2个。当住宅每单元仅设一个安全出口或一部疏散楼梯时,检查要求为:
①建筑高度不大于27m的住宅,每个单元任一层的建筑面积小于650m2且任一户门至最近安全出口的距离小于15m。
②建筑高度大于27m、不大于54m的住宅,每个单元任一层的建筑面积小于650m2,且任一户门至最近安全出口的距离小于10m。
(3)厂房
厂房每个防火分区或一个防火分区的每个楼层的安全出口不少于2个。当厂房仅设一个安全出口时,检查要求为:
①甲类厂房,每层建筑面积不超过100㎡,且同一时间的生产人数不超过5人。
②乙类厂房,每层建筑面积不超过150㎡,且同一时间的生产人数不超过10人。
③丙类厂房,每层建筑面积不超过250㎡,且同一时间的生产人数不超过20人。
④丁、戊类厂房,每层建筑面积不超过400㎡,且同一时间的生产人数不超过30人。
⑤地下或半地下厂房(包括地下或半地下室),每层建筑面积不大于50m2,且同一时间的作业人数不超过15人。
⑥地下、半地下厂房或厂房的地下室、半地下室,如有防火墙隔成多个防火分区且每个防火分区设有一个直通室外的安全出口时,每个防火分区可利用防火墙上通向相邻分区的甲级防火门作为第二安全出口。
(4)仓库
每座仓库的安全出口不少于2个。当仓库仅设一个安全出口时,检查要求为:
①仓库占地面积不大于300m2。
②仓库防火分区的建筑面积小于等于100m2。
③地下、半地下仓库或仓库的地下室、半地下室的建筑面积小于等于100m2。
④地下、半地下仓库或仓库的地下室、半地下室,如有防火墙隔成多个防火分区且每个防火分区设有一个直通室外的安全出口时,每个防火分区可利用防火墙上通向相邻分区的甲级防火门作为第二安全出口。
(5)汽车库、修车库
汽车库、修车库的每个防火分区内的人员安全出口不少于两个,Ⅳ类汽车库和Ⅲ、Ⅳ类的修车库可设置1个安全出口。
(6)人防工程
每个防火分区的安全出口不少于2个。当人防工程仅设一个安全出口时,检查要求为:
①如有防火墙隔成多个防火分区且每个防火分区设有一个直通室外的安全出口时,每个防火分区可利用防火墙上通向相邻分区的甲级防火门作为第二安全出口。
②建筑面积不大于500㎡,其室内地坪与室外出入口地面高差不大于10m,容纳人数不大于30人的防火分区,当有竖井,且竖井内有金属梯直通地面时,可设一个安全出口或一个相邻防火分区相通的防火门。
③建筑面积不大于200㎡,且经常停留人数不大于3人的防火分区,可只设置一个通向相邻防火分区的防火门。
④改建工程的防火分区,当相邻防火分区有符合规范规定的安全出口时,可设置在不同方向且不少于两个通向相邻防火分区的防火门作为安全出口。
2.安全出口的宽度
建筑中安全出口总宽度,与安全疏散设施的构造形式,建筑物的耐火等级、使用性质、消防安全设施等多种因素有关。安全出口宽度检查时,需要注意:
(1)当每层疏散人数不等时,疏散楼梯的总宽度可分层计算,地上建筑内下层楼梯的总宽度按该层及以上疏散人数最多一层的疏散人数计算。
(2)地下建筑内上层楼梯的总宽度按该层及以下疏散人数最多一层的人数计算。
(3)首层外门的总宽度按该建筑疏散人数最多的一层的疏散人数计算确定,不供其他楼层人员疏散的外门,可按本层疏散人数计算确定。
3.安全出口的间距
每个防火分区、一个防火分区的每个楼层,其相邻2个安全出口最近边缘之间的水平距离不小于5m。
4.安全出口的畅通
建筑物的安全出口在使用时保持畅通,不得设有影响人员疏散的突出物和障碍物,安全出口的门向疏散方向开启。
(二)检查方法
通过查阅消防设计文件、建筑平面图,剖面图,了解建筑高度、使用功能和耐火等级等,根据检查场所或建筑的使用功能确定疏散人数和疏散宽度指标,计算该场所或建筑每层(防火分区)需要的安全出口总宽度。根据计算结果开展现场检查,实地查看安全出口的数量,计算每个安全出口需要的最小疏散宽度,逐一核实每个安全出口的宽度是否满足现行国家工程消防技术标准规定,同时检查安全出口宽度与疏散走道、疏散楼梯梯段的净宽度之间是否互相匹配。安全出口的宽度、间距测量值的允许负偏差不得大于规定值的5%。
疏散出口包括安全出口和疏散门,这里主要指的是疏散门,即设置在建筑物内各房间直接通向疏散走道的门或安全出口上的门。防火检查中,通过对疏散门的数量、宽度、形式、间距、开启方向和畅通性等开展检查,核实疏散门的设置是否符合现行国家工程消防技术标准的要求。
(一)检查内容
1.疏散门的数量
疏散门的数量根据房间或场所需要的疏散总宽度经计算确定,与安全出口的设置原则基本一致。检查要求为:
公共建筑内各房间疏散门的数量不少于2个。除托儿所、幼儿园、老年人建筑、医疗建筑、教学建筑内位于走道尽端的房间外,当房间仅设一个疏散门时,需要注意:
①位于两个安全出口之间或袋形走道两侧的房间,对于托儿所、幼儿园、老年人建筑,建筑面积不大于50m2;对于医疗建筑、教学建筑,建筑面积不大于75m2;对于其他建筑或场所,建筑面积不大于120m2。
②位于走道尽端的房间,建筑面积小于50m2且疏散门的净宽度不小于0.90m,或由房间内任一点至疏散门的直线距离不大于15m、建筑面积不大于200m2且疏散门的净宽度不小于1.40m。
③位于歌舞娱乐放映游艺场所内的厅、室或房间,建筑面积不大于50m2且经常停留人数不超过15人。
④位于地下或半地下的房间,设备间的建筑面积不大于200m2;其他房间的建筑面积不大于50m2且经常停留人数不超过15人。
http://mmbiz.qpic.cn/mmbiz/iaCaaTMkvJED5cxhmD5CumOemnvF7IJtibMRIibaauBud557LIZrX4hicQBDWXiag3nLQJsYT1lhos6k5z1vz7tMOHQ/0(2)剧院、电影院和礼堂的观众厅
根据人员从一、二级耐火等级建筑的观众厅疏散出去的时间不大于2min,从三级耐火等级的剧场、电影院等的观众厅疏散出去的时间不大于1.5min 的原则,剧院、电影院和礼堂的观众厅每个疏散门的平均疏散人数不超过250人;当容纳人数超过2000人时,其超过2000人的部分,每个疏散门的平均疏散人数不超过400人。例如,一座容纳人数为2400 人的剧场,需要设置的疏散门数量为:2000/250+400/400=9(个),每个疏散门的平均疏散人数约为:2400/9=267(人),按2min 控制疏散时间计算出来的每个疏散门所需通过的人流股数为:267/(2×40)=3.3(股)。此时,还需要按4股通行能力来进一步核实疏散门的宽度,即需要采用4×0.55=2.2(m)的疏散门较为合适。
对于体育馆,体育馆观众厅容纳的人数变化幅度较大,由三、四千人到一、两万人。观众厅每个疏散门平均担负的疏散人数也相应地有个变化的幅度,而这个变化又与观众厅疏散门的设计宽度密切相关。体育馆建筑均为一、二级耐火等级,依据容量的不同,人员从观众厅疏散出去的时间一般按3min~4min 控制,每个疏散门的平均疏散人数一般不超过400~700 人。
2.疏散门的宽度
疏散门的宽度是决定疏散时间的重要因素,与疏散出口的数量、疏散总宽度之间必须相互协调、配合。尤其是剧院、电影院、礼堂、体育馆、学校、商店、办公楼、候车(船)室、民航候机厅、展览厅、歌舞娱乐放映游艺场所等人员密集场所,对疏散出口宽度的检查显得更加重要。公共建筑内疏散门和住宅建筑户门的净宽度不小于0.9m;观众厅及其他人员密集场所的疏散门,净宽度不得小于1.4m。需要注意:
(1)疏散门的宽度与走道、楼梯宽度的匹配性。一般,走道的宽度均较宽,当以疏散门宽为计算宽度时,楼梯的宽度不得小于疏散门的宽度;当以楼梯的宽度为计算宽度时,疏散门的宽度不得小于楼梯的宽度。此外,下层的楼梯或疏散门的宽度不得小于上层的宽度;对于地下、半地下,则上层的楼梯或门的宽度不得小于下层的宽度。
(2)体育馆、剧院、电影院和礼堂观众厅疏散门的宽度与数量、疏散时间的匹配性。例如,如一座容量为8600人的一、二级耐火等级的体育馆,如果观众厅的疏散门设计为14 个,则每个疏散出口的平均疏散人数为8600/14=614(人)。假设每个出口的宽度为2.2m(即4 股人流所需宽度),则通过每个疏散门需要的疏散时间为不符合疏散要求。因此,需要考虑增加疏散门的数量或加大疏散门的宽度。如果采取增加出口的数量的办法,将疏散门数量增加到18 个,则每个疏散门的平均疏散人数为8600/18=478(人),通过每个疏散门需要的疏散时间则缩短为符合疏散要求。
3.疏散门的形式
疏散门的形式根据建筑类别、使用性质进行确定。检查要求为:
(1)民用建筑和厂房的疏散门,采用向疏散方向开启的平开门,不得采用推拉门、卷帘门、吊门、转门和折叠门。仓库的疏散门采用向疏散方向开启的平开门,但丙、丁、戊类仓库首层靠墙的外侧可采用推拉门或卷帘门;电影院、剧场的疏散门采用甲级自动推闩式外开门。
(2)人员密集场所内平时需要控制人员随意出入的疏散门和设置门禁系统的住宅、宿舍、公寓建筑的外门,要保证火灾时不需使用钥匙等任何工具即能从内部易于打开,并在显著位置设置标识和使用提示。
4.疏散门的间距
每个房间相邻2个疏散门最近边缘之间的水平距离不小于5m。
5.疏散门的开启
除甲、乙类生产车间外,人数不超过60人且每樘门的平均疏散人数不超过30人的房间,其疏散门的开启方向不限;开向疏散楼梯或疏散楼梯间的门,当门完全开启时,不得减少楼梯平台的有效宽度。疏散门在使用时保持畅通,不得上锁或在其附近设有影响人员疏散的突出物和障碍物。
(二)检查方法
通过查阅消防设计文件、建筑平面图、门窗表和门窗大样,了解建筑层数、高度、使用功能等,一般场所或房间根据使用功能、建筑面积确定疏散门设置数量,对于剧场、电影院和礼堂的观众厅或多功能厅、体育馆的观众厅等特殊场所,还需要根据每个疏散门的平均最多疏散人数进一步校核疏散门的数量。结合计算结果开展现场检查,实地查看疏散门的数量,根据疏散宽度指标逐一核实每个疏散门的宽度是否满足现行国家工程消防技术标准规定,同时检查疏散门宽度与疏散走道、疏散楼梯梯段的净宽度之间是否互相匹配。疏散门的宽度、间距测量值的允许负偏差不得大于规定值的5%。对于有防火要求的疏散门,现场还需核查产品与市场准入文件、消防设计文件的一致性。
三、安全疏散距离
安全疏散距离的长短与建筑物的使用性质、人员密集程度、人员自身活动能力等因素有关,直接影响疏散所需要的时间。防火检查中,通过对安全疏散距离的测量,检查其是否符合现行国家工程消防技术标准要求,并进一步核实疏散门或安全出口的布置是否均匀、合理。
(一)检查内容
民用建筑的安全疏散距离,主要包括房间内任一点至直通疏散走道的疏散门之间的距离、直通疏散走道的房间疏散门到最近安全出口之间的距离。厂房安全疏散距离。即厂房内任一点至最近安全出口的距离.需要注意:
1.建筑物内全部设置自动喷淋灭火系统时,安全疏散距离可按规定增加25%。
2.建筑内开向敞开式外廊的房间,疏散门至最近安全出口的距离可按规定增加5m。
3.直通疏散走道的房间疏散门至最近敞开楼梯间的距离,当房间位于两个楼梯间之间时,按规定减少5m;当房间位于袋型走道两侧或尽端时,按规定减少2m。
4.对于一些机场候机楼的候机厅、展览建筑的展览厅等有特殊功能要求的区域,其疏散距离在最大限度地提高建筑消防安全水平并进行充分论证的基础上,可以根据专家评审纪要中的评审意见适当放宽。
(二)检查方法
查阅消防设计文件、建筑平面图,剖面图,了解建筑类别、平面布局、消防设施的设置等,确定安全疏散距离检查标准后开展现场检查。安全疏散距离测量值的允许正偏差不得大于规定值的5%。规范有特殊规定或经专家评审确定的,可从其规定,但需要逐条检查专家评审纪要中评审意见是否已落实。

加载中…