变截面连续梁桥设计构造设计图文详解
标签:
教育文化收藏 |
分类: 桥梁工程 |
一、变截面连续梁桥的适用范围
变截面连续梁桥主跨经济跨径一般在40~250m之间,桥型优点在于施工技术成熟、造价低廉、行车舒适、养护简单;缺陷在于结构自重大、容易开裂、恒载在使用荷载中占据较大比例、建筑高度高。
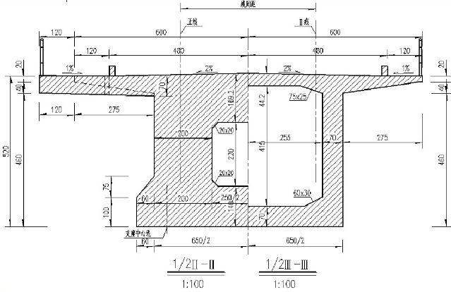
1.箱梁箱室分配
(1)鉴于多室箱梁弯曲内力分配难以把握,箱梁最好采用单箱单室;
(2)箱梁分室受畸变和横框架抗弯控制,当箱梁最大宽高比超过3~3.5时应考虑分室;
(3)当采用单箱多室结构时,各墩支撑最好一条腹板对应一排支座;
(4)当腹板与支座不是一一对应或支座中心与腹板中心存在偏离时应进行支座处横隔板的横向抗弯计算。
2.箱梁梁高
箱梁梁高的控制因素主要包括:
(1)箱梁根部梁高一般取主跨跨径的1/16~1/20;跨中梁高一般取主跨跨径的1/40~1/60。
(2)跨中梁高最小箱内净高一般不宜小于1.5m,特小跨径桥梁例外。
(3)箱梁最矮梁段箱体宽高比不大于3.5。
3.梁高变化
箱梁梁高一般采用抛物线变化,主跨跨径小于120m时采用2次抛物线,大于120m时采用1.8、1.6或1.5次抛物线。
4.底板厚度
箱梁底板厚度变化规律一般采用2次抛物线,最薄处根据桥梁跨径、构造需要和横向抗弯计算确定一般为20cm~32cm;最厚处底板厚度一般取跨径的1/200~1/120,根据下缘压应力要求控制。
5.腹板厚度
箱梁腹板厚度由腹板抗剪和构造控制,多在30~80cm之间,当设有腹板束时一般不宜小于45cm。
6.顶板厚度
箱梁顶板厚度由顶板横向抗弯要求和纵向预应力布置空间需要来控制。
7.不良构造
三、箱梁预应力设计
1.纵向预应力
一般由内力设计控制:抵抗负弯矩设置顶板束;抵抗正弯矩设置底板束;抵抗主拉应力设置腹板束。
2.横、竖向预应力
图4
横竖向预应力布置
预应力混凝土箱梁普通钢筋主要用于抵抗局部受力,纵向钢筋主要用于满足构造需要;而横向竖向钢筋则更加重要,横向抗弯、腹板主拉应力等基本由横向和竖向钢筋承担。
1.上部结构纵向分析
全桥总体计算,主要用于对主梁在施工过程及运营阶段的承载力、各部位主梁应力、变形、支座反力、桥墩内力、桥台内力等进行控制分析,是设计的主要依据之一。
2.悬臂施工强度控制分析
变截面连续梁桥多采用对称悬臂施工,需进行悬臂施工的稳定分析,一般考虑主梁梁段自重的不对称性和某阶段施工时间的不对称性,此外对于特大桥还要考虑不对称风载。
3.箱梁横向分析
控制箱梁横向各部位抗弯强度的设计。
4.其它局部分析
齿板强度、支座处横隔板强度等。
5.下部结构计算
主要包括:桥墩墩身、承台、桩基的抗弯计算(用于配筋),桩基的垂直承载力计算(用于控制桩长),桥台的抗弯计算(主要荷载包括上部结构荷载以及土体水平压力荷载等)。
1.悬臂施工临时锚固构造
2.齿板
3.合拢段劲性骨架
4.伸缩缝预留槽口
5.端部预应力锚固区封锚
6.检修孔、排水孔、通风孔
7.支座设置:多支座设置应以平面位移静定为原则。
8.大体积混凝土冷却系统
===================
全套课程学习咨询微信↓↓↓
前一篇:桥梁施工图设计-计算建模详解

加载中…