园景人|经典案例分享:北京香格里拉酒店景观设计
标签:
园景人景观设计师香格里拉酒店 |
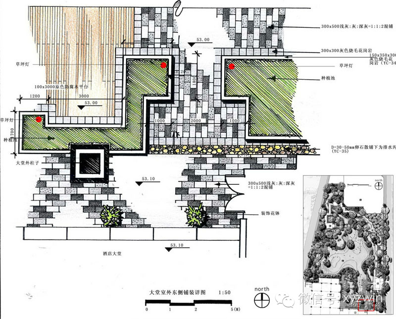
北京香格里拉酒店景观设计
(来源网络,版权归原作者所有)
《世界十大景观设计公司》《中国本土十大景观设计公司》回复“1.1”直接查看;
《中国当代十大知名景观设计师》回复“1.2”直接查看;
现代中式园林景观专辑,回复“1.3”直接查看;
《没有人告诉你但园景人网告诉你的面试技巧》回复“1.5”直接查看;
《俞孔坚的景观商业梦》,回复“1.6”直接查看 ;
常用防腐木汇总,回复“2.1”直接查看;
常用铺装材料汇总,回复“2.2”直接查看;
园林景观之防水毯,回复“2.3”直接查看 ;
《园林工程通病质量与防止措施详解》,回复“3.1”直接查看;
《绿化种植技术大搜集 》,回复“3.2”直接查看;
《园林景观铺砖石材泛碱现象》,回复“3.3”直接查看;
《基础土方回填的施工及常见问题的解决》,回复“3.5”直接查看;
《石材加工中常见的磨边称谓》,回复“3.6”直接查看;
《园林景观地形堆坡研究》回复“3.7”直接查看。
﹉﹉﹉﹉﹉﹉﹉﹉﹉﹉﹉﹉
【备注】园景人网——园林景观行业分享平台!如果觉得本微信内容有价值,请将微信号通过点击右上角的“发送给朋友”或“分享到朋友圈”让更多的朋友获得信息。
如果您想把您或者您公司的景观设计作品或工程案例在我们平台上和大家分享,请发稿至779797552@qq.com,我们会定期在平台上展出。
如果您有什么园林景观行业的问题,也可以发邮件给我们,我们或许能帮助到您!如果我们知道,我们会直接告诉您!如果不知道,也会尽量想办法请教专家帮您解决!
很多东西不是没法知道,而是缺少沟通的平台,分享是一种快乐!
请直接搜索微信公众号:xyzwin 添加关注!

加载中…