【U型玻璃经典案例】捷克赫拉德茨克拉洛韦,教学医院急救中心大楼(来自U型玻璃

标签:
u型玻璃u型玻璃厂家u型玻璃规格u型玻璃价格钢化u型玻璃 |
分类: U型玻璃经典案例 |
U型玻璃(微信公众号:jhuglass)
U型玻璃--设计师不得不了解的新型材料!http://mmbiz.qpic.cn/mmbiz/YbsDr9xg8bQxwOLWYZciaJZELSs57X98gQhG4xicEic9So1B0bLDibHiaIwia8dvToJ4ke9cqkbDv7ZxzsJdo7m78vTA/0☞☞也可点击标题上面蓝字直接关注
建筑师:DOMY
地点:捷克共和国赫拉德茨克拉洛韦
客户:Hradec Kralove Faculty Hospital
设计组:Michal Juha, Jan Topinka in co-operation with Jan Travnicek, Frantisek Huber
项目经理:Danica Havlikova
各专业协调员:Blanka Handrychova
总承包商:GEOSAN GROUP a.s. , Kolin
施工时间:2006- 2008
造价:EUR 10 840 000
摄影:Andrea Thiel Lhotakova
建筑设计与城市规划方案:
教学医院综合建筑群开工建设已有几年时间,这个隔离式急救建筑标志着整个的建筑群的竣工,同时也代表着城镇规划概念的完成。在该城镇规划中,整个空间被分为连接着入口马路的繁忙一侧,停车场以及靠近公园、较为安静的一侧。从建筑的朝向、设计以及平面布局中均能体现出急救建筑在救死扶伤上的重要意义。
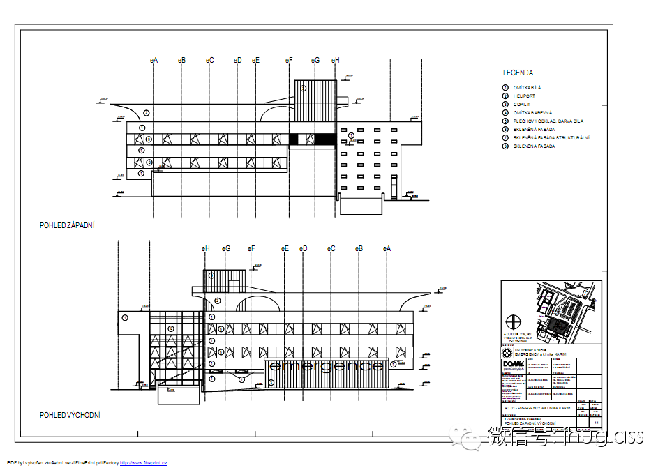
建筑的一部分是救护直升机降落区,同时也形成了清晰的朝向和突出的艺术感。登机区还带有屋顶,屋顶下方设有自行车停放室,安装了防护屏,以阻挡隔壁变电站的电磁辐射进入从主要登机区到公共入口大厅的各个区域。基于该建筑的本质及其功能,这里并不是一个能让人乐观起来的环境。痛苦和悲伤如影随形。建筑师的任务就是抑制并减轻这些感觉,至少在可能实现的范围内尽量做到这一点。为建筑内部墙面选定的主题为鲜花绽放的草地,色彩鲜艳,春意盎然。花卉的图案渗透到室内外各处,在各种技术环境中形成了统一的设计。
本图文仅供学习交流,信息均摘自网络,若原作者不同意分享可告知,我会在第一时间删除,带来不便敬请谅解!
|
(感谢原作者) |
【等你好久了】欢迎关注U型玻璃微信公众平台订阅号:jhuglass (欢迎设计师朋友留言告知所需,U型玻璃设计专刊、图集、案例、CAD节点图、样品、案例、U型玻璃20问、U型玻璃墙体工程技朮规范等免费派送)
更多U玻规格、花色、价格等咨询请加我个人微信:chinauglass