加载中…
个人资料
  • 博客等级:
  • 博客积分:
  • 博客访问:
  • 关注人气:
  • 获赠金笔:0支
  • 赠出金笔:0支
  • 荣誉徽章:
正文 字体大小:

【U型玻璃经典案例】西班牙橡木源幼儿园及小学(来自U型玻璃微信公众平台:jhuglass)

(2014-12-15 13:48:02)
标签:

u型玻璃

u型玻璃厂家

u型玻璃规格

u型玻璃价格

钢化u型玻璃

分类: U型玻璃经典案例
U型玻璃(微信公众号:jhuglass
U型玻璃--设计师不得不了解的新型材料!
http://mmbiz.qpic.cn/mmbiz/YbsDr9xg8bQxwOLWYZciaJZELSs57X98gQhG4xicEic9So1B0bLDibHiaIwia8dvToJ4ke9cqkbDv7ZxzsJdo7m78vTA/0 ☞☞也可点击标题上面蓝字直接关注

http://mmbiz.qpic.cn/mmbiz/Q6lKP6icG35icAb2EYU6TZUx4kExcCNxanpjMWibemuApDS1BRblnibnWb8aCWA3ibODjRYYK75fteG94YgMjc1biaCw/0

rchitects: ONL Arquitectura - Joan Nogué, Txema Onzain, Felix Lopez
Location: C/ del Pont s/n, Masquefa, Anoia, Spain
Collaborators: Félix López, Borja Iglesias, Tapio Lassmann, Mireia Marès
Constructor: EMCOFA, S.L.
Structure: BIS Arquitectes
Budget: € 2,847,390
Photographs: José Hevia

http://mmbiz.qpic.cn/mmbiz/YbsDr9xg8bTee7z2hP5fXU5GfZicWHljmibQru3jFw1uHZiaCbfWHOY7CibKRP67LSnRAQEU7eW0BwtKxRemKcUl6Q/0

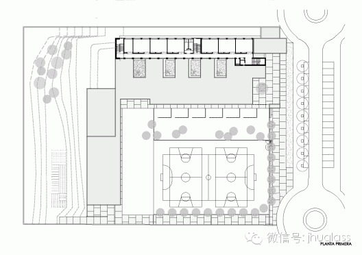
对于该项目,现场已有的几个预制模块决定了学校的位置。

 

http://mmbiz.qpic.cn/mmbiz/YbsDr9xg8bTee7z2hP5fXU5GfZicWHljmdfjicx6Mq7IGUgjXTFEcGcyaPFSWDxcLFGwfuuOibawJfjQ8kDibk2Xtg/0

http://mmbiz.qpic.cn/mmbiz/YbsDr9xg8bTee7z2hP5fXU5GfZicWHljmH2XaVrWZuiaGl4WL3vFaMzPI0f8jvEF9wwwV8ZjX5hUibYWyWWKRVy2w/0



与以往我们做过的幼儿园及小学项目不同,这次的项目必须设计得更紧凑、简洁。

 

http://mmbiz.qpic.cn/mmbiz/YbsDr9xg8bTee7z2hP5fXU5GfZicWHljmJt9noA3by7j1eiaR2oJWKUibib41gozPicGaqjVkB78g7VRGIJjdTvhDKA/0

http://mmbiz.qpic.cn/mmbiz/YbsDr9xg8bTee7z2hP5fXU5GfZicWHljmqcJtHQPWCGp32pcWkWSaVNteLlUOmUNHqXfO3HfTLNxg9d7lqiatgmw/0



我们用一系列规律排布的天井代替大型中央天井,以此扩大一层空间来往人员的视野,同时为两个年龄段的群体提供共处的空间。

 

http://mmbiz.qpic.cn/mmbiz/YbsDr9xg8bTee7z2hP5fXU5GfZicWHljmy10xhOoXLo1kWXiadDoazwLMAmzpTMXiaibt1HYBZTXBlkRvu7tSTg72g/0

http://mmbiz.qpic.cn/mmbiz/YbsDr9xg8bTee7z2hP5fXU5GfZicWHljmLVtTTEYZ78l1CBEWd80J72q6zg5IWsnYoWAic5uhlSUQXGCoRBLn1kw/0



幼儿园和小学的入口广场是一个受保护的景观区域,为两所学校共用。设计确保了每个单元都有最好的采光朝向。

 

http://mmbiz.qpic.cn/mmbiz/YbsDr9xg8bTee7z2hP5fXU5GfZicWHljm9a1QftoibCrzZ7se9DQR0zjDXMdUNSXSF1Ciba1LicrCyUAW3k0CvVFeA/0

http://mmbiz.qpic.cn/mmbiz/YbsDr9xg8bTee7z2hP5fXU5GfZicWHljmcaiaa1fxQLyBWfueDTCnyR1pgLjvVKGfT4gAQyuAhrCtRqMw1kFvHmg/0



设置有公共服务设施的楼体使天井免受强风侵袭。紧邻街道的楼体的设计注重尺度和色彩的雕琢,与两个入口的定位相协调,体现出一种强烈的存在感。

 

http://mmbiz.qpic.cn/mmbiz/YbsDr9xg8bTee7z2hP5fXU5GfZicWHljm8SyN3EhScxkbXupqEmjP3EQFHqOic14Mn3FOqNFzAgeJtLhVuibQHG4Q/0

http://mmbiz.qpic.cn/mmbiz/YbsDr9xg8bTee7z2hP5fXU5GfZicWHljmkXNyj07ZukgiaicBM6wDR88r6Q5bBG31COBdVG1aad1LxIwDZwzNvR6g/0

http://mmbiz.qpic.cn/mmbiz/YbsDr9xg8bTee7z2hP5fXU5GfZicWHljmleR4IHjZCyUsxdrFBGw4xib3AibLRIMiaxpK3e6r9eQhf7PNbgop5uGvg/0

http://mmbiz.qpic.cn/mmbiz/YbsDr9xg8bTee7z2hP5fXU5GfZicWHljm8LutbzXA97wX10TI4tQicfmCbpmSDnxyW09GocYk4LliaLT27Pcxd6jg/0

http://mmbiz.qpic.cn/mmbiz/YbsDr9xg8bTee7z2hP5fXU5GfZicWHljmjBhicOtvTdTd9CGNFqho21icRjE4BMXhbEsYGK81oicOtPXHv65qtVnMg/0

http://mmbiz.qpic.cn/mmbiz/YbsDr9xg8bTee7z2hP5fXU5GfZicWHljmRUyicdvGgdtLvF8NVicMNInmWvN4KskkiaaIm9BUHpfp18LoVerxoK3KA/0

http://mmbiz.qpic.cn/mmbiz/YbsDr9xg8bTee7z2hP5fXU5GfZicWHljmiabPiaicrYQZ5eGqoMzUNpxLJZ6KwCMYruBP78Tp5DxbHsCYWBndtazmw/0

http://mmbiz.qpic.cn/mmbiz/YbsDr9xg8bTee7z2hP5fXU5GfZicWHljmSn8gicNXibpVpPH7075vuMAsGu3hHA6tyWVdnlz4xd9LpQRkicXC2nkgw/0

http://mmbiz.qpic.cn/mmbiz/YbsDr9xg8bTee7z2hP5fXU5GfZicWHljmibQru3jFw1uHZiaCbfWHOY7CibKRP67LSnRAQEU7eW0BwtKxRemKcUl6Q/0

http://mmbiz.qpic.cn/mmbiz/YbsDr9xg8bTee7z2hP5fXU5GfZicWHljmgGEq5saSiaBG4yx8JspZm7icg44AzeF61I125WPyTN7Dl9NOzQEiaWicFQ/0

http://mmbiz.qpic.cn/mmbiz/YbsDr9xg8bTee7z2hP5fXU5GfZicWHljmZiaq8vNww3PRlqA2kVz8iaG49yVz70FcI8v69XL2Xic1Y7xjqzicJefNFw/0

http://mmbiz.qpic.cn/mmbiz/YbsDr9xg8bTee7z2hP5fXU5GfZicWHljmyP2xCicXOt7aP1ek1PeAjj3dA8icGmDZIWEqFsSpianha3JsZejhFibkhw/0



http://mmbiz.qpic.cn/mmbiz/Q6lKP6icG35icAb2EYU6TZUx4kExcCNxanpjMWibemuApDS1BRblnibnWb8aCWA3ibODjRYYK75fteG94YgMjc1biaCw/0

本图文仅供学习交流,信息均摘自网络,若原作者不同意分享可告知,我会在第一时间删除,带来不便敬请谅解!


(感谢原作者)

http://mmbiz.qpic.cn/mmbiz/Q6lKP6icG35icAb2EYU6TZUx4kExcCNxanpjMWibemuApDS1BRblnibnWb8aCWA3ibODjRYYK75fteG94YgMjc1biaCw/0

http://mmbiz.qpic.cn/mmbiz/YbsDr9xg8bTI8aMXEmia3msMjdmaa1cHhHQ8Ab8AiamxJZdOK01nkHv4e4R0ywSObJLdB4jy55icicpeRMWVbcDgibQ/0

【等你好久了】欢迎关注U型玻璃微信公众平台订阅号:jhuglass (欢迎设计师朋友留言告知所需,U型玻璃设计专刊、图集、案例、CAD节点图、样品、案例、U型玻璃20问、U型玻璃墙体工程技朮规范等免费派送)

更多U玻规格、花色、价格等咨询请加我个人微信:chinauglass


举报

更多U型玻璃信息请咨询厂家,免费索取资料、样品等。

电话:0871-64186939

QQ:664476293

邮箱:chinauglass@qq.com

0

阅读 收藏 喜欢 打印举报/Report
  

新浪BLOG意见反馈留言板 欢迎批评指正

新浪简介 | About Sina | 广告服务 | 联系我们 | 招聘信息 | 网站律师 | SINA English | 产品答疑

新浪公司 版权所有