【U型玻璃经典案例】美国格伦奥克斯分图书馆(来自U型玻璃微信公众平台:jhuglass)

标签:
u型玻璃u型玻璃厂家u型玻璃规格u型玻璃价格钢化u型玻璃 |
分类: U型玻璃经典案例 |
U型玻璃(微信公众号:jhuglass)
U型玻璃--设计师不得不了解的新型材料!http://mmbiz.qpic.cn/mmbiz/YbsDr9xg8bQxwOLWYZciaJZELSs57X98gQhG4xicEic9So1B0bLDibHiaIwia8dvToJ4ke9cqkbDv7ZxzsJdo7m78vTA/0☞☞也可点击标题上面蓝字直接关注
The library of glen oakes points
设计方:marble fairbanks建筑事务所
位置:美国 纽约
分类:文化建筑
内容:实景照片
图片来源:Eduard Hueber
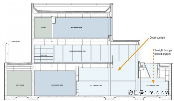
格伦奥克斯分图书馆占地18000平方英尺,位于郊外小规模商业区,是一座能源与环境设计先锋奖认证的高性能建筑。图书馆内部除了阅览室外还有一个数据中心和公共会谈区。大楼有两个主要分区,较低分区的高度是较高分区的一半。大楼入口在较高分区的旁边,大楼的三排大玻璃窗使阳光能够照到阅览室后面的阅读区。景观规划利用作为户外公共空间的地面的双重角色将其反向设计为下面地窖的屋顶,探索设计技巧和自然之间的关系。地上建筑的结构和材料是按照每一面的不同地点的条件去设计和安排的,而图书馆内部包括三层楼的阅览室都是开放性自由设计。在大楼正面的大型落地窗使二楼儿童区内外双向可视,同时也满足图书馆向北社区公民认同的愿望。其他外部材料包括通道U型玻璃墙和纤维水泥板镶板使图书馆及其周边住宅相连接。
本图文仅供学习交流,信息均摘自网络,若原作者不同意分享可告知,我会在第一时间删除,带来不便敬请谅解!
|
(感谢原作者) |
【等你好久了】欢迎关注U型玻璃微信公众平台订阅号:jhuglass (欢迎设计师朋友留言告知所需,U型玻璃设计专刊、图集、案例、CAD节点图、样品、案例、U型玻璃20问、U型玻璃墙体工程技朮规范等免费派送)
更多U玻规格、花色、价格等咨询请加我个人微信:chinauglass
更多U型玻璃信息请咨询厂家,免费索取资料、样品等。
电话:0871-64186939
QQ:664476293