红楼梦研究必备地图汇总
| 分类: 精彩文章 |
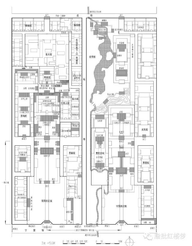
01 建大观园后贾府总体平面图
02 大观园修建前宁荣二府图
03 《红楼梦》贾府总体鸟瞰图
04 红楼梦大观园平面图
05 红楼梦大观园鸟瞰示意图
06 北京大观园示意图
07 正定荣国府图
08 《增评补图石头记》中大观园的总图
09 旧时大观园图A
10 旧时大观园图B
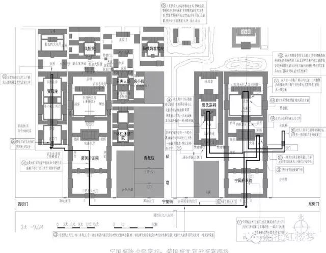
11 荣国府归省庆元宵路线
12《红楼梦》中变生不测凤姐泼醋路线
13 《红楼梦》中宁国府除夕祭宗祠路线
18 打格子的地图
蘅芜苑组图
图06-1贾母上房室内布局
图06-2贾母上房明间陈设
图06-3贾母院鸟瞰图贾母院组图
图04-1秋爽斋室内空间格局
图04-1秋爽斋鸟瞰
图02-1潇湘馆室内空间格局
图02-2潇湘馆室内陈设
图02-3潇湘馆中的暖阁
图02-4潇湘馆鸟瞰
图01-1怡红院室内空间格局(带文字)
图01-1怡红院室内空间格局
图01-2怡红院室内镜壁示意图
图01-3怡红院房门入口处油画
图01-4怡红院群芳开夜宴餐具陈设
图01-5怡红院鸟瞰
分享:
喜欢
0
赠金笔
加载中,请稍候......
后一篇:三国演义主要人物关系图一目了然

加载中…