标签:
杂谈 |
我的家不是很大,但是还好,家里添个老二,足够了,但,跟别墅什么的还是没办法比哈,普通百姓家~
每个人要根据自己的家的大小因地制宜,不差钱儿的,直接就再换大房子就好了,不需要考虑改造这件事。但需要提醒的是,如果家里有小孩儿又恰逢怀孕,整个房子新装修的家具味道都挺大的,至少要全天通风+净化器24小时吹,放味道1-2个月。所以,这次我选择的是稍微小小的改造,而不是重新装修。
之前视频也稍微小抱怨了一下,要二胎真不是一拍脑门儿的事儿,需要考虑的东西真的挺多的。今儿咱们就说其中一个顾虑:家中的空间是不是够合理?
我们家现在的房子装修的时候,我和大表姐夫还没有孩子,当时脑子一热就开始装修,家里的事儿他不管,我和设计师沟通完以后,几个房间安排的格局是主卧、衣帽间、化妆间和客人房(妹妹或者父母来住),大概就酱。
可是,搬进去没多久,老大Mason就来了,当时再重新改也不太现实,就把我的化妆间给了他,好在那个房间有个很大的榻榻米式的床,大家感受一下,我当时不得不割舍掉的房间……
因为我的东西比较多,所以,家里的装修收纳空间很多,大柜子小柜子都和设计师提前沟通好,定做了很不少,所以,很整洁吧有木有?
Mason就在这间屋子里面长到了2岁……现在面临来了老二,这间房间还是打算给新生儿用,因为很好用,阿姨可以有足够的空间来照顾新生儿,也就意味着,Mason要搬出这间屋了。
再来看看用了两年以后这屋的状况,乱七八糟的。本来这间是我化妆和囤货的,现在抽屉腾了几个出来给Mason放东西,但是两边的柜子和大部分抽屉里,仍然都是我化妆品的囤货……
我思前想后,要想家里面有更足够的空间,作为家里东西最多的我,就要给它们“瘦身”,而且不是那种藕断丝连的,而是痛定思痛的“断舍离”!
衣服是最占空间的,第一个解决的就是它们。
从这次断舍离真的觉得,以后买衣服不能乱买,不能冲动,买就买些好一些的,自己真正喜欢,真正适合自己的,不是穿一次就扔衣柜里的,好好去搭配用心购买的,而不是一味的追求流行。
有些姐妹问这些衣物怎么处理?捐了吧!……我的衣物的处理办法是,家里人先挑,妈妈/嫂子/侄女/妹妹/家里阿姨等等,大家都挑完了以后,妈妈和嫂子会打包邮寄给她们老家,老家也有接收的人,再分发给需要的人。
我对于捐款捐物这件事,除非很靠谱,不然还不如送给身边更需要的人。
整理完衣服,再整理鞋子,以前都塞的满满当当的,现在好啦,有空间啦,又可以买新的了吧?😭……不行不行,我得管住自己!
一些AJ都是限量或者高价买的,不舍得啊不舍得,我准备留给Maosn和老二,等他们上小学了以后,我的鞋码他们就能穿了!穿着这些AJ肯定特拉风!
女人是有多爱鞋子啊,唉……进门口平时经常穿的几双。
鞋子的处理方式和衣服是一样的。
Mason的玩具也是太多,之前也拍过一个视频,就是送小孩儿礼物是送玩具好还是现金好?我的观点是送现金,因为真的是小孩儿的玩具可以用“堆积如山”来形容,一点儿都不夸张。重点是,小孩儿玩具一多,会不会不太懂得珍惜?又或者是每个都新鲜,每个都摸摸,但是哪个都不能专注的玩儿?我不是育儿专家,我不太懂,我只知道,大大小小的玩具太占地方了!加上之前以物易物,连转带送的处理了一大堆,捐赠了小花孩子工程一大堆,给我家相熟的顺丰快递他们家孩子一堆,给Maggie马上落地的小孩儿一大堆,寄给了一些孩子妈妈姐妹一大堆,以外,家里还有一大堆……听起来就很头疼是不是?
别人的观念我不能强求,我的观念是,我并不知道人家的孩子爱玩儿什么,我也不知道别人家对于小孩儿的玩具是什么理念,所以,我只送现金,这么多年都是。另外,我觉得给小孩子租玩具这个理念很好,目前已经有这种形式,我回头去打听看看,因为,循环利用,很环保。
扯远了哈,言归正传,这次断舍离的不光光是衣服和鞋子,家里的一切我都拾掇了!各个柜子/各个抽屉/各个角落!平时不用的全部归置,能用的该送人的送人,没用的该扔就扔!这次是痛下了决心的,所以,大刀阔斧的,真的是空出来很多的收纳空间,而且心情也会变好,据说家里的风水也会变好,塞太多没用的东西,财气进不来,哈哈哈哈哈~
有人说怀孕期间最好不要装修,一些物质对孕妇不太好,我也确实是考虑过这个问题,但是,有些时候,有些事儿,需求和环境必须要做的时候,那就得做。所以,为了这个考虑,我也是做了不少功课,也问了不少的朋友,最终我选定在宜家选家具,有四方面考虑:
其一、相对更环保些,最起码达到了国家级的标准;
网上说什么的都有,但是大部分的评论都觉得还可以。宜家怎么也算是国际化的大公司,没必要为了小利益而损失声誉,同理,越有名的人,越不会因为小事情而损害自己的形象,所以,这个是我考虑的。退一万步而言,有害物质含量,总比一些不知名的国内小工厂出来的要靠谱一些吧?
其二、搭配组合比较科学合理,挺好的利用现有空间;
这个是宜家主打的吧。可以随意自由组合搭配,对于改造来讲,不需要等待工人打家具的时间。
其三、安装快速,性价比高;
提前我问了一下,说是一天就能安装完毕。实际上真正安装的时间没用那么久,早上7:30工人来家里,下午2点就已经都安装完毕了。工人师傅好辛苦,中午都没吃饭,安装的非常专业,很是感动和感谢。
其四、有设计师帮忙出图纸!
这个功能简直太棒了!这个服务虽然是收费的,但是因为宜家的东西虽然挺多,也挺全,但是对于一个对产品不是那么的了解,并且没有学过家装的人来说,有设计师帮忙简直太省事了。设计师看过图纸数据以后,电话+微信沟通之后,就是邮件的沟通图纸,也会征求我的建议,整个过程非常愉快。北京有两家宜家,四元桥一家,西红门一家,目前只有西红门的提供设计师服务。
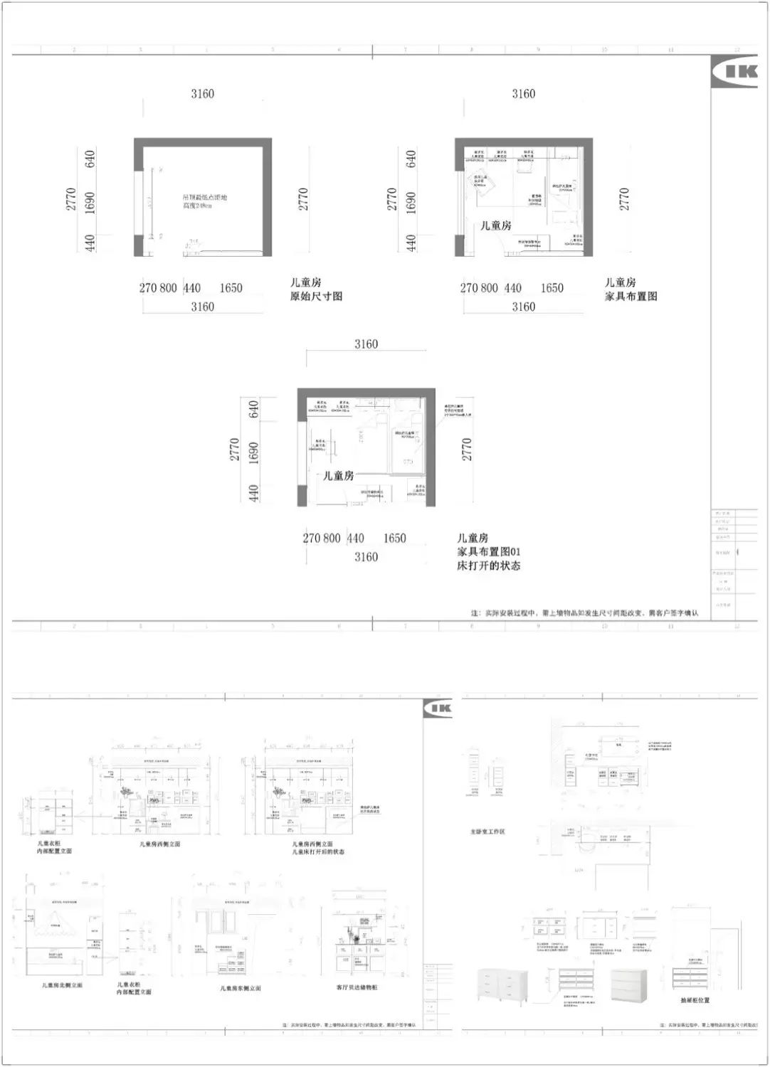
来看看设计师出的图纸吧
注意⚠️:当然,如果有条件的话,尽量还是避免孕期或者家里有小孩儿的时期装修房屋或者改造房屋。如果像我一样不得已而为之,那么请一定要每天通风,两台净化器一起24小时吹。
这次的格局,主要是因为老二的即将到来嘛,所以,格局改成了主卧、衣帽间、Mason屋、老二屋子(Mason小时候用的那间化妆间)。
先来说说这次改造需要改造的四个位置的诉求:
1、重头戏就是Mason屋;
2、我的化妆品区域;
3、客厅的玩具收纳的位置;
4、老二的屋子添置个柜子;
咱们一个位置一个位置的说哈。
先来看看我打算改造的Mason屋原来的样子吧!
以前装修壁纸有的位置没贴,比如衣柜后面,梯子后面等等的位置,壁纸已经用了几年了,再补上新的壁纸的话,肯定会有色差,所以,我决定都撕掉重新贴。
我很喜欢原来的壁纸的款式,我是一个比较专情的人,哈哈,所以,就还贴的这款,壁纸是柔然的,环保,没什么味道,工人专业,我们家从第一个家的装修,到这个家,全部都是用的柔然的牌子,没有换过,我是在北四环居然之家买的。
来一张彩色的看看吧!
插线控也都安好了面板,因为之前这个位置是床和柜子,所以没有踢脚线,之后的改造图纸上看,这个位置还是会被都挡住,所以,踢脚线我就没再安装了。毕竟是改造嘛,有些小小不言的细节我就忽略掉了。
改造后的样子⬇️
设计师的设计错落有致,Mason基本上所有的东西都可以收纳的下。
值得一说的是,宜家的这个床是可以拉出来的,就变成了两个单人床,上下错落,睡觉前要把小桌子搬开,下面久可以拉出来了,很方便,设计的也很妙,这间阿姨和Maon一起住。⬇️
另一面墙的样子⬇️
开篇我就说了化妆品收纳区哈,这是我的兴趣爱好所在,而且做博主写写拍拍的十余载,有一个自己的“地方”还是挺有必要的,因为写东西也得有点儿所谓的小环境,才会有小意境,才能有小灵感,而且拍摄视频也确实需要一个小区域。还有一个重要的就是,衣服鞋子玩具我可以处理,送人,但是,化妆品这些,都是我的心头好,保养品还好,已经送了很多给妈妈婆婆或者是姐妹,但是彩妆品,哪个也不给!我真的是需要一个收纳空间来把它们好好的归置进去,找一个舒服的家,这样,我自己才能心安。
看看原来我打算改造的这个区域吧!
电视下面的两个化妆师用的化妆品收纳箱,只能这么放着,都不知道里面放了什么,也不可能会拿出来用,每次化妆都是随便抓起手边的,没有什么“化妆品质”可言了,这对于我来说,挺痛苦的,真的……
改造完的样子⬇️
整个化妆区域大概就是这样了,虽然并不豪华,也有点儿凑合拼凑的意思,但是就目前来讲,已经足够满足我的”化妆品质“和享受化妆这个过程了,而且也有个小区域可以给大家拍拍视频了。
说说抽屉里面的收纳盒子,全部来自muji,关于这个size的抽屉收纳,我要吐槽一下muji,每家店每个款数量都不多,重点是库存和实际数量对不上号,而且,店员都挺高冷的……最后我只好挺着大肚子,跑了北京市离我比较近的4家店,目前扫货的数量,也不够我用的,过阵子还得去,唉……
主卧里面还有一个五斗橱的这个区域,从化妆间挪过来的收纳盒之类的,这个主卧,不像个主卧,住起来心情也不好,都是能凑合就凑合,我也是真心感谢大表姐夫对我的容忍,一个处女座能看得下去,也是很厉害了……
哦,对了,还有主卧的窗台这个地方,原来是个飘窗,就是Mason和他爹经常弹琴练琴的地方,我也是让拆掉了,这样会显得屋子亮堂些。
飘窗和柜子大概就是这样的,柜子上回头我想放个全家福或者放一幅画吧,还没想好,慢慢继续添置吧,不急了就~
这是主卧的洗手台,左边一半儿是护肤品,右边儿一半儿是彩妆,简直了,每次进去我都是硬头皮之旅,想赶紧画完赶紧完事儿,随便抓起来什么就凑合用,找什么都找不到,这种心情,不知道大家能否理解。
洗手台归置完之后,也利索多了,好感动……镜子柜里面也重新收纳一遍,好爽!
再来说说要改造的客厅位置的玩具收纳区吧,原来滑梯的地方是有个我特别喜欢的棕色皮沙发的,但是为了滑梯搬走了;现在为了收纳区,我又把滑梯让表姐夫拆了已搬走,送给了一位朋友。(滑梯当时也是朋友送的,唉……)
右下角的沙发下面全都是零零散散的玩具,而且越堆越多,看起来整个客厅已经是凌乱不堪了,所以,急需一个收纳空间。
改造后的样子⬇️
真的是整洁利索多了!后期维持也是特别重要的,从自身做起,也教育小孩儿,从哪儿拿的东西,要放回到哪里去。
这屋就是老二要挪进原来Mason小时后住的屋,但是之前说过了嘛,那个屋子是一个化妆间,没有给新生儿换尿布的尿布台,之前阿姨都是在床上(榻榻米)上直接换,腰弯下去的比较多,阿姨们也都挺不容易的,所以,这次给老二的阿姨添置了一个类似五斗橱的柜子,一来换尿布不会那么累腰,二来里面可以收纳小孩儿的尿不湿/换洗衣物/药品/一些洗完澡用的瓶瓶罐罐等等吧……
图片正中间的这个长条柜子是首饰柜,当初觉得好满意啊!现在看起来,根本就是多余的摆设……首饰已经挪到更方便我拿的地方了,总不能每次出门都到这屋里去选首饰啊!所以说,没孩子时候的想法,和有了小孩儿的想法还是不一样的。
先来看看之前的样子,桌子上也是乱七八糟,太乱了!
改造完的样子⬇️
添置了一个柜子,收纳就合理多了,整间屋看起来挺利索的。
好啦,这篇文章写了好几天,咱们就收尾吧!
呕心沥血大篇幅,我睡啦,晚安!

加载中…