重磅!太原地铁1号线来了!24个站点规划密集公示
标签:
山西太原地铁城乡建设乘车居民交通 |
分类: 社会新闻 |
一、千呼万唤始出来,太原市地铁1号线终于来了!
昨日(3月20日),太原市住房和城乡建设局官网公示《太原轨道1号线一期(西山矿务局-武宿机场站)沿线控制详细规划修编必要性研究报告公示牌》。
此举标志着备受瞩目的太原地铁1号线正式由国家发改委批准建设,现启动建设前期准备工作。太原人民终于要迎来第二条地铁线。
在此规划中本人获悉,为推进太原轨道1号线一期(西山矿务局-武宿机场站)工程建设,落实轨道沿线24座车站出入口、风亭、车辆段、变电站等地面设施用地与隧道地下空间及两侧用地控制要求,需对该工程涉及地块的控规进行修改。详情如下:
地铁1号线24座站点规划密集出台
二、地铁1号线一期共设24座车站
方案显示,太原轨道1号线一期工程(本文简称地铁1号线)起点为西山矿务局,终点到武宿机场。
经过万柏林、迎泽、小店三个行政区,于太原市内呈倒“L”形分布,东西向沿西矿街、迎泽大街,途经太原客运西站、太原理工大学、大南门、柳巷、五一广场、太原站、太原南站、武宿机场等客流集中点,南北向先后沿太行路、马练营路敷设。
太原地铁1号线走向图示(西山矿务局-武宿机场站)
地铁1号线共设置24座车站,分别为:西山矿务局站、西铭路站、客运西站、金阳路站、小井峪站、下元站、迎泽西站、桃园路站、大南门站(地铁2号线换乘站)、柳巷南口站、五一广场站、建设北路南站、太原站东广场站、迎泽东大街站、朝阳街站、南内环东街站、东太堡站、长风东街站、学府街东口站、省农科院站、太原南站、中心街东站、龙城大街东站、武宿机场站。
三、24座车站详细选址首次曝光,用地控规将迎调整
按照《太原市城市轨道交通1号线一期工程》可行性研究方案,拟对该工程沿线23座车站涉及地块控制线、用地性质、用地边界、用地指标进行修改。
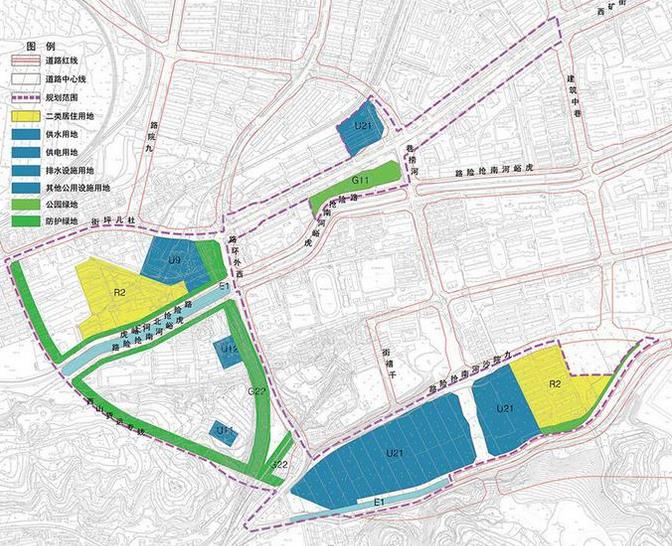
1、地铁1号线西山矿务局站选址方案
现场控规图 西山矿务局站周边用地图
2、地铁1号线西铭路站选址方案
现场控规图 西铭路站周边用地图
3、地铁1号线客运西站选址方案
现场控规图 客运西站周边用地图
4、地铁1号线金阳路站选址方案
现场控规图 金阳路站周边用地图
5、地铁1号线小井峪站选址方案
现场控规图 小井峪站周边用地图
6、地铁1号线下元站选址方案
现场控规图 下元站周边用地图
7、地铁1号线迎泽西站选址方案
现场控规图 迎泽西站周边用地图
8、地铁1号线桃园路站选址方案
现场控规图 桃园路站周边用地图
9、地铁1号线大南门站(换乘站)选址方案
现场控规图 大南门路站周边用地图
10、地铁1号线柳巷南口站选址方案
现场控规图 柳巷南口站周边用地图
11、地铁1号线五一广场站选址方案
现场控规图 五一广场站周边用地图
12、地铁1号线建设北路站选址方案
现场控规图 建设北路南站周边用地图
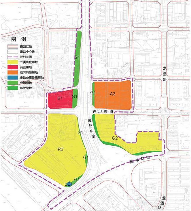
13、地铁1号线太原东广场站选址方案
现场控规图 太原东广场站周边用地图
14、地铁1号线迎泽东大街站选址方案
现场控规图 迎泽东大街站周边用地图
15、地铁1号线朝阳街站选址方案
现场控规图 朝阳街站周边用地图
16、地铁1号线南内环东街站选址方案
现场控规图 南内环东街站周边用地图
17、地铁1号线东太堡站选址方案
现场控规图 东太堡站周边用地图
18、地铁1号线长风东街站选址方案
现场控规图 长风东街站周边用地图
19、地铁1号线学府街东口站选址方案
现场控规图 学府街东口站周边用地图
20、地铁1号线省农科院站选址方案
现场控规图 省农科院站周边用地图
21、地铁1号线太原南站选址方案
现场控规图 太原南站周边用地图
22、地铁1号线中心街东站选址方案
现场控规图 中心街东站周边用地图
23、地铁1号线龙城大街东站选址方案
现场控规图 龙城大街东站周边用地图
24、地铁1号线武宿机场站选址方案
现场控规图 武宿机场站周边用地图
公示时间:2019年3月20日至2019年3月28日
四、太原“力”字地铁网呼之欲出
目前,太原在建的地铁2号线年内将实现“轨通”“电通”,2020年年底正式开通运营。待地铁1号线(规划中)建成后,将与地铁2号线接驳,形成“力”字地铁网络,连接汾河东西。
太原1号线、2号线“力”字地铁网图示
如图所示,地铁1、2号线将在大南门站换乘,将来乘坐地铁2号线的居民,可换乘1号线抵达迎泽西大街、太原南站、武宿机场等地;乘坐1号线的居民换乘2号线可抵达柳巷、长风亲贤商圈、综改区等地。届时,太原的交通将迎来至的飞越!一同期待吧!
注:一般一条地铁施工周期为5年。
(本文据网易号内容综合整理,图片均来源于网络,如有侵权请联系删除)

加载中…