风管布置要注意什么?看完专业负责人总结的11条要点,你就知道
标签:
暖通暖通工程师暖通空调暖通设计暖通设计杜老师 |
如果一个风机和风管的组合系统不能在规定的风量和风压下运行,这时系统就会偏离设计所确定的运行条件,图3-10中B点是设计工况点,但是实测结果显示实际的工况点位于A点。应该清楚地知道,这种差别是由系统特性曲线的改变而不是由风机性能的变化引起的,风机的特性曲线还是原来的特性曲线,系统特性曲线变化后,风机就在新的工况点运行,所以合理的布置风管是十分重要的。
风管设计既是一门科学,又是一门艺术。要成功的设计风管系统必须具有流体力学知识,合理地布置设备、风管及配件,既要求断面合适、初始投资较低,又要合理控制风速,降低运行费用。总体上说,风管设计应注意以下几点:
(1)主风管应尽可能走直线。在满足风速要求的前提下,风管越直,配件越少,初投资就越低;同时直线布置的风管中,三通弯头配件少,空气流动局部阻力损失小,风机的能耗也少。
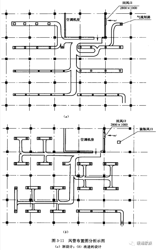
(2)不仅主风管要求走直线,支风管也应尽可能走直线,以减少风机的能耗;特别要避免出现空气连续的90°和180°剧烈的改变流向,造成极大的压力损失,图3-11是一个典型的案例。
(3)不要片面强调节省初期投资,频繁缩小风管尺寸;因为缩小风管尺寸会增加配件,并不一定能节省初投资,反而增加了风管的阻力,增加风机能耗。建议风管变尺寸次数不能太多,一般情况下,主风管全部长度范围内,变尺寸次数不宜大于3~4次。
(4)由于我国高层公共建筑大多是钢筋混凝土结构,楼板梁比较高,而风管只能沿梁底敷设,这样就限制了圆形风管的应用。为了改善风管的气流特性、减少阻力损失,国家标准《民用建筑供暖通风与空气调节设计规范》GB 50736—2012规定,矩形风管的长、短边之比不宜大于4。但实际工程中,大于4的情况是相当普遍的,个别甚至达到10,这种情况应该尽量避免。
(5)通风机、空调器和末端的送风口、回风口等与风管的连接处,应设置柔性减振接头,其长度宜为150~300mm,以防止因振动产生的固体噪声传递。
(6)多台风机并联运行的系统,应在各自的管路上设置止回阀或自动关断装置。
(7)通风、空调系统通风机及空气处理机组等设备的进风或出风口处宜设置调节阀,调节阀宜采用多叶式或花瓣式。
(8)风管系统的主干支管应设置风量风压测定孔、风管检查口和清洗口。
(9)通风、空调系统各环路应进行水力平衡计算;各并联环路压力损失的相对差额不宜超过15%。当通过调整管径仍不能达到上述要求时,应设置调节阀。
(10)自然通风进排风口的风速宜按表3-5采用;自然通风风道内的风速宜按表3-6采用;机械通风进排风口的风速宜按表3-7采用。
(11)布置支管时,让各末端的支管长度尽量相等或接近,以利于阻力平衡,如图3-11所示。

加载中…