哪些建筑部位要做排烟设计?有哪些审查要点?
标签:
暖通暖通工程师暖通空调暖通设计暖通设计杜老师 |
一、厂房/仓库的下列场所或部位应设置排烟设施
1、地上丙类生产场所
、车间:人员较多,或可燃物较多;
、其他房间(不含无窗房间):建筑面积大于300且经常有人停留;或建筑面积大于300且可燃物较多;
、疏散走道:单层、多层和建筑高度小于或等于32m的高层厂房,长度大于40m;建筑高度大于32m的高层厂房,长度大于20m。
2、地上丙类仓库
、库房:占地面积大于1000;
、疏散走道:单层、多层和建筑高度小于或等于32m的高层仓库,长度大于40m;建筑高度大于32m的高层仓库,长度大于20m。
3、地上丁类/戊类生产场所
、丁类车间:建筑面积大于5000m2;
、疏散走道:单层、多层和建筑高度小于或等于32m的高层厂房,长度大于40m;建筑高度大于32m的高层厂房,长度大于20m。
4、地上丁类/戊类库房
疏散走道:单层、多层和建筑高度小于或等于32m的高层仓库,长度大于40m;建筑高度大于32m的高层仓库,长度大于20m。
5、地下场所(含半地下)、地上无窗房门(包括外窗为不可开启窗扇)
总建筑面积大于200,且经常有人停留或可燃物较多;或房间建筑面积大于50,且经常有人停留或可燃物较多。
二、民用建筑的下列场所或部位应设置排烟设施
1、歌舞娱乐放映游艺场所
、设置在一、二、三层的房间:建筑面积大于100;
、设置在四层及以上楼层、地下或半地下楼层的房间:不论面积大小;
疏散走道:长度大于20m。
2、除歌舞娱乐放映游艺场所以外的地上场所
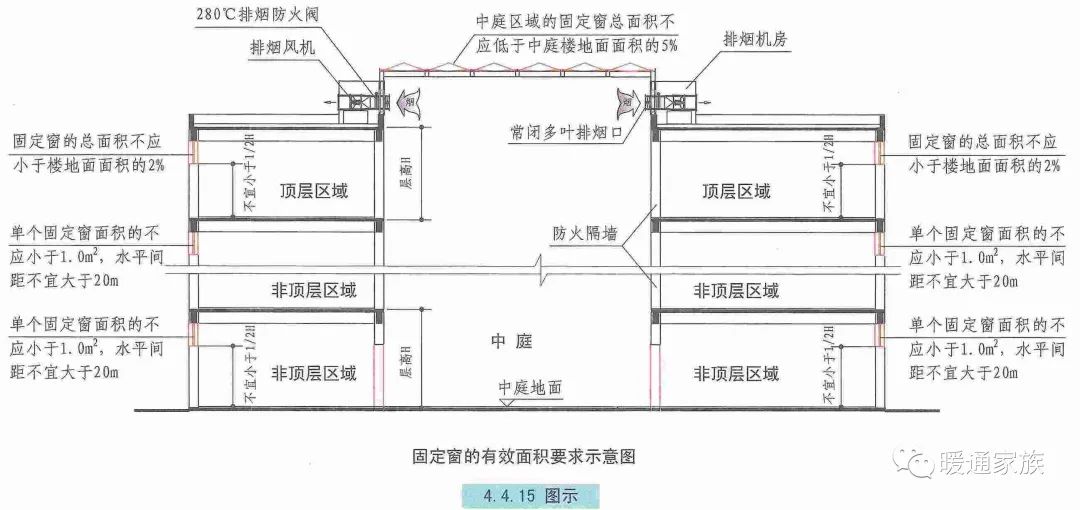
、中庭;
、公共建筑内经常有人停留的房间:建筑面积大于100;
、公共建筑内可燃物较多的房间:建筑面积大于300;
疏散走道(包括住宅建筑):长度大于20m。
【特例】地上无窗房间(包括外窗为不可开启窗扇)
总建筑面积大于200,且经常有人停留或可燃物较多;或房间建筑面积大于50,且经常有人停留或可燃物较多。
3、除歌舞娱乐放映游艺场所以外的地下场所(含半地下)
总建筑面积大子200,且经常有人停留或可燃物较多;或房间建筑面积大于50,且经常有人停留或可燃物较多。
三、除特例情形外的建筑中庭回廊应设置排烟设施
设置排烟设施的情形包括:
1、商店建筑中庭回廊;
2、非商店建筑中庭回廊。
【特例】对于非商店建筑中庭回廊,周围场所均设置排烟设施时,回廊可不设置排烟设施。
四、4地铁工程的下列场所应设置排烟设施
1、地下车站的站厅和站台公共区,地上封闭车站的站厅和站台公共区;
2、同一个防火分区内总建筑面积大于200的地下车站设备管理区;
3、地下单个建筑面积大于50且经常有人停留或可燃物较多的房间;
4、车站设备管理区内长度大于20m的内走道;
5、长度大于60m的地下换乘通道、连接通道和出入口通道;
6、连续长度大于一列列车长度的地下区间和全封闭车道。
五、系统形式
1、排烟应优先采用自然排烟方式。
2、同一个防烟分区应采用同一种排烟方式。

加载中…