【烟台华杰东方装饰】香橙珑樾170平米现代极简约风格装修完工实拍图
标签:
孙胖子跟你讲烟台装修烟台华杰东方装饰烟台香橙小区装修 |
【烟台华杰东方装饰】香橙珑樾170平米现代极简约风格装修完工实拍图
烟台装修公司口碑哪家好?烟台装修公司排行前十名烟台华杰东方装饰小编给您带来现代极简约风格装修案例,
项目地址/香橙珑樾
建筑户型/平层
施工面积/170平方米
设计风格/现代极简风格
设计公司/烟台华杰东方装饰
全案设计/孙晓敏
说在前面
业主是一对追求时尚的小夫妻,对于设计主要是追求与众不同,简单但是有高级感,所以选择了极简风格做无主灯设计,既能通过灯光体现空间的层次感,也能做到简单低调。家里刚刚喜添了一枚小宝贝,希望在家里能给孩子不一样的家庭氛围,所以每个房间的门都是选择的隐形门搭配墙板,也是为了增加空间的神秘感,让孩子自己去探索每个空间的不同。
http://img.zx123.cn/Resources/zx123cn/uploadfile/2022/0407/20220407145647_70609.jpg
http://img.zx123.cn/Resources/zx123cn/uploadfile/2022/0407/20220407145647_62696.png
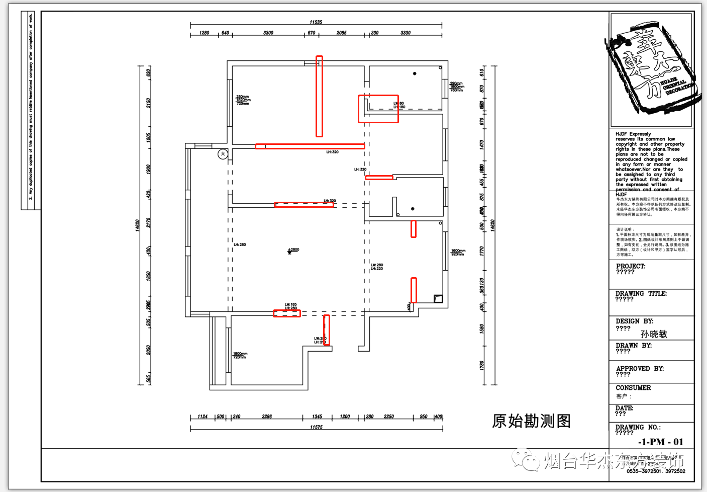
原始结构图。170平米户型,套内面积尚可,日常居住人口:两个大人,一个小孩,保留了三居,主卧和儿童房是重点,榻榻米客卧满足日常需求即可,书房采用开放式,很好的利用了原墙体的分割空间,效果很棒。
http://img.zx123.cn/Resources/zx123cn/uploadfile/2022/0407/20220407145706_31892.jpg
http://img.zx123.cn/Resources/zx123cn/uploadfile/2022/0407/20220407145707_79837.png
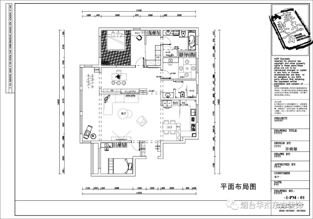
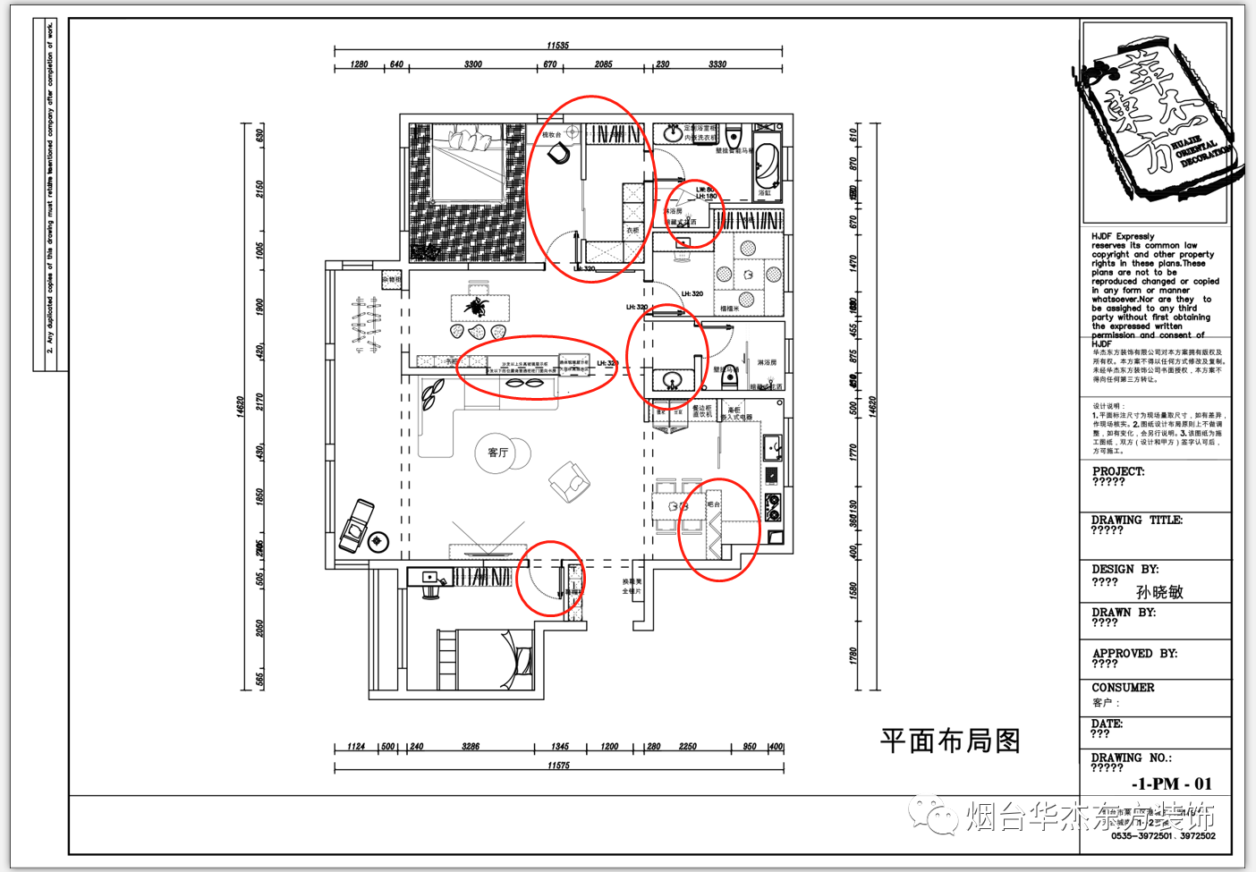
平面布置图。
户型改动:
1、主卧面积宽敞,为了满足女主人的需求,设计师在主卧空间中规划了独立的步入式衣帽间,
2、主卫增加淋浴房空间,占用部分北卧榻榻米的空间,又不影响榻榻米的使用,借的合情合理。
3、亮点。餐厨区,考虑到孩子还小,做饭油烟的问题,需要封闭的厨房空间。但是业主又想要通透感,所以采用了可折叠上滑轨的折叠门,平时可完全打开,用时随手展开即可封闭空间,效果非常不错,实用和颜值都可满分。
4、家里刚刚喜添了一枚小宝贝,希望在家里能孩子不一样的家庭氛围,所以每个房间的门都是选择的隐形门搭配墙板,为了增加空间的神秘感,让孩子自己去探索每个空间的不同。
5、书房采用开放式,借助原格局的墙面做了柜体的延伸,业主热爱乐高,大面积的展示柜为乐高积木提供了非常棒的展示和收纳空间。开放的形式,很好的引入阳台的自然光,又能很好的使空气流通起来。
完工实景
| 入户 |
http://img.zx123.cn/Resources/zx123cn/uploadfile/2022/0407/20220407145738_49005.jpg
入户区。入户区规划了鞋帽柜,一通到顶的设计简约大气,预留出的日常小物品放取区域和常换鞋子摆放区内置了灯带,效果很棒。
| 客厅 |
http://img.zx123.cn/Resources/zx123cn/uploadfile/2022/0407/20220407145808_92128.jpg
客厅电视墙效果图PK基装施工完毕。基础工程为骨架,主材安装如肌肤,骨架完善,后期主材匹配后,效果不会差。
http://img.zx123.cn/Resources/zx123cn/uploadfile/2022/0407/20220407145828_99258.jpg
http://img.zx123.cn/Resources/zx123cn/uploadfile/2022/0407/20220407145828_24920.jpg
电视墙完工效果。电视墙通过隐形门的形式,视觉上得到了很大的延伸。栅格与石材的运用,简约干练。
http://img.zx123.cn/Resources/zx123cn/uploadfile/2022/0407/20220407145844_84996.jpg
http://img.zx123.cn/Resources/zx123cn/uploadfile/2022/0407/20220407145844_40515.jpg
客厅视角。无主灯设计,使灯光的氛围感很好的表现出来。点光源的聚焦,又强调性的表达了区域的重点,个性化的家具造型,从线条上缓和了直线条带来的僵硬感。
http://img.zx123.cn/Resources/zx123cn/uploadfile/2022/0407/20220407145900_49119.jpg
沙发背景视角设计效果图与基础完工对比。
http://img.zx123.cn/Resources/zx123cn/uploadfile/2022/0407/20220407145921_25810.jpg
http://img.zx123.cn/Resources/zx123cn/uploadfile/2022/0407/20220407145921_75296.jpg
http://img.zx123.cn/Resources/zx123cn/uploadfile/2022/0407/20220407145921_78151.jpg
客厅沙发背景视角完工实拍。从家具陈设上保留了极大的可改造空间,固化的设计很少,只是从格局上做了功能分割,其他的依靠软装及家具来填充完善。
| 玄关 |
http://img.zx123.cn/Resources/zx123cn/uploadfile/2022/0407/20220407145941_34983.jpg
玄关视角设计效果图PK基装施工结束
http://img.zx123.cn/Resources/zx123cn/uploadfile/2022/0407/20220407145957_18769.jpg
整体完工效果实拍。书房柜体安装完毕,玄关墙板安装完成,基层预留出的乐高展示框静待乐高的填充。
| 阳台 |
http://img.zx123.cn/Resources/zx123cn/uploadfile/2022/0407/20220407150031_52617.jpg
http://img.zx123.cn/Resources/zx123cn/uploadfile/2022/0407/20220407150031_35465.jpg
阳台的唯一缺憾不是落地窗,270度的三面窗,可以轻松满足早中晚阳光的投射,也是家中很舒适的休闲空间。
http://img.zx123.cn/Resources/zx123cn/uploadfile/2022/0407/20220407150052_21208.jpg
网红沙发单椅看着就很舒适
| 餐厅 |
http://img.zx123.cn/Resources/zx123cn/uploadfile/2022/0407/20220407150117_17323.jpg
餐厨区域设计效果图PK餐厨区域基础施工完工
http://img.zx123.cn/Resources/zx123cn/uploadfile/2022/0407/20220407150134_54643.jpg
餐厨区完工实拍照片。除了灯具造型的小差别,基本100%还原了效果图。设计即落地!
http://img.zx123.cn/Resources/zx123cn/uploadfile/2022/0407/20220407150158_21168.jpg
http://img.zx123.cn/Resources/zx123cn/uploadfile/2022/0407/20220407150158_61924.jpg
餐厅。厨房的门和窗皆可折叠,折起来后餐厨两个区域变成一个开放式空间。吧台既是空间分割的墙体又是闲情雅致的场所。
http://img.zx123.cn/Resources/zx123cn/uploadfile/2022/0407/20220407150212_28703.jpg
http://img.zx123.cn/Resources/zx123cn/uploadfile/2022/0407/20220407150213_92647.jpg
网红多巴胺铃铛,每次打开冰箱都会响起清脆悦耳的铃声,正如幸福生活带给业主的安心静心舒心。
| 厨房 |
http://img.zx123.cn/Resources/zx123cn/uploadfile/2022/0407/20220407150241_22084.jpg
厨房分为中厨与西厨,可折叠的推拉门将两个区域分为了两个世界。西厨区紧靠餐厅,可作为餐厅餐边柜使用,家中的管线机及日常简单的小家电操作可在此完成。
http://img.zx123.cn/Resources/zx123cn/uploadfile/2022/0407/20220407150322_15074.jpg
http://img.zx123.cn/Resources/zx123cn/uploadfile/2022/0407/20220407150322_61819.jpg
厨房。橱柜采用亮面板材,通顶的设计简约大气,厨房的整体吊顶也未采用传统的集成吊顶而采用石膏板吊顶,点光源的漫射带来了更柔和的光线感。
http://img.zx123.cn/Resources/zx123cn/uploadfile/2022/0407/20220407150348_51144.jpg
亮面的柜体带来扑面而来的高级感,白色又给人干净利索的视觉感,厨房既有功能上的实用又有视觉上的超高颜值。折叠窗门使厨房营造出了多种生活场景。
| 卧室 |
http://img.zx123.cn/Resources/zx123cn/uploadfile/2022/0407/20220407150459_57663.jpg
设计师在正对门的玄关也规划了业主喜欢的乐高积木模型墙,满足了业主的喜好又很好的在隐形门及护墙板营造的统一材质下,做到了点缀和挂画的作用。
http://img.zx123.cn/Resources/zx123cn/uploadfile/2022/0407/20220407150516_24768.jpg
主卧室采用地台模式,直接搭配床垫,融入了超级舒适的慵懒效果。地台兼具储物功能,与地面形成落差。专门购置了儿童床,方便照顾孩子
http://img.zx123.cn/Resources/zx123cn/uploadfile/2022/0407/20220407150538_33757.jpg
http://img.zx123.cn/Resources/zx123cn/uploadfile/2022/0407/20220407150538_96557.jpg
http://img.zx123.cn/Resources/zx123cn/uploadfile/2022/0407/20220407150538_47154.jpg
主卧地面一侧为女主人专门规划了梳妆台,竖向窗户带来风景和采光。“当窗理云鬓,对镜贴花黄”
http://img.zx123.cn/Resources/zx123cn/uploadfile/2022/0407/20220407150558_12297.jpg
电视墙采用格栅与石材结合的形式,融于电视墙的次卧隐形门无缝对接,俨然整体。
| 书房 |
http://img.zx123.cn/Resources/zx123cn/uploadfile/2022/0407/20220407150621_90299.jpg
书房设计效果图PK基础完工
http://img.zx123.cn/Resources/zx123cn/uploadfile/2022/0407/20220407150641_67934.jpg
http://img.zx123.cn/Resources/zx123cn/uploadfile/2022/0407/20220407150641_87930.jpg
业主两人都爱好乐高,男业主平时也会有在家会客的需求,结合业主的需求,设计了开放式的书房。在书房和客厅之间把两人的爱好添加了进去 ,做了一组通顶的双面玻璃柜用来摆放乐高模型,在客厅和书房都能起到展示作用。在入户玄关墙上也设计了乐高的模型上墙与书房的展柜呼应。
| 卫生间 |
http://img.zx123.cn/Resources/zx123cn/uploadfile/2022/0407/20220407150706_33371.jpg
主卧偏大,分割出了衣帽间作为日常衣物收纳功用,穿过衣帽间到达卫生间。
http://img.zx123.cn/Resources/zx123cn/uploadfile/2022/0407/20220407150727_93944.jpg
卫生间设计效果图及施工过程中对比,基本做到了对效果图的高比例还原
http://img.zx123.cn/Resources/zx123cn/uploadfile/2022/0407/20220407150758_31776.jpg
http://img.zx123.cn/Resources/zx123cn/uploadfile/2022/0407/20220407150758_81406.jpg
女业主很喜欢小法式,想要有一定的空间能结合一些元素,考虑到整体风格搭配,把主卫保留了她的喜好,上半墙墨绿色的艺术漆搭配下半墙小碎砖,在无主灯基础上加了法式吊灯做风格搭配。她最喜欢的墨绿色也从卫生间墙面延续到了吊灯、浴室柜、沙发的选择,既能起到空间颜色提亮的作用,也能符合自己的审美与喜好。
近期烟台华杰东方装饰施工的工地:观海路8号、明月山庄、天马相城、海峰小区、金地格林世界、尚书台、天越湾、御景观城、飞龙金滩花园、金海名园、翡翠明珠、澜颐苑、暖山国际、龙湖、中正公馆、中海银海熙岸、上海滩花园、山水龙城、林语逸景、金地澜悦、万达广场、山语世家、万象城、海信天山郡、黄海明珠、万泰麓溪公馆、凤凰山庄、天籁花园、星颐广场、越秀星汇金沙、紫金山庄、万光福园、保利香榭里、保利紫薇郡、桦林颐和苑、大成门、万泰花园、富甲逸品、四季花城、海信依云小镇、中建悦海和园、鲁商公馆、万光府前、澎湖山庄、华明星海湾、海琴湾、国奥天地、鲁商富景花园、万光中华城、龙湖紫宸、滨湖万丽、金地浅山艺境、世纪华庭、保利爱尚海、龙海家园、安德利花园、海韵华府、天和新城、黄海城市花园、依云小镇、瑞和公馆、德尚世家、光明海上海、融创迩海、万科翠湖山晓、东泰百合苑、万科翡翠大道、恒大御山华府、金象泰梧桐墅、富邦逅海小镇、丰金紫金山庄、兴盛铭仕城、青山翠谷、侯至府、花半里、珑泉望园、逸城水岸、招商马尔贝拉、嵛景华城、碧桂园·凤凰铭著、恒大御澜庭、丰金·海悦湾、万光中华城、新城璞樾园著、百合公馆、万科翡翠长安、馨逸之福、马家都东泰泰和府等等装修效果图。
高品质装修——华杰东方,值得信赖!华杰东方装饰烟台分公司设计师预约电话18561106532 在线互动QQ:2436336626(空间内有更多案例)
电话预约请直接回复“姓名+小区+电话” 我们会及时联系您,了解您的装修需求,为您安排合适的设计师免费上门量房,并准备设计方案。
更多装修知识尽在:孙胖子跟你讲烟台装修

加载中…