林中咖啡馆,自然的味道
标签:
白酒工业旅游博物馆设计工业旅游规划设计主题乐园设计酒庄设计 |
有的人喜欢改造,有的人喜欢模仿。模仿是一项很重要的能力,而且模仿更多的是为了遵从大自然的鬼斧神工,节省科学原理的探究过程或者达到人与自然的和谐。
在泰国曼谷就有这么一家咖啡馆,叫做呼吸咖啡馆,是曼晋的餐厅式咖啡馆,蓝裕文化工业旅游设计院了解到,其灵感来自于林中谷仓,该谷仓按咖啡馆、餐厅和厨房的功能分为三个主体建筑,此外还有一座高耸的钟楼。实际上这就是仿古仓达到融入自然的目的。
项目位于曼谷西郊,占地约有4600平方米,周围是高密度的住宅区。项目旨在通过创建林中现代谷仓,连接人与自然。经过设计,建筑总面积接近500平方米,由咖啡馆、餐厅和厨房三栋坡屋顶建筑、13.5米高的钟楼和两座玻璃暖房组成。
咖啡馆
餐厅
有顶连廊
连廊细部
餐厅内部
景观窗户
咖啡馆内部
吧台
玻璃暖房内部
玻璃暖房与建筑群
主餐厅有一层半的结构,为主要的餐饮区提供了一个空间,垂直于厨房和咖啡馆的方向,通过屋顶走廊连接,与其他两个主要的平行建筑融为一体。将每栋建筑分开的另一个原因是该地区的建筑法规,该法规要求餐厅的空间不能超过一栋建筑。
布局被分成三个部分,从前面到后面分别是停车区、功能区和后院区。屋顶以下,四面墙使用的是仿木金属板,拱形门窗洞口与周围的环境融为一体。
墙面各处随意设置了大小不一的拱形洞口,如中央厨房的角落可以让新来的客人观看厨师的厨艺,主餐区的背面,以及咖啡馆都开有空洞,能让客人看到后院的景观。
项目图纸
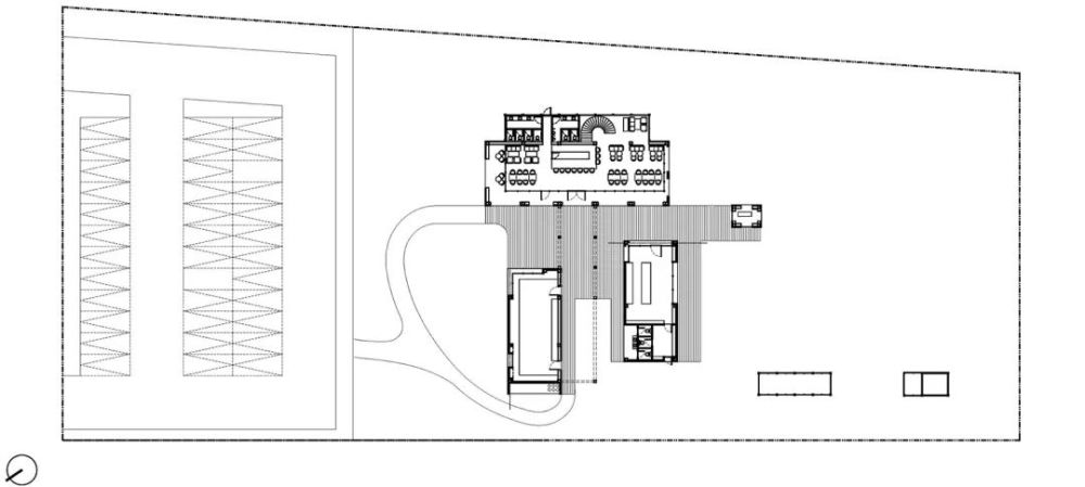
总平面图
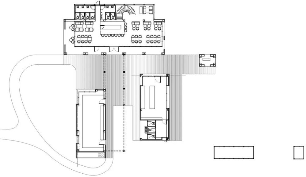
一层平面图
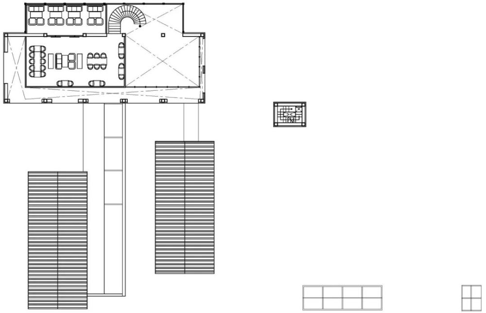
二层平面图
屋顶平面图
立面图
剖面图
谷仓这种工业化的建筑,颇具标志特性,蓝裕文化工业旅游设计院相信,这一元素既能帮咖啡馆融入自然,也能让人一眼记住咖啡馆,是不错的选择。

加载中…