均价7.5万/平朝阳四环新盘金隅昆泰云筑三期云未
标签:
北京房价北京买房北京新房 |
近日,朝阳十八里店金隅地块又官宣了案名“云筑三期·云未”,是金隅在十八里店拿的第三个地块。
2022年,金隅在十八里店拿了两宗地,共三个地块。
其中,金隅+昆泰拿下693地块,名为“金隅昆泰·云筑”,是一期项目;金隅+住总拿下685、694两个地块,694地块为”云筑·二期云尚”,685地块就是现在的“云筑三期·云未”。
项目具体位于东南四环,十八里店桥东南方向约1公里处,地处亦庄与朝阳的交界处,临近17号线地铁十八里店站。
自驾方便上四环,半小时到国贸,1小时可到丽泽、望京、金融街。
目前,“云筑三期·云未”已下预售证,全部10栋住宅楼房源均获批。
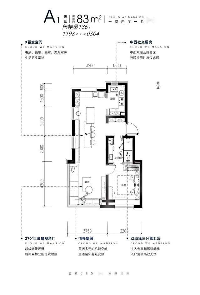
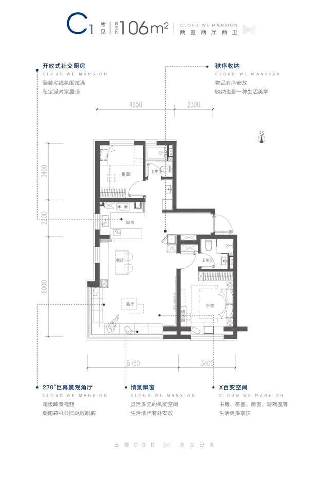
产品方面,有83平一居、106平两居、128平三居,销售指导价7.5万/平。
83平一居,南北通透,客厅带有270度超大转角飘窗,卧室带有飘窗,U型厨房设计,卫生间干湿分离。
106平两居,同样在客厅设置270度转角飘窗,南向主卧,套房设计,餐客厨一体,厨房U型设计,卫生间干湿分离。
128平三居,南向三面宽,面宽11.8米,主卧套间设计配置步入式衣帽间和干湿分离卫生间,主卫设置L型转角窗,餐客厨一体。
就周边二手房来看,目前区域内存量较少,并且多为老旧小区。东侧1km左右的绿洲家园、世豪花园分别建成于1998年、2001年,目前销售单价在4.3万-4.6万元/平。
另外,周边配套较弱,缺少商业、医疗、教育资源。
唯一比较好的一点是交通还行,距离地铁很近。17号线可到十里河站换乘10号线和14号线,去往国贸、望京或者丽泽商务区都非常方便。
整体来看,周边还有待发展,而且7.5万/平的价格,也确实不便宜。

加载中…