丰台时代中心95万LOFT新房公寓个性生活从这里开始商住两用
LOFT年轻人的新宠越来越多的年轻人喜欢Loft
不单单是建筑本身,更是因为Loft带来的一种生活方式
超酷的复式结构让小户型公寓,变成两层的“小豪宅”
合理设计,能让家居空间更为方便紧凑,是时下最流行的公寓装饰范儿
那么丰台有什么Loft公寓可以让我们选择呢?
丰台loft项目信息
今天给大家分享的是(国企实力打造)北京金隅房地产置业有限公司
位于丰台区长辛店生态城园博园南路 14号线张郭庄地铁站旁的悦林中心LOFT 项目.
,西五环孤品小户型LOFT才95万开盘
西五环长辛店生态城是北京唯一 一座以瑞典马尔默生态城为蓝本、引入奥雅纳国际顶级工程顾问公司,被住建部授予“绿色生态示范区项 目”,北京首座生态城,宜居、优美的未来之城。
中直机关入驻,成为丰台河西未来增长点。项目北侧为中直机关住宅地块,预计2022年底入住,入住对象为中共中央直属机关局级以上干部,将会带来优质教育(北大附、清华附、人大附等)和医疗资源。区域内增加中直超大社区,将给区域内带来较大利好。很显然悦林中心潜在的投资价值巨大。
轨道交通地铁14号线,张郭庄总站,最长地铁线,覆盖丽泽商圈、北京南站、国贸商圈、望京等板块。
项目基本信息:
产权:50年商品房, 交房时间:2022年5月
占地面积:2860平米,建筑面积:34500平米,地上建筑面积:23880平米,地下建筑面积:10620平米.
建筑高度:W60m,容积率:2.5,产权停车位:203 个/B1-B3 层.
开发商:北京金隅房地产(国企实力打造)
项目位置:丰台区长辛店生态城园博园南路500米
Loft层高一般在4.2米左右,性价比较高,购买时按一层的建筑面积计算,但是使用面积几乎是建筑面积的2倍。
loft公寓 可以设计为上下双层的复式结构,其中,上层为私密区:卧室、书房等,下层为公共区域:客厅、餐厅、厨房、卫生间。
在售面积主要分为A、B、C三款户型
因为是毛坯中间的非承重墙都可以拆分,面积可做大。
A户型:(40平米)
B户型:(74平米)
C户型:(37平米)
总价区间95-130万 当然更大一点的也有
户型图·建面38 1室1厅1卫
37平 户 型 大胆设计 图
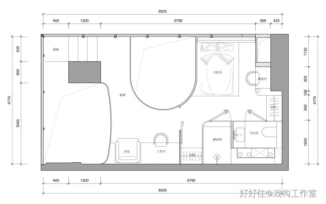
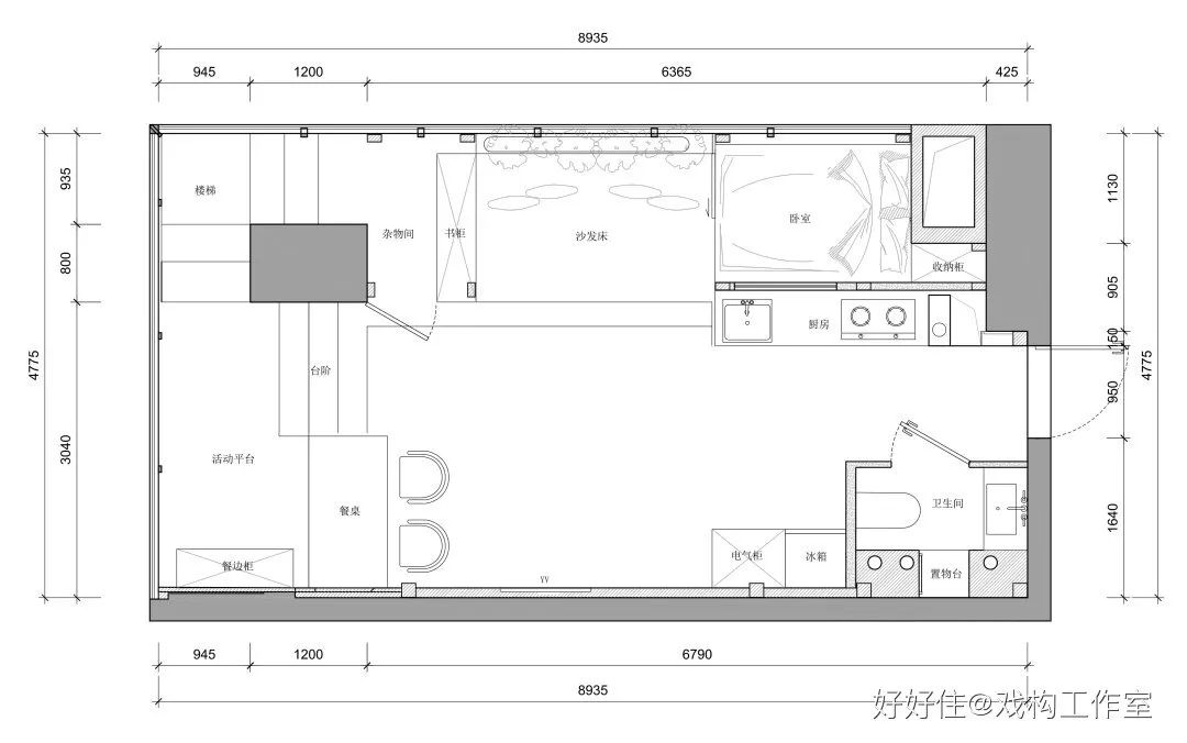
一层平面图。巧妙的空间利用与收纳是本次设计的核心需求,一层主要解决起居空间的功能诉求,同时在充分考虑居住人口的隐私关系后,我们利用原始结构地台将沙发做成了一个具有单人床尺度的休息区,同时旁边还隐藏着封闭小卧室,为多人居住提供可能。
二层平面图。楼梯设置到原始主体的后方,尽可能地隐匿它的存在感。经过一个通向卧室的桥廊进入主卧,主卧面积仅14,但仍然包含了双分离式独立卫生间和淋浴房,储物、梳妆、工作等功能应有尽有。
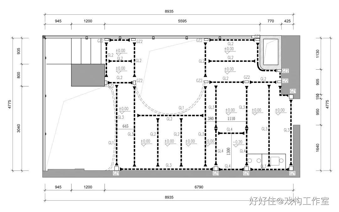
结构设计图。
周边学校:周边有长辛店中小学,北京市灯花中学,北京市丰台槐树岭学校等
周边医院:解放军301医院(五棵松)等
周边商场:项目分布五大商圈分别是石景山万达商圈、五棵松商圈、丽泽商圈、金融街商圈、总部基地等多个核心商圈,同时项目自身配有商业系统和园博府商业街、可满足日常生活所需。
·
公交路线:轨道交通:地铁14号线,张郭庄总站,最长地铁线,公交车,项目周边途径多条公交线路,843,574,624,310等。
生态环境:项目5公里享受五园环抱(园博园、北宫森林公园、鹰山森岭公园,绿提公园、晓月郊野公园),其中3个国家级5A景区;1000公顷绿植覆盖、500公顷生态水域,坐拥永定河景观带眺望门城湖、莲石湖、晓月湖、宛平湖、园博湖; 可谓坐拥五湖五园,享受千顷绿林百顷水域,生态环境北京独一无二。
简单而随性,自由而惬意。
Loft象征先锋艺术,它对花园洋房这样的传统居住观念提出了挑战,对现代城市有关工作、居住分区的概念提出挑战。
车水马流的城市,我们总是期许能找到依靠的地方,抚慰疲倦不堪的身心;万家灯火的夜晚,我们总是渴望远离孤寂冷清。厌倦了庸庸碌碌与马不停蹄的生活,喧闹的城市,总要有些肆意而为的任性……

加载中…