北五环平西府临铁新房奥森春晓单价6.3万左右
标签:
北京新房北京买房北京房价 |
奥森春晓
东小口马连店组团旧村改造项目1803-610地块案名拟定为“奥森春晓”。
东小口马连店组团旧村改造项目1803-610地块起拍价34.3亿,最终由卓越+中交联合体,以总价36.1亿,配建20500公租房代价拿下。
该地块商品房销售指导价为6.3万/平;容积率为2.8,限高80米,总计809套房源。距离8号线地铁平西府地铁直线500米左右。
地块位于北五环外,8号线平西府站西北侧。地块是卓越+中交拿的,由中交操盘。
奥森春晓地块方正规整,楼栋排布整齐,南北楼间距大,可避免前后楼遮挡。
项目配建公租房10600平米,占总建筑面积的23.21%,溢价率5.25%。
项目信息
项目规划共六栋住宅楼,其中1-2号楼为公租房。
3-6号楼为可售商品房,共计620套,社区配有1200平米下沉商业。
项目地址:昌平区文华路东侧约150米
占地面积:31537.814
建筑面积:88306
在售户型:96两室两厅一卫 约602-626万 115三室两厅两卫 约 706-726万
121三室两厅两卫 约749-764 万 131四室两厅两卫 约810-844万
得房率:71%左右
交房标准:简装
总层高:3号楼24层/4、5、6号楼27层
单层高:2.9
容积率:2.8
绿化率:30%
梯户比:两梯四户
拿地时间:2021年
交房时间:2025年2月28日
物业公司:中交物业
物业费:4.87
均价:6.3万/
车位配比:1:1.3
项目地址:昌平区文华路东侧约150米
3#192套、4#104套、5#216套、6#108套
整盘总套数620套。有96/131样板间。
户型介绍
96平三居,三面宽朝南的设计,客厅+主卧+书房朝南,次卧+卫生间朝北。全明格局,U型厨房,卫生间干湿分离,空间利用率很高。客厅+主卧还带两个南向大飘窗~
115平的三居,户型方正,南北通透,主卧是套间的设计,配置了两个卫生间,该户型还有小型储藏室的设计,现在各个家庭的生活都需要收纳。
121平的大边厅三居,餐客一体,形成一个很大的客厅空间,主卧+次卧朝南,带双飘窗,主卧带独立卫生间,次卧有带窗的梳妆衣帽区。次卧+厨房+次卫朝北,还有一个储藏间。
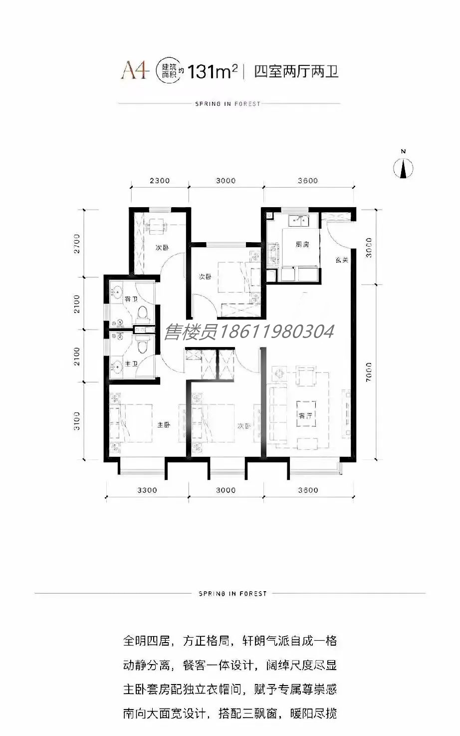
131平的四居,南向三面宽,客厅+双卧朝南,次卧+书房+厨房朝北,动静分区的设计,主卧套间设计,带独立的卫生间和衣帽区。全明格局,采光和通风效果都很好,南向还带三飘窗。
价格表
周边配套
周边交通
地铁:项目距离地铁8号线平西府站直线距离约500米。8号是一条贯穿北京南北的公共交通动脉,预计今年底将实现全线贯通运营,可与13号线、10号线、2号线、6号线、1号线等9条地铁线路交互换乘,畅达望京、中关村、五道口等繁华商圈。
公交:项目周边1km范围内涵盖文化东路站、马连店村站等9个公交站,可乘坐460路、专131路、471路等多条公交线路。其中,乘坐快速直达专线202路可直达生命科学园、永丰产业基地等北部科技园区;乘坐专131路4站可达三甲医院昌平中西医结合医院(分院);乘坐407路可途经西三旗到达北四环安慧桥。
自驾:项目临近北清路,从项目出发可快速通达由北清路串联起的翠湖、永丰、生命科学园等一众高新产业基地。此外,项目西侧为京藏高速,向南可达北三环健翔桥,向北可至居庸关。
周边商业
项目周边5km范围辐射:
已建成商业:BHG北京华联回龙观购物中心(约2.9km)、昌发展万科中心(约3.8km)、永旺国际商城购物中心(约4.7km,建面约9万平)
建设中商业:公园悦府商业中心(约700m,建面约6万平,预计2023年开业)、万达广场(约3.9km,建面约18万平,预计2024年建成)、西三旗万象汇(约3.9km,建面约13万平,预计2023年5月建成)
奥森春晓将配建1200平下沉式商业配套,未来在小区内即可满足基本的生活采购需求。
周边教育
公立学校:首都师范大学附属回龙观育新学校(十二年一贯制,约790m)、清华大学附属中学昌平学校悦府小区小学部(约900km)、昌平第二实验小学(约2km)、昌平第二中学(北京市示范性普通高中,约1.8km)、人民大学附属中学昌平校区(约2.6km)
周边医疗
三甲医院:积水潭医院回龙观院区(约1.9km)、昌平区中西医结合医院(约2.6km)
综合医院:京都儿童医院(约1.5km)、北京回龙观医院(约3.1km)
此外,项目1.5km范围内涵盖两家社区卫生服务中心,可满足业主的就医需求。
周边公园
项目周边5km范围辐射:
回龙观体育文化公园(约1.6km)、回龙园(约2km)、白各庄生态湿地(约4.2km)、半塔郊野公园(4.6km)、太平郊野公园(约5.3km)
未来升值
区域规划:
奥森春晓位于北京北部的昌平区。《北京城市总体规划(2016年—2035年)》指出,北京将加强“三城一区”等重点功能区的规划建设,积极推动首都高质量发展。其中,“三城”之一的未来科学城就位于昌平区。
根据《昌平区分区规划(国土空间规划)(2017年-2035年)》文件显示,昌平将构建“一轴一带一廊、两城一区多点“的空间结构。未来昌平将打造首都西北部重点生态保育及区域生态治理协作区,建设具有全球影响力的全国科技创新中心和国际一流的科教新区;发展特色历史文化旅游和生态休闲区以及塑造城乡综合治理和协调发展的先行示范区。
此外,昌平区将聚焦发展医药健康、节能环保、智能装备三大优势主导产业,重点培育新材料、科技服务产业,打造链接中关村科学城、未来科学城、怀柔科学城的关键创新节点,引领全域创新发展。
板块规划:
奥森春晓地处昌平区回龙观板块。根据昌平区分区规划,昌平计划将回龙观、天通苑板块打造为两大科创社区,并加快板块与未来科学城的互联互通,鼓励高精尖人才在未来科学城就近创新创业,解决周边区域职住平衡问题。
此外,新一轮回天提升计划已于今年7月启动,计划涵盖教育、医疗卫生、绿化、交通、城市更新等6个项目包,共102个项目,预计到2025年初步建成与首都城市发展相匹配的宜居之城

加载中…