标签:
杂谈 |
北漂8年的公司白领小智,
2016年终于攒到足够的钱,
跟太太在北京东四环边上买了房。
然而因为预算有限,
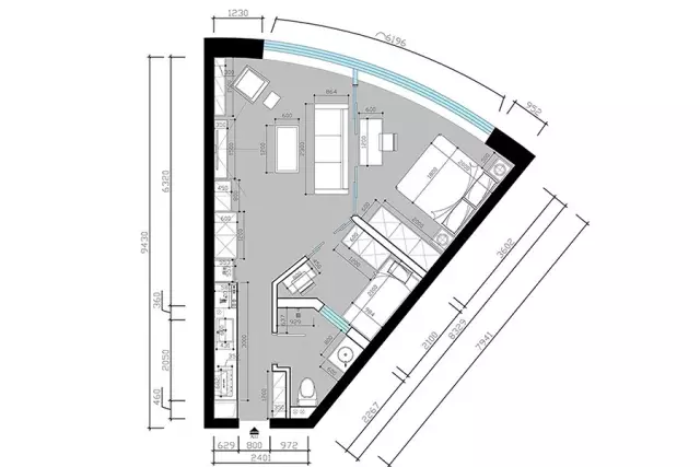
夫妻俩只能选了一套50㎡、一堆缺陷的房子:
房型是罕见的扇子形状,呈三角形,
没有暖气、燃气、阳台……
处女座的小智倒是很乐观,
自己做起了室内设计,
他抠遍每一处细节,
把所有缺陷都变成了优点,
花了25万,把奇葩户型变成了温馨小家!
我是小智,北漂8年。
房价飞涨的今天,
作为普通白领的我们,
能获得这个房子很不容易。
虽然当时看到这套三角形房时,
真的很想哭……
而且屋里只有一个采光来源,
没有暖气、燃气、阳台……
然而因为比周边房价便宜了20%,
我们也只能将就地买下了。
我们下定决心,
要亲手把这里打造成开阔、舒适、不过时的家。
家里最得意的,
是6.3米宽、2.2米高的落地窗,
我打掉了部分实体墙,
放大房子通透明亮的优点。
客厅和主卧,
由4扇落地的玻璃推拉门连接。
当需要隔音或者遮光的时候,
就通过百褶帘,
让2个区域独立起来。
我是处女座,上升星座也是处女座,
我喜欢日式设计中的自律感。
所以整个家只用了3种材料:
木头、水泥、铁,
对应黄、灰、黑3种主要颜色,
再用白色、金色作为点缀。
至于其他的颜色,我们统统都拒绝了。
亲朋好友们为新房送来许多家具电器,
但因为颜色各异,
我们都没有使用,
这才有了统一的日式风格。
没有燃气,
我们就效仿欧式厨房,
选用专业的嵌入式电磁炉,
平整、安全又美观。
我特别喜欢做饭,
很享受每天做一桌丰盛的饭菜,
等她回来一起享用的时光。
没有暖气,
我们采用了最稳定的电地暖方式,
不仅实现了分区控温,
还避免了传统暖气对室内空间的占用。
没有阳台,
我们用快速可拆卸的晾衣杆来替代,
实用又不占空间。
房子的每个缺点,
我们都尽可能转化成优点。
崭新的家,
是为了实现我对爱人、对家庭,
关于美好生活未来的一个承诺。
崭新的家,
也是对过去生活的告别,
也希望能给北京新移民多一些信心。
小智是一条的粉丝,
他还经常在一条生活馆买买买。
租房多年,终于有了属于自己的家后,
他想与更多朋友分享,他家使用的好东西。
投影仪 电视
小智家客厅沙发左边立柱顶端的这个方盒子,
其实是台“智能无屏投影电视”,
内置智能盒子,跟看智能电视一样,
却没有屏幕,直接投在任何平面上就能看,
最大能投出6米宽的巨大“屏幕”,
加上震撼的音效,直接把小客厅变成大影院。
米桶
小智家厨房里摆在电锅右边的这个方形盒子,
是个来自日本的“米桶”,
封闭式的箱体,防潮、防虫、防尘,
大米放进去,可以长时间保持新鲜。
取米特别方便,按一下按钮,
米就自动从下面出来了,
而且按一次,出来的就正好是煮一碗饭的米。
蓝牙音响 CD播放机 收音机
这台长相复古的收音、CD、音响一体机,
名叫“流金岁月”,
颜值这么高,让它在各种影视剧和社交网站上刷屏,
国内却很难买得到。
音质超群,立体感很强,
很多电台迷和音乐爱好者都爱它。
风扇
小智家床尾摆着的这台白色风扇,
实现了一个很厉害的功能:真实模拟自然风。
吹出来的风就像自然风一样柔和、舒服,
完全不像一般风扇或空调一样,
对着吹久了就让人不舒服。
还相当安静,只相当于蝴蝶扇动翅膀的声音。

加载中…